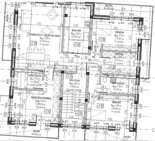
Blitz Imobiliare vă prezintă un apartament finalizat in 2025 cu 4 camere, cu o suprafață utilă de 127.1 mp si Terasa de36mp in total, situat într-o zonă foarte liniștită din cartierul Mănăștur. Apartamentul este bine compartimentat, oferind confort și funcționalitate: 3 dormitoare spațioase și luminoase, living primitor cu bucătărie, 2 bai, 4 balcoane generoase, ideale pentru relaxare. Stadiu de predare semifinisat care include ușa metalică la intrare, centrală termică proprie, încălzire în pardoseală, geamuri cu tâmplărie pvc și 3 sticle, pereți tencuiți și gletuiti, instalații electrice și sanitare pe poziție, sape nivelate. Apartamentul dispune de loc de parcare in subteran la 15000 Euro si Boxa la subteran de 9 mp la 8000 Euro. Datorită amplasării într-o zonă verde și liniștită, dar în același timp aproape de mijloace de transport, magazine, școli acesta este o locuinta ideala. La preturile afisate se adauga TVA.
Cod ofertă / ID BLITZ: P157138
Proprietate cu prețul cerut în afara intervalului mai multe...
Posibile explicații pentru faptul că prețul proprietății este peste cel maxim: imobil nou cu suprafață mare, are dotări și finisaje de lux.
Bine de știut: prețul unei proprietăți este influențat și de alte caracteristici, cum ar fi: vechime, localizare, vecinătăți, suprafață, compartimentare, amenajări, dotări, etc.
Sediul central - Timișoara
Bulevardul Victor Babeș nr. 2, 300230, Timișoara, România
Tel: +40.374.40.44.98 / Fax: +40.256.401.179
Email: suport@imobiliare.ro
Luni - Vineri 08:00 - 20:00
Punct de lucru - București: Iride Business Park, Bld. Dimitrie
Pompeiu 9-9A, Clădirea B2B,
020335, Sector 2, București, România
CONTACT
Sediul central - Timișoara
Bulevardul Victor Babeș nr. 2, 300230, Timișoara, România
Tel: +40.374.40.44.98 / Fax: +40.256.401.179
Email: suport@imobiliare.ro
Luni - Vineri 08:00 - 20:00
Punct de lucru - București: Iride Business Park, Bld. Dimitrie
Pompeiu 9-9A, Clădirea B2B,
020335, Sector 2, București, România
Sună acum și cere detalii sau programează o vizionare.
Cere detalii prin email
*
*
*
*
Stații autobuz
Școli
Gradinițe
Supermarket
Parcări
Terenuri sport
Parcuri
Spital
Farmacie
Restaurant
Pub
Bar
Cafenea
Bancă
Grigore Antipa Est
aprox.
649 m
Grigore Antipa Vest
aprox.
651 m
Edgar Quinet Vest
aprox.
766 m
19
aprox.
767 m
Luminii
aprox.
1009 m
E. Ionesco
aprox.
1044 m
L.Matis
aprox.
1073 m
L. Matis
aprox.
1099 m
N. Steinhardt
aprox.
1104 m
N. Steinhardt
aprox.
1142 m
Hotel Stil Vest
aprox.
1201 m
Varianta Zorilor
aprox.
1202 m
Eugen Lovinescu Est
aprox.
1215 m
Hotel Stil Est
aprox.
1215 m
Statia Hotel Stil, Linia 40
aprox.
1222 m
Liceul Waldorf
aprox.
1313 m
Liceul Edmond Nicolau
aprox.
1458 m
Liceul Teologic Adventist
aprox.
1526 m
Scoala Generala Nr. 3
aprox.
1904 m
Scoala Constantin Brancoveanu
aprox.
1913 m
Școala Liviu Rebreanu / Liceul Liviu Rebreanu
aprox.
1916 m
Scoala Liviu Rebreanu
aprox.
1916 m
Gradinita Liceului Waldorf
aprox.
1343 m
Grăd.Buburuzastr.1
aprox.
1680 m
Helen
aprox.
1727 m
Grăd.Universul copiilor
aprox.
1767 m
Gradinita Speciala
aprox.
1796 m
Gradinita Buburuza
aprox.
1863 m
Grăd.Buburuza
aprox.
1867 m
Lidl
aprox.
1198 m
Baumax
aprox.
1612 m
Olimpia
aprox.
1616 m
Profi
aprox.
1629 m
La doi Pasi
aprox.
1741 m
Profi
aprox.
1763 m
Complex Nora
aprox.
1766 m
Billa
aprox.
1886 m
NONstop
aprox.
1891 m
Oncos
aprox.
1914 m
Carrefour Express
aprox.
1946 m
Parcare
aprox.
1179 m
Parcare privata
aprox.
1388 m
Parcare privata
aprox.
1402 m
Parcare
aprox.
1433 m
Parcare
aprox.
1465 m
Parcare privata
aprox.
1491 m
Parcare privata
aprox.
1491 m
Parcare privata
aprox.
1506 m
Parcare Baumax
aprox.
1513 m
Parcare privata
aprox.
1540 m
Parcare privata
aprox.
1544 m
Parcare privata
aprox.
1560 m
Parcare privata
aprox.
1572 m
Parcare privata
aprox.
1580 m
Parcare Baumax
aprox.
1650 m
Teren sportiv
aprox.
1348 m
Teren sportiv
aprox.
1388 m
Teren sportiv
aprox.
1421 m
Teren sportiv
aprox.
1790 m
Teren sportiv
aprox.
1859 m
Teren sportiv
aprox.
1917 m
Teren sportiv
aprox.
1944 m
Parc
aprox.
1521 m
Parc
aprox.
1621 m
Parc
aprox.
1663 m
Parc
aprox.
1692 m
Parc
aprox.
1720 m
Parc
aprox.
1833 m
Parc
aprox.
1849 m
Parc
aprox.
1880 m
Parc
aprox.
1892 m
Parc Mehedinti
aprox.
1907 m
Parc
aprox.
1913 m
Teren de joaca Manastur nr.1
aprox.
1944 m
Parc
aprox.
1961 m
Cabinet de nefrologie si centru de dializa Fresenius
aprox.
1365 m
Farmacie
aprox.
1751 m
Smile Dental Clinic
aprox.
1893 m
Medical Cor
aprox.
1906 m
Clinica Bendis
aprox.
1926 m
Cabinetul Medical Zormed
aprox.
1932 m
Spitalul de Recuperare
aprox.
1966 m
Centrul Medical Transilvania
aprox.
1983 m
Farmacia Balanis
aprox.
1674 m
Farmacia Infofarm
aprox.
1785 m
Dona
aprox.
1853 m
Catena
aprox.
1856 m
Farmacie
aprox.
1887 m
Farmacia Veroli
aprox.
1897 m
Bendis Pharma
aprox.
1918 m
Farmacia Zorilor
aprox.
1919 m
Ortoprofil
aprox.
1933 m
Silva terrace (en)
aprox.
1470 m
Silva
aprox.
1474 m
Restaurant Pensiunea Serena
aprox.
1539 m
La Tina Bistro Manastur
aprox.
1723 m
Zucca
aprox.
1878 m
Pizzeria Azzuro
aprox.
1898 m
Restaurant Perla
aprox.
1931 m
Old Pub
aprox.
1610 m
Mates Pub
aprox.
1976 m
G94
aprox.
1702 m
Cafe Bar
aprox.
1777 m
Apartament 1
aprox.
1949 m
BRD
aprox.
1603 m
Banca Transilvania
aprox.
1756 m
Alpha Bank
aprox.
1853 m
CEC Bank
aprox.
1880 m
Banca Transilvania
aprox.
1887 m
Intesa Sanpaolo Bank
aprox.
1894 m
Raiffaisen Bank
aprox.
1909 m
BCR
aprox.
1913 m
ING
aprox.
1945 m
BRD
aprox.
1982 m
EximBank
aprox.
2000 m
Una dintre principalele artere care străbate Mănășturul, pe direcția vest "“ nord-est, este Strada Primăverii; acesteia i se adaugă și Strada Câmpului și Strada Frunzișului, ambele pe direcția nord "“ sud-est. Cartierul este deservit de numeroase linii de transport în comun (atât autobuze, cât și troleibuze și tramvaie), menite să facă legătura cu celelalte zone ale orașului "“ și în mod special cu centrul.
Cartierul Mănăștur reprezintă o bună alegere pe termen lung din punctul de vedere al oportunităților de educație. În primă fază, în această zonă a orașului vei găsi numeroase grădinițe, atât de stat, cât și particulare. Ulterior, aici vei putea alege între numeroase școli (primare și gimnaziale), dar și licee. Pentru cei interesați, cartierul oferă și opțiuni în materie de învățământ superior. Este vorba, în primul rând, de Universitatea de Științe Agricole și Medicină Veterinară din Cluj-Napoca, amplasată în extrema de nord-est a cartierului, aproape de granița cu Plopilor. De menționat este și Universitatea "Bogdan Vodă", al cărei sediu se găsește pe strada Grigore Alexandrescu .
În ciuda faptului că poate fi considerat cel mai mare cartier al Clujului, în Mănăștur nu se găsește niciun mall propriu-zis. Cu toate acestea, de aici se poate ajunge cu ușurință atât la mallul Vivo!, din Florești, cât și la Platinia Shopping Center (amplasat în Plopilor, însă foarte aproape de granița cu Mănășturul și Centrul). În interiorul cartierului, o destinație mai apropiată de cumpărături poate fi centrul comercial Winmarkt Cluj (fostul "Big" Mănăștur), atât pe partea de fashion și cosmetice, cât și în materie de mobilă și electrocasnice. Tot aici se află și un Carrefour Market, o farmacie Sensiblu, precum și o sală de fitness. Alte opțiuni ar fi centrele comerciale Sirena (din apropierea stației Clabucet) și Flora (din vecinătatea pieței cu același nume). În Mănăștur se găsește și un hipermarket Kaufland (în zona Câmpului), alături de numeroase supermarketuri "“ dintre care unele afiliate unor rețele internaționale, precum Lidl, Profi sau Billa. Locuitorii acestei zone beneficiază și de câteva piețe amenajate, precum Flora sau Ion Meșter.
Pentru cei care au mașină, găsirea unui loc de parcare stabil în cartier poate fi o problemă "“ asta mai ales în zonele mai intens circulate și unde se află blocuri cu multe etaje. Dacă vrei să eviți situațiile neplăcute odată mutat aici, poți închiria un loc de parcare de la autoritățile locale (cererile pot fi depuse la Primăria de cartier, de pe Strada Ion Meșter, nr. 10).
Dacă ești pasionat de sport, te vei bucura să afli că în Mănăștur se află cea mai mare bază sportivă din Cluj-Napoca, anume Baza Sportivă "Unirea". Amplasat la marginea vestică a cartierului, un alt important spațiu de agrement este cunoscut sub denumirea "La terenuri". În ciuda amenajării sale deficitare, această zonă continuă să fie frecventată, îndeosebi în weekend, de către cei pasionați de activități în aer liber. Tot în Mănăștur găsești și parcurile "Colina" sau "Primăverii", cel din urmă fiind folosit și pentru organizarea unor evenimente culturale. Cartierul oferă și avantajul unui acces rapid către pădurea Făget "“ care poate fi destinația perfectă pentru o ieșire de weekend.
Dacă te gândești să te muți în Mănăștur, e bine să știi că strict în interiorul acestuia nu vei găsi, din păcate, niciun spital de stat "“ ceea ce nu înseamnă, însă, că vei duce lipsă de opțiuni în materie de servicii medicale. Asta pentru că locuitorii cartierului pot ajunge cu ușurință în zona centrală, unde vor avea acces la o serie de asemenea unități medicale. Un astfel de exemplu este Spitalul Clinic Județean de Urgență Cluj-Napoca, care este deschis 24 de ore din 24 "“ la fel ca și Spitalul Clinic Municipal Cluj-Napoca. De menționat sunt și Spitalul Universitar C.F. Cluj-Napoca, Spitalul de Pediatrie, Spitalul Clinic de Boli Infecțioase Cluj-Napoca, Spitalul de Pneumologie "Leon Daniello", dar și Spitalul Clinic de Recuperare Cluj-Napoca. În cartierul Mănăștur "“ sau în imediata sa apropiere "“ vei găsi, de asemenea, și o serie de clinici private, cum ar fi Medstar, Synevo, Union Medical, Centrul Medical Medexpert sau Centrul Medical "Jamgossian".
La capitolul gastronomie, locuitorii cartierului Mănăștur au la dispoziție, în proximitatea casei, și alte câteva variante demne de luat în seamă. Printre acestea se numără restaurantul "Casa Piraților", amplasat pe Strada Răvașului, nr. 16 (acesta dispune de terasă și oferă și servicii de livrare la domiciliu), dar și restaurantul "Valahia", de pe Strada Govora, nr. 27. În afară de restaurante, în această zonă a Clujului se mai găsesc, desigur, și o serie de fast food-uri, inclusiv o unitate McDonald's (pe Strada Primăverii, nr. 74). Alte opțiuni interesante pentru a lua masa în oraș oferă, desigur, și zona centrală.
La capitolul bănci și ATM-uri, este de așteptat ca această zonă a orașului să fie destul de bine deservită, date fiind dimensiunile sale. Spre exemplu, într-un areal destul de restrâns, anume în apropiere de intersecția dintre Strada Primăverii și Strada Izlazului, vei putea găsi patru sedii de bănci, anume un BRD și un BCR, alături de o sucursală Banca Românească și una a Băncii Transilvania. Consultă harta și află unde sunt localizate și alte bănci sau ATM-uri în cartierul Mănăștur:
Înainte să pleci...
Ești sigur că ai văzut și aceste proprietăți?
255.000 €
Cluj-Napoca, Mănăștur
4 camere
78 mp
Etaj 5
259.500 €
Cluj-Napoca, Mănăștur
4 camere
104 mp
Etaj 2 / 4
299.000 €
Cluj-Napoca, Mănăștur
3 camere
59 mp
Etaj 1 / 1
Creează alertă
Salvează căutarea ca să primești pe email ultimele anunțuri publicate
Apartamente noi cu 4+ camere de vânzare în zona Mănăștur, Cluj-Napoca
Cere detalii prin email
*
*
*
*
Detaliile tale de contact vor fi partajate cu Blitz
Căutarea a returnat prea multe rezultate, ce pot reduce relevanța alertelor pe care le vei primi.
Îți recomandăm să aplici mai multe criterii de filtrare (ex: nr. camere, preț, zonă).