Penthouse 194 mp utili + 4 balcoane, view superb!

594.480 €

Mănăștur, Cluj-Napoca

Nr. cam.:
5
Sup. utilă:
193,52 mp
Etaj:
24 / 25
An constr.:
2021 (În construcție)
  • • Comision 0%
  • • Locație aproximativă

Descriere apartament

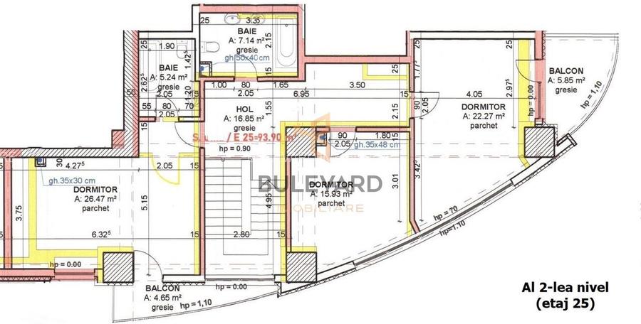
Comision 0%! Bulevard Imobiliare vă oferă spre vânzare un penthouse situat într-un bloc nou, cu o arhitectură modernă, ideal pentru orașele aflate în plină expansiune. Imobilul are regimul de înălțime 2S+3D+P+25E+Et.Tehnic și este amplasat în cartierul Mănăștur, la doar 4 km de punctul zero al orașului Cluj-Napoca (Piața Unirii). Poziționarea strategică asigură acces facil către toate punctele de interes ale orașului, atât cu mașina, cât și cu mijloacele de transport în comun. Acest penthouse este situat la etajele 24 și 25 (ultimele două etaje ale imobilului), având o suprafață utilă de 193,52 mp la care se adaugă 4 balcoane cu o suprafață totală de 21 mp. Compartimentare: Primul nivel: -cameră de zi; -bucătărie; -dormitor/birou; -baie; -hol; -2 balcoane. Al doilea nivel: -3 dormitoare; -2 băi; -hol; -2 balcoane. Dotări și finisaje Apartamentul se predă la stadiul de semifinisat, beneficiind de: -pereți cu glet; -instalații sanitare și electrice trase pe poziție; -încălzire în pardoseală; -tâmplărie din aluminiu cu geam tripan; -ușă metalică la intrare; -șapă egalizatoare. Detalii tehnice -Structură mixtă din beton armat cu nucleu central, diafragme, stâlpi și grinzi; -Subsol realizat în sistem top-down, cu piloți și radier; -Tâmplărie exterioară din aluminiu ALUMIL cu geam tripan 4season; -Compartimentări interioare din cărămidă Cemacon Evoceramic; -Izolație termică din plăci de vată bazaltică Rockwool (10 cm); -Instalații sanitare Rehau și module termice Caleffi (Italia); -Uși metalice antifoc Portadoors; -3 lifturi, dintre care unul panoramic, din sticlă; -Generator electric. Informații suplimentare Apartamentul deține extras de carte funciară; Prețul afișat nu este purtator de TVA. Pentru mai multe detalii sau pentru a programa o vizionare, vă invităm să ne contactați la numărul afișat!
Citește mai mult Citește mai puțin
Confort 1 Semidecomandat Nemobilat 4 Balcoane / Terase / Logii Centrală imobil Încălzire prin pardoseală

Detalii apartament

ID anunț: XC1410191 Copiat! 251778869 Copiat!
Actualizat în: 05 Martie 2026
Suprafață construită: 230 mp
Nr. bucătării: 1
Nr. băi: 3
Structură rezistență: Beton
Tip imobil: Bloc de apartamente
Regim înălțime: S+D+P+25E

Utilități

Ușă intrare
Metal
Izolații termice
Exterior
Ferestre cu geam termopan
Aluminiu
Contorizare
Apometre Contor căldură Contor gaz
Diverse
Senzor de fum Telecomandă poartă acces auto Telecomandă poartă garaj
Facilități imobil
Interfon Lift Videointerfon
Utilități
Curent Apă Canalizare Telefon
Internet
Cablu
Amenajare străzi
Iluminat stradal Mijloace de transport în comun Asfaltate
Comision
0%

Vecinătăți:

Calea Floresti, Complex Vivo, magazine, banci, supermarketuri, Cora, statii de transport in comun

Disponibilitate proprietate:

Imediat

Puncte de interes

Mijloace transport
bus-station
Statia Clabucet II -intors Linia 1, 25, 6
Stații autobuz aprox. 185 m
tram-station
Ravasului
Stații tramvai aprox. 224 m
bus-station
Garbau
Stații autobuz aprox. 258 m
tram-station
Clabucet
Stații tramvai aprox. 276 m
Școală
school
Școala Generală Nr. 29 / "Octavian Goga"
Școli aprox. 160 m
school
Scoala Octavian Goga
Școli aprox. 185 m
kindergarten
Gradinita Dumbrava Minunata
Gradinițe aprox. 204 m
university
Institutul de cercetari in chimie Raluca Ripan
Universități aprox. 1604 m
Recreere
park
Parc
Parcuri aprox. 124 m
supermarket
Profi City
Supermarket aprox. 202 m
sports-ground
Teren sportiv
Terenuri sport aprox. 217 m
mall
Complex comercial Polus
Mall aprox. 1253 m

Detalii despre preț și costuri

Costuri cu achiziția

Fără credit
23.310 RON
Credit ipotecar
26.946 RON
Noua casă
3.169 RON+ taxe notariale

i

Costuri adiționale mai puțin știute la achiziție: taxe notariale, comisioane etc.

Proprietăți recomandate

Detalii de contact

BULEVARD IMOBILIARE

Calin Butuza Senior Broker

BULEVARD IMOBILIARE
PRO

Abonează-te la newsletter să fii primul care primește cele mai noi recomandări de proprietăți și sfaturi de la experți.

CONTACT

Creează alertă

Salvează căutarea ca să primești pe email ultimele anunțuri publicate

Apartamente cu 4+ camere de vânzare în zona Mănăștur, Cluj-Napoca