2

Vanzare 2 camere Marasti, zona Fabricii, imobil nou

130.700 € + TVA

Mărăști, Cluj-Napoca

Nr. cam.:
2
Sup. utilă:
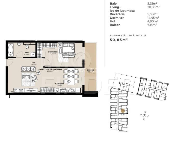
50,85 mp
Etaj:
4 / 10
An constr.:
2025 (În construcție)
  • • Locație aproximativă

Descriere apartament

IMOFINDER va propune spre vanzare un apartament cu 2 camere situat in Marasti, zona Fabricii ( Kaufland), intr-un imobil nou in constructie cu termen de finalizare in 2026. Acesta este situat la etajul 4 din 10 , dispune de o suprafata utila de 50. 85 mp la care se adauga un balcon de 7.15 mp. Compartimentarea este semidecomandata formata din living impreuna cu bucataria, baie, hol, dormitor si un balcon generos . Predarea se va face la stadiul semifinisat: peretii tencuiti si gletuiti, sapa autonivelanta, instalatii trase si pozate, incalzire in pardoseala, usa metalica, geamuri termopan. Posibilitate loc de parcare subteran 11.000 euro + tva. Pretul afisat nu include TVA.
Citește mai mult Citește mai puțin
Confort 1 Semidecomandat 1 Balcon / Terasă / Logie Centrală imobil Încălzire prin pardoseală

Detalii apartament

ID anunț: X7KQ103LM Copiat! 256757336 Copiat!
Actualizat în: 22 Decembrie 2025
Suprafață construită: 58 mp
Nr. bucătării: 1
Nr. băi: 1
Structură rezistență: Cărămidă
Tip imobil: Bloc de apartamente
Regim înălțime: P+10E

Utilități

Ușă intrare
Metal
Izolații termice
Exterior
Contorizare
Apometre Contor gaz
Diverse
Telecomandă poartă garaj
Facilități imobil
Lift
Utilități
Curent Apă Canalizare CATV Gaze Telefon
Internet
Cablu
Amenajare străzi
Iluminat stradal Mijloace de transport în comun Asfaltate
Comision
standard

Disponibilitate proprietate:

Imediat

Puncte de interes

Mijloace transport
bus-station
Campul Painii
Stații autobuz aprox. 175 m
bus-station
Statia Campul Painii, Linia 23, 34, 50, 52
Stații autobuz aprox. 185 m
tram-station
Piata Liebknecht
Stații tramvai aprox. 1115 m
train-station
Gara Noua / "Gara de scurt parcurs"
Stații tren aprox. 1818 m
Școală
school
Școala Ion Agârbiceanu
Școli aprox. 445 m
school
Scoala Ion Agarbiceanu
Școli aprox. 445 m
kindergarten
Grăd.Bambi str.1
Gradinițe aprox. 474 m
university
UT Facultatea de Instalatii
Universități aprox. 1306 m
Recreere
sports-ground
Teren sportiv
Terenuri sport aprox. 296 m
park
Parc
Parcuri aprox. 346 m
supermarket
Kaufland
Supermarket aprox. 570 m
public-square
Piata 1848
Piețe publice aprox. 816 m

Detalii despre preț și costuri

Prețul pe piață

Preț cerut: 130.700 €

Preț min. zonă
Preț max. zonă

90% dintre proprietățile similare ca zonă și nr. camere au prețul cerut mai mare. mai multe...

Bine de știut: prețul unei proprietăți este influențat și de alte caracteristici, cum ar fi: vechime, localizare, vecinătăți, suprafață, compartimentare, amenajări, dotări, etc. mai puțin...

Insight premium disponibil după login

Costuri cu achiziția

Fără credit
Credit ipotecar
Noua casă

i

Costuri adiționale mai puțin știute la achiziție: taxe notariale, comisioane etc.

Insight premium disponibil după login

Proprietăți recomandate

Detalii de contact

IMOFINDER

Darius Radu Cramba General Manager

3.92(4 review-uri)

IMOFINDER
PRO

Abonează-te la newsletter să fii primul care primește cele mai noi recomandări de proprietăți și sfaturi de la experți.

CONTACT

Creează alertă

Salvează căutarea ca să primești pe email ultimele anunțuri publicate

Apartamente cu 2 camere de vânzare în zona Mărăști, Cluj-Napoca