Nou pe piata! Apartament 3 camere, 77 mp, ideal pentru o familie

200.500 €

Mărăști, Cluj-Napoca

Nr. cam.:
3
Sup. utilă:
77 mp
Etaj:
2 / 6
Tip prop.:
Bloc de apartamente
  • • Locație aproximativă

Descriere apartament

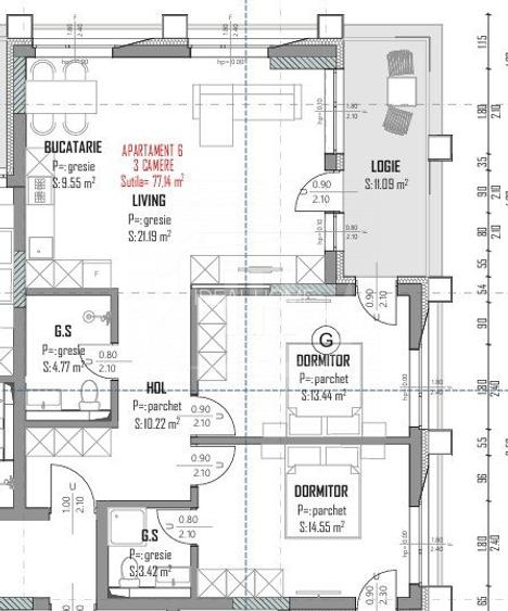
Va propunem spre vanzare apartament cu 3 camere intr-un proiect nou situat in cartierul Marasti, avand acces la mai multe tipuri de magazine, acoperind diverse zone de interes - mobila și bricolaj: Leroy Merlin(250m), supermarket uri precum Kaufland și Lidl (200m) ; magazine Pepco; parcuri (2 minute pe jos pana la Parcul Intre Lacuri 2 și 6 minute pe jos pana la Parcul Est), instituții de invațamant, centre comerciale (Iulius Mall la 800m) . Apartamentul este pozitionat la etajul 2 al unui imobil cu 6 niveluri si dispune de o suprafata utila de 77 mp si un balcon de cca 13 mp . Compartimentarea proprietatii este semidecomandata, fiind dispusa astfel: living open space cu bucatarie, 2 dormitoare, 2 bai si hol. Apartamentul se ofera spre vanzare la stadiul semifinisat, beneficiind de incalzire prin prin pardoseala, geamuri termopan, sapa autonivelanta, un rand de glet si usa metalica la intrare. Termenul de finalizare al proiectului este sfarsitului anului 2026 Optional pot fi achizitionate si locuri de parcare subterane sau supraterane. Imaginile sunt cu caracter informativ! Preturile afisate nu includ TVA.
Citește mai mult Citește mai puțin
Confort 1 Semidecomandat Nemobilat Centrală imobil Încălzire prin pardoseală

Detalii apartament

ID anunț: XBNC106QI Copiat! 255628198 Copiat!
Actualizat în: 22 Aprilie 2026
Suprafață construită: 90 mp
Nr. bucătării: 1
Nr. băi: 2
Structură rezistență: Cărămidă
Regim înălțime: S+D+P+6E

Utilități

Destinație
Rezidențial
Contorizare
Apometre Contor gaz
Facilități imobil
Videointerfon Lift Spații agrement
Utilități
Curent Apă Canalizare Gaze CATV
Ușă intrare
Metal
Izolații termice
Bloc izolat termic
Amenajare străzi
Asfaltate Iluminat stradal Mijloace de transport în comun
Comision
2%+TVA

Certificat energetic:

Clasa energetică: A

Disponibilitate proprietate:

imediat

Puncte de interes

Mijloace transport
bus-station
Bistritei
Stații autobuz aprox. 365 m
bus-station
Statia Nicolae Titulescu, Liniile: 33, 3, 25
Stații autobuz aprox. 372 m
bus-station
Nicolae Titulescu
Stații autobuz aprox. 376 m
bus-station
Stația Campus Universitar, Liniile 24, 34, 48, 25
Stații autobuz aprox. 407 m
Școală
school
Colegiul Tehnic de Industrie Alimentara Raluca Ripan
Școli aprox. 93 m
school
Grupul Scolar de Transporturi / Colegiul Tehnic Raluca Ripan
Școli aprox. 159 m
kindergarten
Grădinita Așchiuță str. 3
Gradinițe aprox. 297 m
university
Facultatea de Stiinte Economice si Gestiunea Afacerilor (en)
Universități aprox. 304 m
Recreere
sports-ground
Teren sportiv
Terenuri sport aprox. 77 m
park
Parc
Parcuri aprox. 145 m
supermarket
Profi
Supermarket aprox. 347 m
public-square
Piata 1848
Piețe publice aprox. 1717 m

Detalii despre preț și costuri

Prețul pe piață

Preț cerut: 200.500 €

Preț min. zonă
Preț max. zonă

84% dintre proprietățile similare ca zonă și nr. camere au prețul cerut mai mare. mai multe...

Bine de știut: prețul unei proprietăți este influențat și de alte caracteristici, cum ar fi: vechime, localizare, vecinătăți, suprafață, compartimentare, amenajări, dotări, etc. mai puțin...

Insight premium disponibil după login

Costuri cu achiziția

Fără credit
Credit ipotecar
Noua casă

i

Costuri adiționale mai puțin știute la achiziție: taxe notariale, comisioane etc.

Insight premium disponibil după login

Proprietăți recomandate

Detalii de contact

IDEAL HOME

Bogdan Broker partener

IDEAL HOME
PRO

Abonează-te la newsletter să fii primul care primește cele mai noi recomandări de proprietăți și sfaturi de la experți.

CONTACT

Creează alertă

Salvează căutarea ca să primești pe email ultimele anunțuri publicate

Apartamente cu 3 camere de vânzare în zona Mărăști, Cluj-Napoca