1

Apartament 3 camere finisat modern Iulius Mall Cluj-Napoca

205.000 €

Mărăști, Cluj-Napoca

Nr. cam.:
3
Sup. utilă:
54 mp
Etaj:
1 / 5
An constr.:
2025 (Finalizată)
  • • Locație aproximativă

Descriere apartament

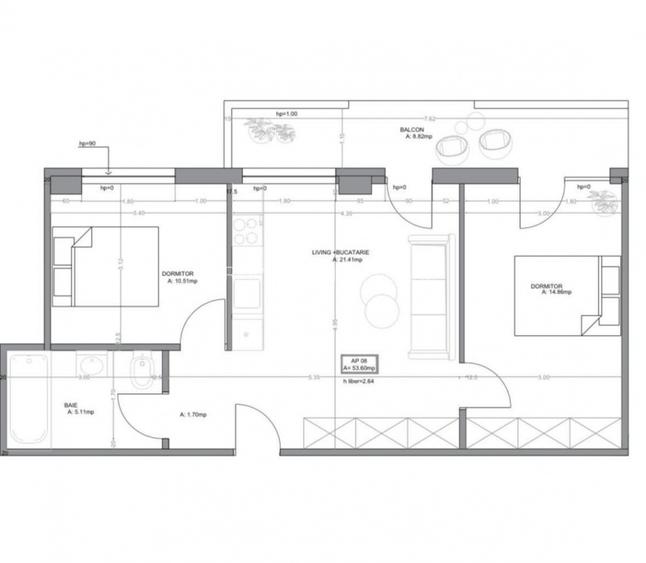
Apartament 3 camere | Zonă premium Iulius Mall – Cluj-Napoca -finisaje moderne, amplasat într-un complex rezidențial nou, pe strada Dionisie Roman, într-o zonă foarte bine cotată a Clujului, la câteva minute de Iulius Mall, FSEGA și Parcul Iulius. Detalii generale: Suprafață utilă: 53,60 mp Balcon: 8,82 mp, cu deschidere largă Compartimentare eficientă, ideală pentru familie sau investiție Compartimentare: Living cu bucătărie open-space – 21,41 mp Dormitor matrimonial – 14,86 mp Dormitor secundar / birou – 10,15 mp Baie – 5,11 mp Hol – 1,70 mp Balcon generos – 8,82 mp Puncte forte: Vedere directă către parc, zonă verde și liniștită Imobil nou, cu arhitectură modernă și finisaje de calitate Acces la spații verzi private, zone de relaxare și alei pietonale Balcon spațios, ideal pentru timp liber Localizare excelentă, cu acces rapid către transport public, centre comerciale, supermarketuri, școli și restaurante ID Extern P146951
Citește mai mult Citește mai puțin
1 Balcon / Terasă / Logie Centrală proprie Încălzire prin pardoseală Bine întreținut (Bună)

Detalii apartament

ID anunț: XFUS100OJ Copiat! 275407961 Copiat!
Actualizat în: 14 Aprilie 2026
Nr. bucătării: 1
Nr. băi: 1
Structură rezistență: Cărămidă
Tip imobil: Bloc de apartamente
Regim înălțime: P+5E

Utilități

Pereți
Vopsea lavabilă Var
Podele
Parchet Gresie
Ușă intrare
Metal
Uși interior
Celulare
Izolații termice
Exterior Interior
Ferestre cu geam termopan
PVC
Utilități
Curent Apă Canalizare Gaze Telefon
Internet
Fibră optică
Comision
2.5%

Certificat energetic:

Clasa energetică: B

Puncte de interes

Mijloace transport
bus-station
Statia Dunarii, Linia 47
Stații autobuz aprox. 162 m
bus-station
Jiului
Stații autobuz aprox. 179 m
tram-station
Statia Bai Someseni, Linia 8
Stații tramvai aprox. 769 m
tram-station
Statia Branului, Linia 8
Stații tramvai aprox. 904 m
Școală
school
Scoala Alexandru Vaida-voevod
Școli aprox. 175 m
kindergarten
Grădinita Așchiuță
Gradinițe aprox. 204 m
school
Școala Alexandru Vaida
Școli aprox. 740 m
university
Universitatea Crestina Dimitrie Cantemir
Universități aprox. 1278 m
Recreere
supermarket
Lidl
Supermarket aprox. 138 m
sports-ground
Teren sportiv
Terenuri sport aprox. 190 m
park
Parc
Parcuri aprox. 372 m
public-square
Piata Ira
Piețe publice aprox. 441 m

Detalii despre preț și costuri

Prețul pe piață

Preț cerut: 205.000 €

Preț min. zonă
Preț max. zonă

87% dintre proprietățile similare ca zonă și nr. camere au prețul cerut mai mic. mai multe...

Bine de știut: prețul unei proprietăți este influențat și de alte caracteristici, cum ar fi: vechime, localizare, vecinătăți, suprafață, compartimentare, amenajări, dotări, etc. mai puțin...

Insight premium disponibil după login

Costuri cu achiziția

Fără credit
Credit ipotecar
Noua casă

i

Costuri adiționale mai puțin știute la achiziție: taxe notariale, comisioane etc.

Insight premium disponibil după login

Proprietăți similare

Apartament cu 4 camere decomandat, mobilat în Mărăști
212.000 €
Cluj-Napoca, Mărăști
4 camere
76 mp
Etaj 8
Apartament cu 3 camere decomandat, mobilat în Mărăști
220.000 €
Cluj-Napoca, Mărăști
3 camere
70 mp
Etaj 9 / 9
Apartament cu 3 camere decomandat în Mărăști
215.000 €
Cluj-Napoca, Mărăști
3 camere
78 mp
Etaj 6

Detalii de contact

GREEN CASA IMOBILIARE

Andrei Cenan Junior Broker

GREEN CASA IMOBILIARE
PRO

Abonează-te la newsletter să fii primul care primește cele mai noi recomandări de proprietăți și sfaturi de la experți.

CONTACT

Creează alertă

Salvează căutarea ca să primești pe email ultimele anunțuri publicate

Apartamente noi cu 3 camere de vânzare în zona Mărăști, Cluj-Napoca