13

Ap. de 4 camere la dezvoltator - Central - București 41

253.000 € + TVA

Mărăști, Cluj-Napoca

Nr. cam.:
4
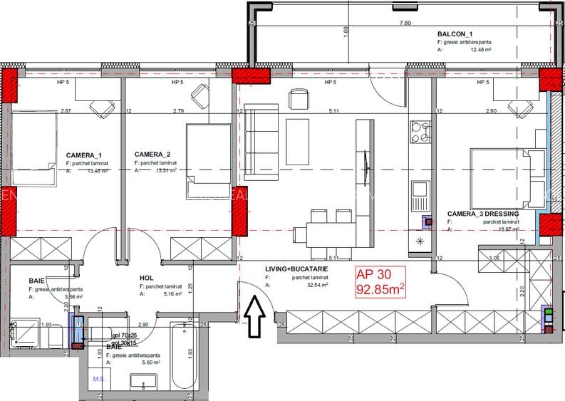
Sup. utilă:
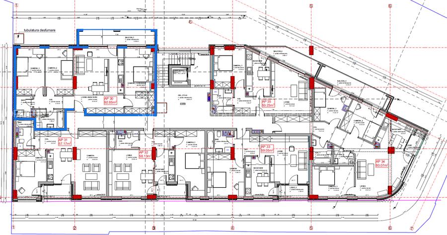
92,85 mp
Etaj:
5 / 6
An constr.:
2027 (Proiect)
  • • Comision 0%
  • • Locație exactă

Descriere apartament

Solaris Development, dezvoltator cu peste 20 de proiecte rezidențiale finalizate în Cluj-Napoca, vă prezintă Solaris Avangarde – un nou proiect ce va fi dezvoltat într-o locație centrală, pe strada București 41-45! Termen de predare: Iunie 2027. Stadiu actual: Proiectul are autorizația de construire de la Primăria Cluj-Napoca, în luna ianuarie 2026 se va finaliza demolarea, iar din februarie 2026 va începe construirea. Predare: Semifinisat. Știm că alegerea apartamentului potrivit poate fi dificilă, de aceea, Solaris Development îți oferă un proces de achiziție ușor, bazat pe încredere și transparență și îți livrează exact ce ți se promite. - Antecontract care te protejează - ești în siguranță. - Preț fix - costurile de achiziție nu se modifică. - Garanții de calitate - primești ce ți se promite. - Informare și transparență - vei cunoaște constant stadiul proiectului. - Consultanță - ajutor specializat pe întreg procesul. E ușor să cumperi Pasul 1 – Consultanță și selecție Programăm o întâlnire pentru analiza planurilor, alegerea apartamentului dorit și stabilirea modalității de plată. Pasul 2 – Formalizare și siguranță Pregătim un antecontract avantajos pentru ambele părți și vă oferim transparență completă privind evoluția proiectului. Pasul 3 – Finalizare și predare Predăm apartamentul pentru finisare și semnăm contractul final de vânzare. Beneficii principale - Locație centrală - ești aproape de ce contează. - Eficiență energetică nZEB - salvezi bani prin costuri reduse. - Investiția perfectă - revinzi sau închiriezi rapid. - Sisteme electrice SMART și panouri fotovoltaice - Locuire modernă prin tehnologii de viitor. - Design arhitectural modern și elegant - Calitatea locuirii dusă la următorul nivel. - Parcări subterane - Scapi de grija locului de parcare. - Spații comerciale la fază de proiect - Le poți modifica conform viziunii afacerii tale. Prețul afișat în anunț este valabil pentru plata integrală. Acesta se modifică în funcție de modalitatea de plată aleasă de dvs. La 5 minute de mers pe jos -Săli de fitness: Burn Fitness, World Class, CBC Fitness. -Stații de autobuz pe strada București. -Magazine: Mega, Profi, Carrefour. -Licee: Colegiul de Muzică, Liceul „Avram Iancu”. -Grădinițe: Căsuța Poveștilor I și II, Ary. La 10 minute de mers pe jos: -Parcul Feroviarilor. -Zone de business: The Office, CBC, Record Park. Dezvoltatorul a creat acest apartament pentru familiile care doresc spațiu suplimentar și distanțe mici până la parcuri, grădinițe sau licee. Pentru detalii vă rugăm să ne contactați.
Citește mai mult Citește mai puțin
Confort 1 Decomandat 1 Balcon / Terasă / Logie

Detalii apartament

ID anunț: XA7E0002S Copiat! 269016449 Copiat!
Actualizat în: 05 Februarie 2026
Nr. bucătării: 1
Nr. băi: 2
Structură rezistență: Cărămidă
Tip imobil: Bloc de apartamente
Regim înălțime: S+P+6E

Utilități

Destinație
Rezidențial
Comision
0%

Vecinătăți:

La 5 minute de mers pe jos
-Săli de fitness: Burn Fitness, World Class, CBC Fitness.
-Stații de autobuz pe strada București.
-Magazine: Mega, Profi, Carrefour.
-Licee: Colegiul de Muzică, Liceul „Avram Iancu”.
-Grădinițe: Căsuța Poveștilor I și II, Ary.

La 10 minute de mers pe jos:
-Parcul Feroviarilor.
-Zone de business: The Office, CBC, Record Park.

Puncte de interes

Mijloace transport
bus-station
Parcul Farmec
Stații autobuz aprox. 241 m
bus-station
Paris
Stații autobuz aprox. 268 m
tram-station
Libertatea Vest
Stații tramvai aprox. 871 m
train-station
Gara Noua / "Gara de scurt parcurs"
Stații tren aprox. 1135 m
Școală
kindergarten
Grăd.Bambi
Gradinițe aprox. 149 m
school
Școala Specială Centrul de Resurse și Documentare Privind Educația Incluzivă/Integrată
Școli aprox. 186 m
kindergarten
Gradinita
Gradinițe aprox. 512 m
university
UT Facultatea de Instalatii
Universități aprox. 703 m
Recreere
sports-ground
Teren sportiv
Terenuri sport aprox. 163 m
park
Parc
Parcuri aprox. 239 m
public-square
Piata 1848
Piețe publice aprox. 396 m
supermarket
Lidl
Supermarket aprox. 586 m

Detalii despre preț și costuri

Prețul pe piață

Preț cerut: 253.000 €

Preț min. zonă 200.000 €
Preț max. zonă 430.000 €

67% dintre proprietățile similare ca zonă și nr. camere au prețul cerut mai mare. mai multe...

Bine de știut: prețul unei proprietăți este influențat și de alte caracteristici, cum ar fi: vechime, localizare, vecinătăți, suprafață, compartimentare, amenajări, dotări, etc. mai puțin...

Costuri cu achiziția

Fără credit
13.408 RON
Credit ipotecar
15.820 RON
Noua casă
1.699 RON+ taxe notariale

i

Costuri adiționale mai puțin știute la achiziție: taxe notariale, comisioane etc.

Solaris Avangarde

Solaris Avangarde

Solaris Development, dezvoltator cu peste 20 de proiecte rezidențiale finalizate în Cluj-Napoca, vă prezintă Solaris Avangarde – un nou proiect ce va fi dezvoltat într-o locație centrală, pe strada București 41-45!

Vezi detalii ansamblu

Proprietăți recomandate

Detalii de contact

Abonează-te la newsletter să fii primul care primește cele mai noi recomandări de proprietăți și sfaturi de la experți.

CONTACT

Creează alertă

Salvează căutarea ca să primești pe email ultimele anunțuri publicate

Apartamente noi cu 4+ camere de vânzare în zona Mărăști, Cluj-Napoca