Apartament semidecomandat cu 2 camere la cheie, cartier Marasti

119.000 €

Mărăști, Cluj-Napoca

Nr. cam.:
2
Sup. utilă:
41,75 mp
Etaj:
Mansardă / 4
An constr.:
2010
  • • Locație aproximativă

Descriere apartament

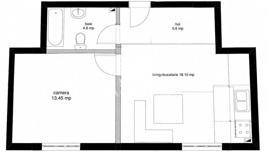
Vă oferim spre vânzare apartament semidecomandat cu două camere situat la mansarda unui imobil cu un regim de înălțime P+4E+M în cartierul Mărăști, zona străzii Teleorman. Apartamentul are suprafața utilă de 41,75 mp și este compartimentat astfel: - hol 5.6 mp - living cu bucătărie open space 18.10 mp - dormitor 13.45 mp - baie 4.6 mp Încălzirea apartamentului se realizează prin calorifere cu centrală termică proprie. Apartamentul este potrivit atât pentru locuire cât și pentru investiție, se află într-o zonă cu cerere constantă la închiriere. Deși este la mansardă, are carte funciară individuală, ceea ce permite achiziția prin credit. Actele sunt în regulă, iar CF-ul este liber de sarcini. Pentru mai multe informații sau programarea unei vizionări vă rugăm să ne contactați!
Citește mai mult Citește mai puțin
Confort 1 Semidecomandat Mobilat Calorifere Centrală proprie

Detalii apartament

ID anunț: XFUO10024 Copiat! 274213028 Copiat!
Actualizat în: 01 Aprilie 2026
Nr. bucătării: 1
Nr. băi: 1
Tip imobil: Bloc de apartamente
Regim înălțime: P+4E+M

Utilități

Pereți
Faianță Vopsea lavabilă
Podele
Gresie Parchet
Ușă intrare
Metal
Uși interior
Lemn
Izolații termice
Exterior
Ferestre cu geam termopan
PVC
Contorizare
Apometre Contor gaz
Bucătărie
Mobilată Utilată
Electrocasnice
Aragaz Frigider Hotă Mașină de spălat
Facilități imobil
Interfon
Utilități
Curent Apă Canalizare CATV Gaze Telefon
Internet
Cablu Wireless
Amenajare străzi
Iluminat stradal Mijloace de transport în comun Asfaltate
Comision
standard

Disponibilitate proprietate:

Imediat

Puncte de interes

Mijloace transport
bus-station
Statia Aurel Vlaicu, Liniile 8, 30, 46B, 4, 6, 7
Stații autobuz aprox. 179 m
bus-station
Statia Siretului, Liniile 8,30,46B, 4, 6, 7
Stații autobuz aprox. 226 m
tram-station
Statia Bai Someseni, Linia 8
Stații tramvai aprox. 1136 m
tram-station
Statia Branului, Linia 8
Stații tramvai aprox. 1276 m
Școală
kindergarten
Grăd.Lizuca
Gradinițe aprox. 277 m
kindergarten
Grăd.Degețica
Gradinițe aprox. 329 m
school
Scoala Alexandru Vaida-voevod
Școli aprox. 460 m
university
Universitatea Crestina Dimitrie Cantemir
Universități aprox. 959 m
Recreere
park
Parc
Parcuri aprox. 141 m
supermarket
Profi
Supermarket aprox. 299 m
sports-ground
Teren sportiv
Terenuri sport aprox. 402 m
public-square
Piata Ira
Piețe publice aprox. 608 m

Detalii despre preț și costuri

Prețul pe piață

Preț cerut: 119.000 €

Preț min. zonă
Preț max. zonă

i

Proprietate cu prețul cerut în afara intervalului mai multe...

Posibile explicații pentru faptul că prețul proprietății este sub cel minim: imobil cu risc seismic, imobil cu probleme structurale, imobil demolabil, poziționare în altă zonă
Bine de știut: prețul unei proprietăți este influențat și de alte caracteristici, cum ar fi: vechime, localizare, vecinătăți, suprafață, compartimentare, amenajări, dotări, etc.
Insight premium disponibil după login

Costuri cu achiziția

Fără credit
Credit ipotecar
Noua casă

i

Costuri adiționale mai puțin știute la achiziție: taxe notariale, comisioane etc.

Insight premium disponibil după login

Proprietăți recomandate

Detalii de contact

Dream Properties

Augustin Paul Daniel Manager

Dream Properties

Abonează-te la newsletter să fii primul care primește cele mai noi recomandări de proprietăți și sfaturi de la experți.

CONTACT

Creează alertă

Salvează căutarea ca să primești pe email ultimele anunțuri publicate

Apartamente cu 2 camere de vânzare în zona Mărăști, Cluj-Napoca