Apartament 3 camere, parcare, finisat, intermediar, zona Pod Ira

210.000 €

Mărăști, Cluj-Napoca

Nr. cam.:
3
Sup. utilă:
70 mp
Etaj:
2 / 3
An constr.:
2024 (Finalizată)
  • • Locație aproximativă

Descriere apartament

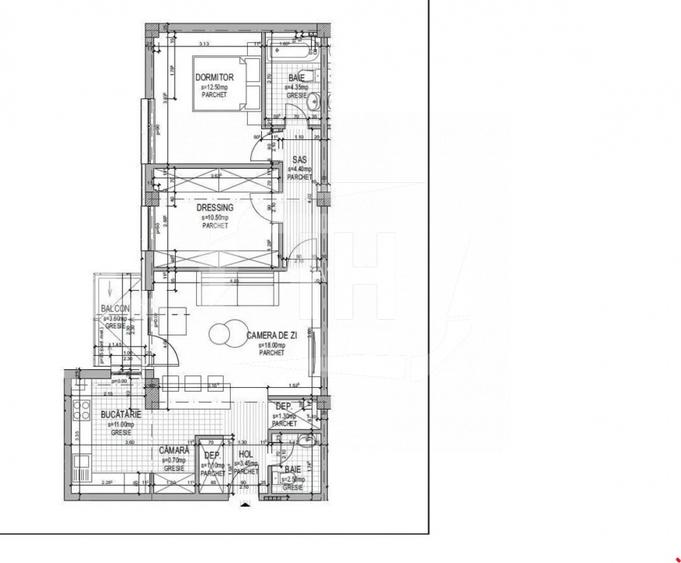
- apartament cu 3 camere, intr-o constructie noua, situata in zona strazii Traian Vuia, in partea spre Someseni. Apartamentul este amplasat la etajul 2 al unui imobil nou cu 3 niveluri si dispune de o suprafata utila de 70 mp si balcon de cca 6 mp. Compartimentarea proprietatii este semidecomandata, fiind organizata astfel: bucatarie cu living, 2 dormitoare, 2 bai si hol. Apartamentul se vinde la stadiul de FINISAT!!!. Facilitati zona: - magazine, Kaufland, Lidl, cabinete medicale, statii de autobuz, aeroport etc Se vinde cu un loc de parcare subteran la pretul de 15000 Euro!
Citește mai mult Citește mai puțin
Confort 1 Semidecomandat Parțial mobilat 1 Balcon / Terasă / Logie Curte Curte comună Centrală proprie Încălzire prin pardoseală 1 Parcare 1 Parcare / Garaj / Parcare subterană

Detalii apartament

ID anunț: XBNC10829 Copiat! 273098207 Copiat!
Actualizat în: 22 Aprilie 2026
Suprafață construită: 85 mp
Nr. bucătării: 1
Nr. băi: 2
Structură rezistență: Cărămidă
Tip imobil: Bloc de apartamente
Regim înălțime: S+P+3E

Utilități

Destinație
Rezidențial
Pereți
Vopsea lavabilă Faianță
Podele
Parchet Gresie
Ușă intrare
Metal
Uși interior
Celulare
Izolații termice
Bloc izolat termic
Contorizare
Apometre Contor gaz
Facilități imobil
Interfon Videointerfon Lift Spații agrement
Utilități
Curent Apă Canalizare Gaze CATV Telefon
Amenajare străzi
Asfaltate Iluminat stradal Mijloace de transport în comun
Comision
2%+TVA

Certificat energetic:

Clasa energetică: B

Vecinătăți:

Pod Ira

Disponibilitate proprietate:

imediat

Puncte de interes

Mijloace transport
bus-station
Bai Someseni
Stații autobuz aprox. 329 m
bus-station
Selgros
Stații autobuz aprox. 335 m
tram-station
Statia Scoala 1, Linia 8
Stații tramvai aprox. 634 m
train-station
Gara Cluj-Napoca Est/Cluj-Napoca East Train Station (en)
Stații tren aprox. 1368 m
Școală
school
Scoala Generala nr.12 (en)
Școli aprox. 617 m
school
Scoala cu clasele I-VIII Traian Darjan
Școli aprox. 640 m
kindergarten
Grădinita Așchiuță str. 4
Gradinițe aprox. 763 m
kindergarten
Grăd.Așchiuță str. 1
Gradinițe aprox. 1019 m
Recreere
supermarket
Selgros
Supermarket aprox. 319 m
park
Parc
Parcuri aprox. 599 m
sports-ground
Teren sportiv
Terenuri sport aprox. 1055 m
public-square
Piata Ira
Piețe publice aprox. 1288 m

Detalii despre preț și costuri

Prețul pe piață

Preț cerut: 210.000 €

Preț min. zonă
Preț max. zonă

61% dintre proprietățile similare ca zonă și nr. camere au prețul cerut mai mare. mai multe...

Bine de știut: prețul unei proprietăți este influențat și de alte caracteristici, cum ar fi: vechime, localizare, vecinătăți, suprafață, compartimentare, amenajări, dotări, etc. mai puțin...

Insight premium disponibil după login

Costuri cu achiziția

Fără credit
Credit ipotecar
Noua casă

i

Costuri adiționale mai puțin știute la achiziție: taxe notariale, comisioane etc.

Insight premium disponibil după login

Proprietăți similare

Apartament cu 3 camere decomandat, mobilat în Mărăști
195.000 €
Cluj-Napoca, Mărăști
3 camere
67 mp
Etaj 3 / 3
Apartament cu 3 camere semidecomandat, mobilat în Mărăști
230.000 €
Cluj-Napoca, Mărăști
3 camere
68 mp
Etaj 3
Apartament cu 2 camere decomandat, mobilat în Mărăști
212.000 €
Cluj-Napoca, Mărăști
2 camere
63 mp
Etaj 2 / 2

Detalii de contact

IDEAL HOME

Bogdan Broker partener

IDEAL HOME
PRO

Abonează-te la newsletter să fii primul care primește cele mai noi recomandări de proprietăți și sfaturi de la experți.

CONTACT

Creează alertă

Salvează căutarea ca să primești pe email ultimele anunțuri publicate

Apartamente noi cu 3 camere de vânzare în zona Mărăști, Cluj-Napoca