Apartament 2 camere, 52 mp, Terasa 21 mp, Imobil Nou, Semicentral

210.201 €

Semicentral, Cluj-Napoca

Nr. cam.:
2
Sup. utilă:
51,8 mp
Etaj:
3 / 6
An constr.:
2027 (În construcție)
  • • Locație aproximativă

Descriere apartament

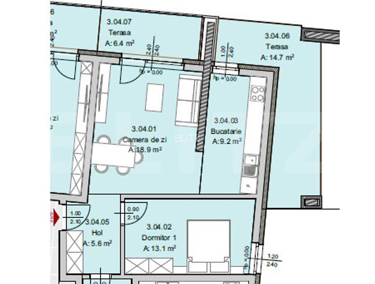
Blitz ofera spre vanzare un apartament de 2 camere cu 1 baie si Terasa de 21 mp in Zona The Office intr-un imobil in constructie cu termen de finalizare in ultima parte a anului 2027. Un nou început prinde contur în inima orașului tău! Proiect imobiliar modern, care îmbină armonios locuințele spațioase cu funcțiuni comerciale utile pentru comunitate: 49 de apartamente cu 2, 3 si 4 camere, cu suprafețe între 52 și 104 mp, la care se adaugă balcoane și terase generoase – între 6,1 mp și 68 mp Spații comerciale la parter, cu suprafață de 78mp si 430mp cu acces direct și parcări dedicate 2 nivele subterane de parcări, accesibile prin rampă auto. La etajul 1 birouri cu suprafață intre 67mp si 179mp. Confortul tău contează – fiecare apartament va fi dotat cu: Încălzire în pardoseală Imobilul va fi racordat la rețeaua de termoficare a orașului Tâmplărie PVC cu 3 foi de sticlă Izolație exterioară performantă Totul pentru un consum energetic optim, un climat interior plăcut în orice anotimp si costuri reduse. Pretul afisat este pentru un avans de 90%. Se accepta plata si prin credit bancar. Exista posibilitatea achizitiei unui loc de parcare in subteran la 20000 Euro + TVA. Preturile afisate nu contin TVA. Cod ofertă / ID BLITZ: P157039
Citește mai mult Citește mai puțin
Semidecomandat Nemobilat 1 Balcon / Terasă / Logie Bine întreținut (Bună)

Detalii apartament

ID anunț: XFTI10AR8 Copiat! 271634098 Copiat!
Actualizat în: 29 Aprilie 2026
Nr. bucătării: 1
Nr. băi: 1
Structură rezistență: Cărămidă
Tip imobil: Bloc de apartamente
Tip tranzacție: De vânzare prin agent
Regim înălțime: P+6E
Modalitate de plată: Cash sau Credit

Utilități

Comision
2.5%

Certificat energetic:

Clasa energetică: A

Puncte de interes

Mijloace transport
bus-station
Statia Farmec, Linia 36
Stații autobuz aprox. 226 m
bus-station
Parcul Farmec
Stații autobuz aprox. 226 m
tram-station
Libertatea Vest
Stații tramvai aprox. 1185 m
train-station
Gara Noua / "Gara de scurt parcurs"
Stații tren aprox. 1456 m
Școală
kindergarten
Grăd.Bambi str.2
Gradinițe aprox. 264 m
school
Colegiul Tehnic Anghel Saligny
Școli aprox. 336 m
university
UT Facultatea de Instalatii
Universități aprox. 390 m
kindergarten
Grăd.Bambi
Gradinițe aprox. 449 m
Recreere
park
Parc
Parcuri aprox. 209 m
supermarket
Lidl
Supermarket aprox. 254 m
sports-ground
Teren sportiv
Terenuri sport aprox. 267 m
public-square
Piata 1848
Piețe publice aprox. 657 m

Detalii despre preț și costuri

Prețul pe piață

Preț cerut: 254.343 €

Preț min. zonă
Preț max. zonă

91% dintre proprietățile similare ca zonă și nr. camere au prețul cerut mai mic. mai multe...

Bine de știut: prețul unei proprietăți este influențat și de alte caracteristici, cum ar fi: vechime, localizare, vecinătăți, suprafață, compartimentare, amenajări, dotări, etc. mai puțin...

Acces la informații premium după autentificare
Login Gratuit

Costuri cu achiziția

Fără credit
Credit ipotecar
Noua casă

i

Costuri adiționale mai puțin știute la achiziție: taxe notariale, comisioane etc.

Acces la informații premium după autentificare
Login Gratuit

Proprietăți similare

Apartament cu 3 camere semidecomandat în Semicentral
167.000 €
Cluj-Napoca, Semicentral
3 camere
58 mp
Etaj 4 / 4
Apartament cu 2 camere semidecomandat în Semicentral
160.000 €
Cluj-Napoca, Semicentral
2 camere
54,7 mp
Etaj 4
Apartament cu 2 camere decomandat în Semicentral
179.000 €
Cluj-Napoca, Semicentral
2 camere
63 mp
Etaj 1

Detalii de contact

BLITZ

BLITZ ROMANIA

4.71(110 review-uri)

BLITZ
PRO

Abonează-te la newsletter să fii primul care primește cele mai noi recomandări de proprietăți și sfaturi de la experți.

CONTACT

Creează alertă

Salvează căutarea ca să primești pe email ultimele anunțuri publicate

Apartamente cu 2 camere de vânzare în zona Semicentral, Cluj-Napoca