Apartament 2camere, cu parcare subterana, in Zorilor, zona Frunzisului

208.000 €

Zorilor, Cluj-Napoca

Nr. cam.:
2
Sup. utilă:
58 mp
Etaj:
Parter / 7
An constr.:
2019 (Finalizată)
  • • Locație aproximativă

Descriere apartament

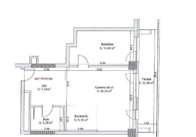
Va propunem spre vanzare un apartament de 2 in cartierul Zorilor, zona strazii Frunzisului. Apartamentul cu o suprafata utila de 58 de mp, la care se adauga terasa de 13mp. Compartimentarea este facuta astfel: Bucatarie+Living Dormitor Baie Hol In plus in pretul de vanzare al apartamentului este inclus si un loc de parcare subteran. Apartamentul se vinde de pe Firma, Pretul este cu tva inclus si deductibil. Apartamentul se vinde la stadiul de finisat, cu centrala termica, geamuri termopan, parchet, incalzire in pardoseala si cadrele sanitare de la baie. Pentru mai multe detalii sau o vizionare, va stam la dispozitie.
Citește mai mult Citește mai puțin
Confort 1 Semidecomandat Calorifere Centrală proprie Încălzire prin pardoseală

Detalii apartament

ID anunț: X4I7107V0 Copiat! 274623239 Copiat!
Actualizat în: 09 Martie 2026
Suprafață construită: 68 mp
Nr. bucătării: 1
Nr. băi: 1
Tip imobil: Bloc de apartamente
Regim înălțime: P+7E
Nr. terase: 1

Utilități

Destinație
Rezidențial
Pereți
Faianță Vopsea lavabilă
Podele
Gresie Parchet
Izolații termice
Exterior
Contorizare
Apometre
Alte spații utile
Terasă
Facilități imobil
Interfon Lift
Utilități
Curent Apă Canalizare CATV Gaze Telefon
Internet
Cablu
Amenajare străzi
Iluminat stradal Mijloace de transport în comun Asfaltate
Comision
standard

Disponibilitate proprietate:

Imediat

Puncte de interes

Mijloace transport
bus-station
Balea
Stații autobuz aprox. 102 m
bus-station
Balea Est
Stații autobuz aprox. 121 m
tram-station
Statia Gr. Alexandrescu, Linia 6
Stații tramvai aprox. 897 m
tram-station
Parang
Stații tramvai aprox. 958 m
Școală
kindergarten
Grăd.Buburuzastr.1
Gradinițe aprox. 279 m
kindergarten
Grăd.Universul copiilor
Gradinițe aprox. 311 m
school
Liceul Edmond Nicolau
Școli aprox. 334 m
university
USAMV Cluj-Napoca
Universități aprox. 886 m
Recreere
park
Parc
Parcuri aprox. 195 m
bar
Cafe Bar
Bar aprox. 334 m
sports-ground
Teren sportiv
Terenuri sport aprox. 354 m
supermarket
Olimpia
Supermarket aprox. 400 m

Detalii despre preț și costuri

Prețul pe piață

Preț cerut: 208.000 €

Preț min. zonă 132.000 €
Preț max. zonă 237.000 €

76% dintre proprietățile similare ca zonă și nr. camere au prețul cerut mai mic. mai multe...

Bine de știut: prețul unei proprietăți este influențat și de alte caracteristici, cum ar fi: vechime, localizare, vecinătăți, suprafață, compartimentare, amenajări, dotări, etc. mai puțin...

Costuri cu achiziția

Fără credit
10.040 RON
Credit ipotecar
12.035 RON
Noua casă
1.199 RON+ taxe notariale

i

Costuri adiționale mai puțin știute la achiziție: taxe notariale, comisioane etc.

Proprietăți recomandate

Detalii de contact

Habitas Imobiliare

Vlad Dogar Consilier Imobiliar

Habitas Imobiliare
PRO

Abonează-te la newsletter să fii primul care primește cele mai noi recomandări de proprietăți și sfaturi de la experți.

CONTACT

Creează alertă

Salvează căutarea ca să primești pe email ultimele anunțuri publicate

Apartamente cu 2 camere de vânzare în zona Zorilor, Cluj-Napoca