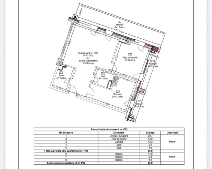
Apartament de vanzare, cu 3 camere, 65 mp, zona Ansamblu Rezidential, Zorilor

187.082 €

Zorilor, Cluj-Napoca

Nr. cam.:
3
Sup. utilă:
65 mp
Etaj:
Parter / 15
An constr.:
2021 (Finalizată)
  • • Locație aproximativă

Descriere apartament

BLITZ va propune spre vanzare un apartament spatios, situat intr-un ansamblu rezidential nou din cartierul Zorilor, una dintre cele mai cautate zone ale orasului. Suprafata utila generoasa Apartamentul este pozitionat la parter si este compartimentat eficient, ideal pentru o familie sau pentru investitie. Acesta este semifinisat, oferindu-va libertatea de a-l amenaja dupa gustul propriu. Compartimentare: • Living cu bucatarie open space – zona de zi luminoasa si aerisita • 1 dormitor confortabil si o nisa de dormit • 2 bai • 3 balcone – perfecte pentru relaxare Stadiu de predare: • Semifinisat: pereti tencuiti si gletuiti, sapa turnata, centrala termica proprie, instalatii trase pe pozitii, usi la intrare montate Ansamblu modern: Imobilul face parte dintr-un complex rezidential modern, cu acces securizat, spatii verzi amenajate si locuri de parcare disponibile. Locatie excelenta Zona Zorilor ofera acces rapid catre centrul orasului, spitale, universitati, magazine si mijloace de transport in comun. Cod oferta / ID BLITZ: P146588
Citește mai mult Citește mai puțin
Decomandat Nemobilat 3 Balcoane / Terase / Logii Centrală proprie

Detalii apartament

ID anunț: XFTI104AL Copiat! 261776460 Copiat!
Actualizat în: 19 Martie 2026
Nr. bucătării: 1
Nr. băi: 2
Tip imobil: Bloc de apartamente
Regim înălțime: S+D+P+15E

Utilități

Utilități
Curent Apă
Ușă intrare
Metal
Ferestre cu geam termopan
PVC
Amenajare străzi
Asfaltate
Comision
%

Disponibilitate proprietate:

imediat

Puncte de interes

Mijloace transport
bus-station
Varianta Zorilor
Stații autobuz aprox. 167 m
bus-station
Eugen Lovinescu Est
Stații autobuz aprox. 337 m
tram-station
Statia Gr. Alexandrescu, Linia 6
Stații tramvai aprox. 1508 m
tram-station
Parang
Stații tramvai aprox. 1517 m
Școală
school
Liceul Waldorf
Școli aprox. 457 m
kindergarten
Gradinita Liceului Waldorf
Gradinițe aprox. 529 m
school
Liceul Edmond Nicolau
Școli aprox. 635 m
university
USAMV Cluj-Napoca
Universități aprox. 1317 m
Recreere
supermarket
Lidl
Supermarket aprox. 274 m
sports-ground
Teren sportiv
Terenuri sport aprox. 610 m
park
Parc
Parcuri aprox. 611 m
pub
Old Pub
Pub aprox. 820 m

Detalii despre preț și costuri

Prețul pe piață

Preț cerut: 187.082 €

Preț min. zonă
Preț max. zonă

76% dintre proprietățile similare ca zonă și nr. camere au prețul cerut mai mare. mai multe...

Bine de știut: prețul unei proprietăți este influențat și de alte caracteristici, cum ar fi: vechime, localizare, vecinătăți, suprafață, compartimentare, amenajări, dotări, etc. mai puțin...

Insight premium disponibil după login

Costuri cu achiziția

Fără credit
Credit ipotecar
Noua casă

i

Costuri adiționale mai puțin știute la achiziție: taxe notariale, comisioane etc.

Insight premium disponibil după login

Proprietăți recomandate

Detalii de contact

BLITZ

BLITZ ROMANIA

4.70(108 review-uri)

BLITZ
PRO

Abonează-te la newsletter să fii primul care primește cele mai noi recomandări de proprietăți și sfaturi de la experți.

CONTACT

Creează alertă

Salvează căutarea ca să primești pe email ultimele anunțuri publicate

Apartamente noi cu 3 camere de vânzare în zona Zorilor, Cluj-Napoca