Penthouse cu 3 camere, terasa panoramica de 57 mp si priveliste superba ,Zorilor

358.405 €

Zorilor, Cluj-Napoca

Nr. cam.:
3
Sup. utilă:
114 mp
Etaj:
14 / 14
An constr.:
2022 (Finalizată)
  • • Locație aproximativă

Descriere apartament

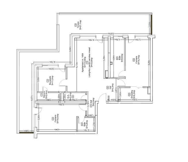
Blitz ofera spre vanzare un penthouse spectaculos cu 3 camere, situat la etaj superior intr-un bloc nou, modern, amplasat intr-o zona linistita, cu acces facil catre centrul orasului, magazine, scoli si transport public. Apartamentul are o suprafata utila de 114 mp si beneficiaza de o terasa generoasa de 57,10mp, , ideala pentru relaxare in aer liber si privelisti panoramice la apus. Compartimentare: Living spatios cu acces direct pe terasa Bucatarie separata+ debara 2 dormitoare decomandate 2 bai 1 Dressing Hol de acces Se preda in stadiul de semifinisat, cu: -centrala termica proprie si incalzire in pardoseala montate -instalatii electrice si sanitare pe pozitii -pereti tencuiti si gletuiti -sapa turnata -tamplarie termopan de calitate superioara -usa metalica la intrare Dotari suplimentare in ansamblu: -Lift modern, acces securizat -Parcare inclusa in pret -Spatii comune de calitate Un apartament deosebit, ideal pentru cei care cauta spatiu generos, confort, lumina naturala si o terasa privata spectaculoasa. Pentru detalii suplimentare si programarea unei vizionari, te invitam sa ne contactezi. Cod oferta / ID BLITZ: P148887
Citește mai mult Citește mai puțin
Confort 1 Semidecomandat Nemobilat Centrală proprie 1 Parcare

Detalii apartament

ID anunț: XFTI105T0 Copiat! 266294236 Copiat!
Actualizat în: 04 Februarie 2026
Nr. bucătării: 1
Nr. băi: 2
Structură rezistență: Beton
Tip imobil: Bloc de apartamente
Regim înălțime: S+D+P+14E

Utilități

Destinație
Rezidențial
Contorizare
Apometre Contor gaz
Alte spații utile
Terasă Debara
Facilități imobil
Videointerfon Lift Spații agrement
Utilități
Curent Apă Canalizare Gaze
Ușă intrare
Metal
Izolații termice
Exterior
Ferestre cu geam termopan
PVC
Amenajare străzi
Asfaltate
Comision
%

Certificat energetic:

Clasa energetică: A

Disponibilitate proprietate:

imediat

Puncte de interes

Mijloace transport
bus-station
Varianta Zorilor
Stații autobuz aprox. 167 m
bus-station
Eugen Lovinescu Est
Stații autobuz aprox. 337 m
tram-station
Statia Gr. Alexandrescu, Linia 6
Stații tramvai aprox. 1508 m
tram-station
Parang
Stații tramvai aprox. 1517 m
Școală
school
Liceul Waldorf
Școli aprox. 457 m
kindergarten
Gradinita Liceului Waldorf
Gradinițe aprox. 529 m
school
Liceul Edmond Nicolau
Școli aprox. 635 m
university
USAMV Cluj-Napoca
Universități aprox. 1317 m
Recreere
supermarket
Lidl
Supermarket aprox. 274 m
sports-ground
Teren sportiv
Terenuri sport aprox. 610 m
park
Parc
Parcuri aprox. 611 m
pub
Old Pub
Pub aprox. 820 m

Detalii despre preț și costuri

Prețul pe piață

Preț cerut: 358.405 €

Preț min. zonă 167.000 €
Preț max. zonă 355.000 €

i

Proprietate cu prețul cerut în afara intervalului mai multe...

Posibile explicații pentru faptul că prețul proprietății este peste cel maxim: imobil nou cu suprafață mare, are dotări și finisaje de lux.
Bine de știut: prețul unei proprietăți este influențat și de alte caracteristici, cum ar fi: vechime, localizare, vecinătăți, suprafață, compartimentare, amenajări, dotări, etc.

Costuri cu achiziția

Fără credit
15.202 RON
Credit ipotecar
17.836 RON
Noua casă
1.966 RON+ taxe notariale

i

Costuri adiționale mai puțin știute la achiziție: taxe notariale, comisioane etc.

Proprietăți similare

Apartament cu 4 camere semidecomandat, mobilat în Zorilor
369.000 €
Cluj-Napoca, Zorilor
4 camere
95 mp
Etaj 8 / 8
Apartament cu 4 camere în Zorilor
389.000 € + TVA
Cluj-Napoca, Zorilor
4 camere
116,95 mp
Etaj 4 / 4
Apartament cu 4 camere decomandat, mobilat în Zorilor
369.000 €
Cluj-Napoca, Zorilor
4 camere
95 mp
Etaj 8

Detalii de contact

BLITZ

BLITZ ROMANIA

4.70(105 review-uri)

BLITZ
PRO

Abonează-te la newsletter să fii primul care primește cele mai noi recomandări de proprietăți și sfaturi de la experți.

CONTACT

Creează alertă

Salvează căutarea ca să primești pe email ultimele anunțuri publicate

Apartamente noi cu 3 camere de vânzare în zona Zorilor, Cluj-Napoca