Apartament 3 camere 65 mp utili + Terase 22mp, 2 bai, bloc WINGS

200.250 €

Zorilor, Cluj-Napoca

Nr. cam.:
3
Sup. utilă:
65 mp
Etaj:
Parter / 14
An constr.:
2025 (Finalizată)
  • • Locație aproximativă

Descriere apartament

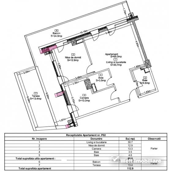
Oferim spre vânzare un apartament modern situat în ansamblul rezidențial Wings, cartier Zorilor, Cluj-Napoca. Apartament 3 camere 65mp utili, 1 dormitor + nisa sau birou, 2 bai, living si bucatarie open space. Terasa 13.4mp si balcon 34.5mp. SEMIFINISAT Intabulat cu carte funciară – disponibil imediat, se poate accesa credit ipotecar Posibilitate achiziție loc de parcare: 15.000 EUR
Citește mai mult Citește mai puțin
Confort 1 Semidecomandat Nemobilat 1 Balcon / Terasă / Logie Grădină Centrală imobil Încălzire prin pardoseală Bine întreținut (Bună)

Detalii apartament

ID anunț: X1KA10DQA Copiat! 266918073 Copiat!
Actualizat în: 23 Aprilie 2026
Suprafață construită: 125 mp
Nr. bucătării: 1
Nr. băi: 2
Structură rezistență: Beton
Tip imobil: Bloc de apartamente
Regim înălțime: P+14E
Nr. terase: 1

Utilități

Destinație
Rezidențial
Rulouri/Obloane
PVC
Ușă intrare
Metal
Ferestre cu geam termopan
PVC
Contorizare
Apometre
Diverse
Sistem de alarmă
Alte spații utile
Terasă
Facilități imobil
Videointerfon Lift
Utilități
Curent Apă Canalizare CATV
Internet
Fibră optică
Servicii imobil
Supraveghere video
Amenajare străzi
Asfaltate Iluminat stradal Mijloace de transport în comun

Certificat energetic:

Clasa energetică: A

Puncte de interes

Mijloace transport
bus-station
Statia Post Zorilor, Linia 46, 50
Stații autobuz aprox. 51 m
bus-station
statia gh. dima, linii 35. 46, 46b, 43, 50
Stații autobuz aprox. 99 m
tram-station
Statia Gr. Alexandrescu, Linia 6
Stații tramvai aprox. 1606 m
tram-station
Grigore Alexandrescu
Stații tramvai aprox. 1655 m
Școală
school
Liceul Waldorf
Școli aprox. 299 m
kindergarten
Gradinita Liceului Waldorf
Gradinițe aprox. 303 m
school
Scoala Generala nr. 10 / Școala Radu Stanca
Școli aprox. 457 m
university
UT Facultatea de Constructii si Facultatea de Arhitectura si Urbanism
Universități aprox. 857 m
Recreere
park
Parc
Parcuri aprox. 104 m
supermarket
Billa
Supermarket aprox. 291 m
sports-ground
Teren sportiv
Terenuri sport aprox. 514 m
public-square
Piața "Lucian Blaga" (fosta Păcii)
Piețe publice aprox. 1785 m

Detalii despre preț și costuri

Prețul pe piață

Preț cerut: 200.250 €

Preț min. zonă
Preț max. zonă

61% dintre proprietățile similare ca zonă și nr. camere au prețul cerut mai mare. mai multe...

Bine de știut: prețul unei proprietăți este influențat și de alte caracteristici, cum ar fi: vechime, localizare, vecinătăți, suprafață, compartimentare, amenajări, dotări, etc. mai puțin...

Insight premium disponibil după login

Costuri cu achiziția

Fără credit
Credit ipotecar
Noua casă

i

Costuri adiționale mai puțin știute la achiziție: taxe notariale, comisioane etc.

Insight premium disponibil după login

Proprietăți recomandate

Detalii de contact

WELT IMOBILIARE

Welt Imobiliare

4.35(22 review-uri)

WELT IMOBILIARE
PRO

Abonează-te la newsletter să fii primul care primește cele mai noi recomandări de proprietăți și sfaturi de la experți.

CONTACT

Creează alertă

Salvează căutarea ca să primești pe email ultimele anunțuri publicate

Apartamente noi cu 3 camere de vânzare în zona Zorilor, Cluj-Napoca