Apartament generos 3 camere | orientare E-S-V | 0% comision | Wings

301.350 €

Zorilor, Cluj-Napoca

Nr. cam.:
3
Sup. utilă:
94 mp
Etaj:
8 / 14
An constr.:
2023 (Finalizată)
  • • Comision 0%
  • • Locație aproximativă

Descriere apartament

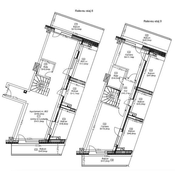
Vă propunem spre vânzare un apartament luminos cu orientare Est-Sud-Vest, dispus pe două niveluri, cu spații exterioare generoase și o compartimentare gandită pentru locuință modernă, în ansamblul rezidențial Wings din Cluj-Napoca. Achiziția se realizează cu 0% comision pentru cumpărător. Date tehnice ale proprietății: Suprafață utilă: 94,02 mp Suprafață totală terase / balcoane: 74 mp Regim de înălțime: Etajele 8 și 9 Orientare: Est – Sud – Vest Stadiu predare: semifinisat Confort termic asigurat prin centrală termică proprie pe gaz și încălzire în pardoseală Compartimentare: Etaj 8 – Zona de zi: Living, Bucătărie, Hol, Baie, 5 terase Etaj 9 – Zona de noapte: -2 dormitoare, 1 baie ,Hol, 5 terase Proprietatea se evidențiază prin numărul rar întâlnit de spații exterioare, oferind posibilitatea amenajării mai multor zone de relaxare, grădină urbană sau dining exterior. Orientarea triplă Est–Sud–Vest asigură lumină naturală pe tot parcursul zilei și o atmosferă aerisită în fiecare încăpere. Delimitarea clară între zona de zi și zona de noapte oferă confort și intimitate, fiind o alegere potrivită atât pentru familii, cât și pentru cei care își doresc un stil de viață urban premium. Ansamblul Wings este apreciat pentru arhitectura modernă, calitatea construcției și poziționarea excelentă în oraș, oferind acces rapid către facilități urbane și un standard ridicat de locuire. Aspecte financiare și logistice: Apartamentul beneficiază de Extras CF 0% comision pentru cumpărător Prețul afișat include TVA Parcare subterană inclusă in preț. Pentru informații suplimentare și programarea unei vizionări, vă stăm la dispoziție.
Citește mai mult Citește mai puțin
Confort 1 Semidecomandat Nemobilat 10 Balcoane / Terase / Logii Centrală proprie Încălzire prin pardoseală 1 Garaj

Detalii apartament

ID anunț: XBA0106K8 Copiat! 274927323 Copiat!
Actualizat în: 16 Martie 2026
Suprafață construită: 168 mp
Nr. bucătării: 1
Nr. băi: 2
Structură rezistență: Cărămidă
Tip imobil: Bloc de apartamente
Regim înălțime: D+P+14E

Utilități

Destinație
Rezidențial
Ușă intrare
Metal
Izolații termice
Exterior
Ferestre cu geam termopan
Aluminiu
Contorizare
Apometre Contor căldură Contor gaz
Facilități imobil
Interfon Lift
Utilități
Curent Apă Canalizare CATV Gaze Telefon
Internet
Cablu
Amenajare străzi
Iluminat stradal Mijloace de transport în comun Asfaltate
Comision
0%

Disponibilitate proprietate:

data_properties.property_availability.Imediat

Puncte de interes

Mijloace transport
bus-station
Varianta Zorilor
Stații autobuz aprox. 110 m
bus-station
Statia Post Zorilor, Linia 46, 50
Stații autobuz aprox. 398 m
tram-station
Statia Gr. Alexandrescu, Linia 6
Stații tramvai aprox. 1515 m
tram-station
Parang
Stații tramvai aprox. 1569 m
Școală
school
Liceul Waldorf
Școli aprox. 240 m
kindergarten
Gradinita Liceului Waldorf
Gradinițe aprox. 316 m
school
Liceul Edmond Nicolau
Școli aprox. 751 m
university
USAMV Cluj-Napoca
Universități aprox. 1114 m
Recreere
supermarket
Lidl
Supermarket aprox. 117 m
park
Parc
Parcuri aprox. 476 m
restaurant
Zucca
Restaurant aprox. 607 m
sports-ground
Teren sportiv
Terenuri sport aprox. 732 m

Detalii despre preț și costuri

Prețul pe piață

Preț cerut: 301.350 €

Preț min. zonă 167.000 €
Preț max. zonă 355.000 €

52% dintre proprietățile similare ca zonă și nr. camere au prețul cerut mai mare. mai multe...

Bine de știut: prețul unei proprietăți este influențat și de alte caracteristici, cum ar fi: vechime, localizare, vecinătăți, suprafață, compartimentare, amenajări, dotări, etc. mai puțin...

Costuri cu achiziția

Fără credit
13.254 RON
Credit ipotecar
15.647 RON
Noua casă
1.677 RON+ taxe notariale

i

Costuri adiționale mai puțin știute la achiziție: taxe notariale, comisioane etc.

Proprietăți recomandate

Detalii de contact

Comitat Imobiliare

Radu Sucila Manager

Comitat Imobiliare
PRO

Abonează-te la newsletter să fii primul care primește cele mai noi recomandări de proprietăți și sfaturi de la experți.

CONTACT

Creează alertă

Salvează căutarea ca să primești pe email ultimele anunțuri publicate

Apartamente noi cu 3 camere de vânzare în zona Zorilor, Cluj-Napoca