3

Apartament 4 camere, 93,1 mp, Ansamblu Rezidential, Zorilor

275.465 €

Zorilor, Cluj-Napoca

Nr. cam.:
4
Sup. utilă:
93,1 mp
Etaj:
11 / 15
An constr.:
2021 (Finalizată)
  • • Locație aproximativă

Descriere apartament

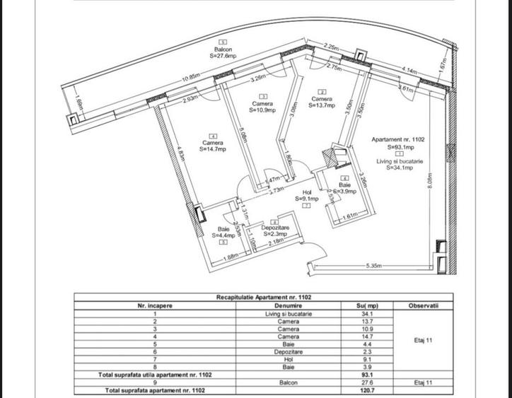
De vanzare – Apartament 4 camere, 93,1 mp utili + balcon 27,6 mp, semifinisat – Ansamblu rezidential Zorilor, etaj 11 Zorilor | Etaj 11 | Vedere panoramica | Semifinisat | Spatiu generos | Balcon deosebit Va propunem spre vanzare un apartament cu 4 camere, situat la etajul 11 al unui imobil nou dintr-un ansamblu rezidential modern, aflat in inima cartierului Zorilor – una dintre cele mai dorite zone din Cluj-Napoca. Detalii apartament: • Suprafata utila: 93,1 mp • Living cu bucatarie open-space – spatiu luminos si aerisit, ideal pentru relaxare si socializare • 3 dormitoare – confortabile si bine proportionate • 2 bai – prevazute pentru confortul intregii familii • Hol si spatiu de depozitare – pentru o organizare eficienta • Balcon generos de 27,6 mp – cu vedere panoramica, ideal pentru amenajare ca terasa, zona de relaxare sau gradina urbana Caracteristici: • Semifinisat – cu posibilitatea de a fi amenajat dupa propriul gust (pereti tencuiti, sapa, instalatii electrice si sanitare trase, usa metalica, geamuri termopan) • Cladire noua, cu lift modern, acces securizat si finisaje de calitate in spatiile comune • Ansamblu rezidential in Zorilor – cu infrastructura completa, locuri de parcare, spatii verzi, aproape de tot ce ai nevoie Avantaje locatie – Zorilor: • Acces facil catre Centru, UMF, Spitalul de Recuperare, Sigma Center • Aproape de scoli, gradinite, farmacii, supermarketuri si mijloace de transport • Zona linistita, sigura si cu dezvoltare continua – excelenta pentru locuit sau investitie Pentru mai multe detalii sau pentru a programa o vizionare, nu ezitati sa ma contactati! Cod oferta / ID BLITZ: P146374
Citește mai mult Citește mai puțin
Decomandat Nemobilat 1 Balcon / Terasă / Logie Centrală proprie 2 Parcări 2 Parcări / Garaje / Parcări subterane

Detalii apartament

ID anunț: XFTI104D0 Copiat! 261853176 Copiat!
Actualizat în: 19 Martie 2026
Nr. bucătării: 1
Nr. băi: 2
Tip imobil: Bloc de apartamente
Regim înălțime: S+D+P+15E

Utilități

Utilități
Curent Apă
Alte spații utile
Debara
Ușă intrare
Metal
Ferestre cu geam termopan
PVC
Amenajare străzi
Asfaltate
Comision
%

Disponibilitate proprietate:

imediat

Puncte de interes

Mijloace transport
bus-station
Varianta Zorilor
Stații autobuz aprox. 167 m
bus-station
Eugen Lovinescu Est
Stații autobuz aprox. 337 m
tram-station
Statia Gr. Alexandrescu, Linia 6
Stații tramvai aprox. 1508 m
tram-station
Parang
Stații tramvai aprox. 1517 m
Școală
school
Liceul Waldorf
Școli aprox. 457 m
kindergarten
Gradinita Liceului Waldorf
Gradinițe aprox. 529 m
school
Liceul Edmond Nicolau
Școli aprox. 635 m
university
USAMV Cluj-Napoca
Universități aprox. 1317 m
Recreere
supermarket
Lidl
Supermarket aprox. 274 m
sports-ground
Teren sportiv
Terenuri sport aprox. 610 m
park
Parc
Parcuri aprox. 611 m
pub
Old Pub
Pub aprox. 820 m

Detalii despre preț și costuri

Prețul pe piață

Preț cerut: 275.465 €

Preț min. zonă
Preț max. zonă

55% dintre proprietățile similare ca zonă și nr. camere au prețul cerut mai mare. mai multe...

Bine de știut: prețul unei proprietăți este influențat și de alte caracteristici, cum ar fi: vechime, localizare, vecinătăți, suprafață, compartimentare, amenajări, dotări, etc. mai puțin...

Insight premium disponibil după login

Costuri cu achiziția

Fără credit
Credit ipotecar
Noua casă

i

Costuri adiționale mai puțin știute la achiziție: taxe notariale, comisioane etc.

Insight premium disponibil după login

Proprietăți recomandate

Detalii de contact

BLITZ

BLITZ ROMANIA

4.70(108 review-uri)

BLITZ
PRO

Abonează-te la newsletter să fii primul care primește cele mai noi recomandări de proprietăți și sfaturi de la experți.

CONTACT

Creează alertă

Salvează căutarea ca să primești pe email ultimele anunțuri publicate

Apartamente noi cu 4+ camere de vânzare în zona Zorilor, Cluj-Napoca