Apartamente 2,3,4 camere in Ansamblu Premium cu CF | Cartier Zorilor!

275.465 €

Zorilor, Cluj-Napoca

Nr. cam.:
4
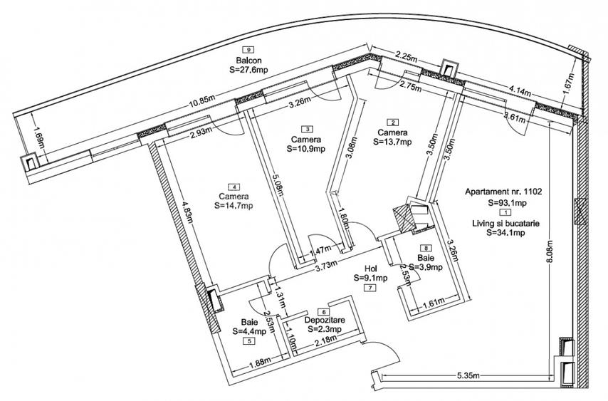
Sup. utilă:
93 mp
Etaj:
11 / 14
An constr.:
2024 (data_properties.construction_stage.finished)
  • • Locație aproximativă

Descriere apartament

Va propunem spre vanzare apartament intr-un complex Rezidential exclusivist amplasat in cartierul Zorilor, in proximitatea punctelor de interes. Punctele forte ale acestui ansamblu sunt terasele generoase si privelistea superba asupra orasului. Sunt disponibile ultimele proprietati de 2,3 si 4 camere, avand compartimentari si orientari diverse. Apartamentul dispune de o suprafata utila de 93 mp, iar compartimentarea semidecomandata este gandita astfel: - 3 dormitorare; - 1 bucatarie + living open space ; - 2 baie; - 1 balcon 28 mp - spatiu depozitare Printre dotarile Ansamblului putem aminti: - gradina urbana de 3500 mp - sistem supraveghere video si paza 24/7 - arhitectura splendida -clasificarea "Green Homes" care certifica un consum redus de energie Preturile afisate include si 2 locuri de parcare. Se accepta orice modalitate de plata. Predarea se face la stadiul de semifinisat, care include: centrala termica in condensare cu incalzire in pardoseala, geamuri cu tamplarie din aluminiu, instalatiile trase pe pozitie, terasa finisata si spatii comune amenajate. Pentru mai multe informatii sau programarea unei vizionari, nu ezitati sa ne contactati! Garantam castigul reciproc! [ ID Proprietate: 10725 ]
Citește mai mult Citește mai puțin
data_properties.listing_key_features.comfort.comfort-1 Semidecomandat Nemobilat 1 Balcon / Terasă / Logie Grădină Centrală proprie Încălzire prin pardoseală 1 Parcare 1 Garaj Bine întreținut (Bună)

Detalii apartament

ID anunț: XAHI104J4 Copiat! 261999132 Copiat!
Actualizat în: 02 Martie 2026
Suprafață construită: 120 mp
Nr. bucătării: 1
Nr. băi: 2
Structură rezistență: Cărămidă
Tip imobil: Bloc de apartamente
Regim înălțime: P+14E
Nr. terase: 1

Utilități

Destinație
Rezidențial
Ușă intrare
Metal
Uși interior
Lemn
Ferestre cu geam termopan
PVC
Contorizare
Apometre Contor gaz
Alte spații utile
Terasă
Facilități imobil
Interfon Videointerfon Lift
Utilități
Curent Apă Canalizare Gaze
Servicii imobil
Supraveghere video
Amenajare străzi
Asfaltate Iluminat stradal Mijloace de transport în comun

Puncte de interes

Mijloace transport
bus-station
Statia Post Zorilor, Linia 46, 50
Stații autobuz aprox. 232 m
bus-station
Varianta Zorilor
Stații autobuz aprox. 278 m
tram-station
Statia Gr. Alexandrescu, Linia 6
Stații tramvai aprox. 1537 m
tram-station
Parang
Stații tramvai aprox. 1618 m
Școală
school
Liceul Waldorf
Școli aprox. 203 m
kindergarten
Gradinita Liceului Waldorf
Gradinițe aprox. 258 m
school
Scoala Generala nr. 10 / Școala Radu Stanca
Școli aprox. 657 m
university
USAMV Cluj-Napoca
Universități aprox. 999 m
Recreere
supermarket
Lidl
Supermarket aprox. 229 m
park
Parc
Parcuri aprox. 307 m
sports-ground
Teren sportiv
Terenuri sport aprox. 613 m
public-square
Piața "Lucian Blaga" (fosta Păcii)
Piețe publice aprox. 1982 m

Detalii despre preț și costuri

Prețul pe piață

Preț cerut: 275.465 €

Preț min. zonă 205.000 €
Preț max. zonă 500.000 €

55% dintre proprietățile similare ca zonă și nr. camere au prețul cerut mai mare. mai multe...

Bine de știut: prețul unei proprietăți este influențat și de alte caracteristici, cum ar fi: vechime, localizare, vecinătăți, suprafață, compartimentare, amenajări, dotări, etc. mai puțin...

Costuri cu achiziția

Fără credit
12.360 RON
Credit ipotecar
14.642 RON
Noua casă
1.544 RON+ taxe notariale

i

Costuri adiționale mai puțin știute la achiziție: taxe notariale, comisioane etc.

Proprietăți recomandate

Detalii de contact

Win Imobiliare

Win Imobiliare Office

4.65(9 review-uri)

Win Imobiliare
PRO

Abonează-te la newsletter să fii primul care primește cele mai noi recomandări de proprietăți și sfaturi de la experți.

CONTACT

Creează alertă

Salvează căutarea ca să primești pe email ultimele anunțuri publicate

Apartamente noi cu 4+ camere de vânzare în zona Zorilor, Cluj-Napoca