Penthouse 4 camere | 2 niveluri | 0% comision | Wings

448.905 €

Zorilor, Cluj-Napoca

Nr. cam.:
4
Sup. utilă:
129,9 mp
Etaj:
14 / 14
An constr.:
2023 (Finalizată)
  • • Comision 0%
  • • Locație aproximativă
  • • Vizionare prin apel video

Descriere apartament

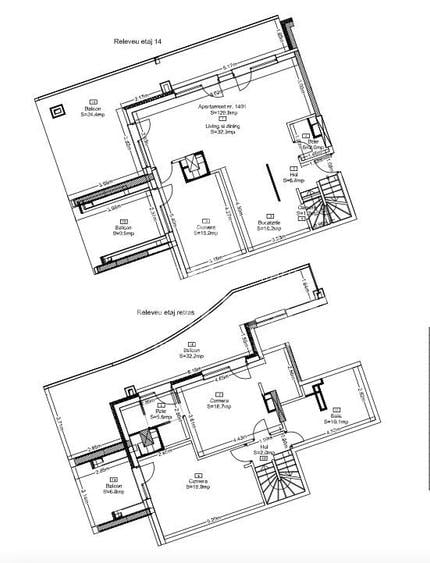
Vă propunem spre vânzare un apartament tip penthouse, dispus pe două niveluri, ideal pentru cei care își doresc spațiu, intimitate și o poziție premium, situat în ansamblul rezidențial Wings din Cluj-Napoca. Achiziția se realizează cu 0% comision pentru cumpărător. Date tehnice ale proprietății: Suprafață utilă: 129,9 mp Regim de înălțime: Etaj 14 + etaj retras Orientare: Nord-Est Stadiu predare: semifinisat Confort termic asigurat prin centrală termică proprie pe gaz și încălzire în pardoseală Compartimentare: Etaj 14: Living, Bucătărie, Baie, 1 cameră, 1 balcon, 1 terasă Etaj retras: 2 camere, 2 băi, 1 balcon, 1 terasă Proprietatea oferă o delimitare clară între zona de zi și zona de noapte, fiind potrivită atât pentru familii, cât și pentru cei care își doresc un spațiu generos de locuire sau work-from-home. Terasele și balcoanele multiple aduc un plus de lumină naturală și permit amenajarea mai multor zone exterioare de relaxare, cu priveliști deschise asupra orașului. Ansamblul Wings se evidențiază prin arhitectură modernă, calitatea construcției și poziționarea strategică în oraș, oferind acces rapid către principalele puncte de interes și un standard ridicat de confort urban. Aspecte financiare și logistice: Apartamentul deține extras cf. 0% comision pentru cumpărător Prețul afișat include TVA Parcare subterană inclusă. Pentru informații suplimentare și programarea unei vizionări, vă stăm la dispoziție.
Citește mai mult Citește mai puțin
Confort lux Semidecomandat Nemobilat Centrală proprie Încălzire prin pardoseală 1 Garaj

Detalii apartament

ID anunț: XBA0106K6 Copiat! 274927283 Copiat!
Actualizat în: 16 Martie 2026
Suprafață construită: 255 mp
Nr. bucătării: 1
Nr. băi: 2
Structură rezistență: Cărămidă
Tip imobil: Bloc de apartamente
Regim înălțime: P+14E
Nr. terase: 5

Utilități

Destinație
Rezidențial
Ușă intrare
Metal
Izolații termice
Exterior
Ferestre cu geam termopan
Aluminiu
Contorizare
Apometre Contor căldură Contor gaz
Alte spații utile
Terasă
Facilități imobil
Interfon Lift
Utilități
Curent Apă Canalizare CATV Gaze Telefon
Internet
Cablu
Amenajare străzi
Iluminat stradal Mijloace de transport în comun Asfaltate
Comision
0%

Disponibilitate proprietate:

data_properties.property_availability.Imediat

Puncte de interes

Mijloace transport
bus-station
Varianta Zorilor
Stații autobuz aprox. 110 m
bus-station
Statia Post Zorilor, Linia 46, 50
Stații autobuz aprox. 398 m
tram-station
Statia Gr. Alexandrescu, Linia 6
Stații tramvai aprox. 1515 m
tram-station
Parang
Stații tramvai aprox. 1569 m
Școală
school
Liceul Waldorf
Școli aprox. 240 m
kindergarten
Gradinita Liceului Waldorf
Gradinițe aprox. 316 m
school
Liceul Edmond Nicolau
Școli aprox. 751 m
university
USAMV Cluj-Napoca
Universități aprox. 1114 m
Recreere
supermarket
Lidl
Supermarket aprox. 117 m
park
Parc
Parcuri aprox. 476 m
restaurant
Zucca
Restaurant aprox. 607 m
sports-ground
Teren sportiv
Terenuri sport aprox. 732 m

Detalii despre preț și costuri

Prețul pe piață

Preț cerut: 448.905 €

Preț min. zonă 205.000 €
Preț max. zonă 500.000 €

69% dintre proprietățile similare ca zonă și nr. camere au prețul cerut mai mic. mai multe...

Bine de știut: prețul unei proprietăți este influențat și de alte caracteristici, cum ar fi: vechime, localizare, vecinătăți, suprafață, compartimentare, amenajări, dotări, etc. mai puțin...

Costuri cu achiziția

Fără credit
18.321 RON
Credit ipotecar
21.340 RON
Noua casă
2.429 RON+ taxe notariale

i

Costuri adiționale mai puțin știute la achiziție: taxe notariale, comisioane etc.

Proprietăți recomandate

Detalii de contact

Comitat Imobiliare

Radu Sucila Manager

Comitat Imobiliare
PRO

Abonează-te la newsletter să fii primul care primește cele mai noi recomandări de proprietăți și sfaturi de la experți.

CONTACT

Creează alertă

Salvează căutarea ca să primești pe email ultimele anunțuri publicate

Apartamente noi cu 4+ camere de vânzare în zona Zorilor, Cluj-Napoca