16

Vânzare Apartament cu parcare privata

189.000 €

Carrefour, Constanța

Nr. cam.:
3
Sup. utilă:
95,24 mp
Etaj:
3 / 4
An constr.:
2017 (Finalizată)
  • • Locație exactă

Descriere apartament

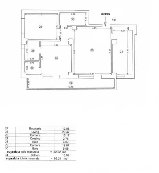
Constanta - Tomis Plus Vânzare Apartament in Dinamic Residence & EuroVial. Se oferă spre Vânzare un Apartament spatios cu 3 camere si 2 bai împreună cu locul de parcare privat deținut în Actele de Proprietate. Apartamentul deține o Suprafață Utilizabila Totala de 95.24 mp. din care 82.22 mp. reprezintă Suprafata Utila a încăperilor la care se adauga un Balcon inchis in suprafață de 13.02 mp. Defalcate Suprafetele Apartamentului sunt: * Living 29.42 mp. * Dormitor 15.17 mp. * Dormitor 12.67 mp. * Bucătărie 13.08 mp. * Baie 4.07 mp. * Baie 5.05 mp. * Balcon 13.02 mp. Apartamentul se vinde mobilat și utilat complet conform imaginilor afișate iar dotările interioare prezintă urme minime de uzura pentru că nu a fost niciodată inchiriat sau instrainat și este locuit in prezent doar de catre unicul Proprietar. Orientarea cardinală a Apartamentului este catre Est iar facturile de încălzire în anotimpul rece sunt mici. Blocul din care face parte Apartamentul deține un număr relativ mic de imobile și are constituită o Asociație de Locatari responsabila care menține blocul foarte curat și bine întreținut. Vecinătățile Apartamentului sunt: strada Napoli strada Haga SuperMarket MegaImage Supermarketul Carrefour in general zona fiind foarte liniștită cu conexiuni rapide și ieșire directă in oraș prin bulevardul Tomis. Pentru alte informații contactați Agentul Proprietatii la telefonul WhatsApp Alin.
Citește mai mult Citește mai puțin
Decomandat Mobilat 1 Balcon / Terasă / Logie Aer condiționat Calorifere Centrală proprie 1 Parcare Bine întreținut (Bună) Zonă de litoral

Detalii apartament

ID anunț: X7HL100T3 Copiat! 253947583 Copiat!
Actualizat în: 19 Februarie 2026
Suprafață construită: 101 mp
Nr. băi: 2
Structură rezistență: data_properties.building_structure.BCA
Tip imobil: Bloc de apartamente
Regim înălțime: P+4E

Utilități

Destinație
Rezidențial
Jaluzele
Orizontale
Pereți
Vopsea lavabilă Faianță Tapet
Podele
Parchet Gresie
Rulouri/Obloane
PVC
Ușă intrare
Metal
Uși interior
Celulare Panel
Izolații termice
Exterior
Ferestre cu geam termopan
PVC PVC
Contorizare
Apometre Contor căldură Contor gaz
Bucătărie
Mobilată Utilată
Electrocasnice
Mașină de spălat Frigider Aragaz Mașină spălat vase TV Cafetieră Cuptor microunde Hotă
Alte spații utile
Terasă WC Serviciu
Facilități imobil
Interfon
Utilități
Curent Apă Canalizare Gaze CATV
Internet
Fibră optică
Servicii imobil
Supraveghere video
Amenajare străzi
Asfaltate Iluminat stradal Mijloace de transport în comun

Puncte de interes

Mijloace transport
bus-station
Statia Carrefour, autobuzele 100C, 43C
Stații autobuz aprox. 922 m
bus-station
Carrefour [43C 100C]
Stații autobuz aprox. 987 m
bus-station
Sere[3 43C 100C]
Stații autobuz aprox. 1342 m
bus-station
Sere[3 43C 100C]
Stații autobuz aprox. 1451 m
Școală
school
Școala cu Clasele I-VIII Nr.14
Școli aprox. 1576 m
school
Scoala Nr. 14
Școli aprox. 1577 m
kindergarten
Gradinita Nr.39
Gradinițe aprox. 1594 m
university
Baza nautica UMC
Universități aprox. 1785 m
Recreere
supermarket
Carrefour
Supermarket aprox. 729 m
supermarket
Centrul Comercial Tom
Supermarket aprox. 788 m
park
Parc
Parcuri aprox. 1650 m
restaurant
Taverna Sarbului
Restaurant aprox. 1963 m

Detalii despre preț și costuri

Prețul pe piață

Preț cerut: 189.000 €

Preț min. zonă
Preț max. zonă

61% dintre proprietățile similare ca zonă și nr. camere au prețul cerut mai mic. mai multe...

Bine de știut: prețul unei proprietăți este influențat și de alte caracteristici, cum ar fi: vechime, localizare, vecinătăți, suprafață, compartimentare, amenajări, dotări, etc. mai puțin...

Insight premium disponibil după login

Costuri cu achiziția

Fără credit
Credit ipotecar
Noua casă

i

Costuri adiționale mai puțin știute la achiziție: taxe notariale, comisioane etc.

Insight premium disponibil după login

Proprietăți similare

Apartament cu 4 camere decomandat, mobilat în Energia
182.000 € + TVA
Constanța, Energia
4 camere
99 mp
Etaj 1
Apartament cu 3 camere decomandat în Tomis Plus
189.975 € + TVA
Constanța, Tomis Plus
3 camere
111,75 mp
Etaj 1 / 9
Apartament cu 2 camere decomandat în Aurel Vlaicu
187.000 €
Constanța, Aurel Vlaicu
2 camere
84 mp
Etaj 6 / 19

Detalii de contact

Abonează-te la newsletter să fii primul care primește cele mai noi recomandări de proprietăți și sfaturi de la experți.

CONTACT

Creează alertă

Salvează căutarea ca să primești pe email ultimele anunțuri publicate

Apartamente cu 3 camere de vânzare în zona Carrefour, Constanța