9

City Parc Mall - Apartament 3 camere, mobilat - utilat modern

118.000 €

City Park Mall, Constanța

Nr. cam.:
3
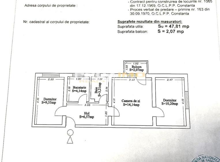
Sup. utilă:
50 mp
Etaj:
3 / 4
An constr.:
1970 (Finalizată)
  • • Exclusivitate
  • • Locație aproximativă
  • • Proprietate nelocuită

Descriere apartament

Profimo Real Estate va prezinta spre vanzare un apartament cu 3 camere exclusivist, cu o suprafata de 50mp, renovat integral, mobilat modern, utilat premium, centrala pe gaze, aer conditionat, termopane. Acesta se afla la etajul 3 al unui bloc din caramida, cu 4 etaje, situat in imediata apropriere de City Parc Mall, vis a vis de Parcul Tabacariei. Se vinde asa cum se vede in poze.
Citește mai mult Citește mai puțin
Confort 1 Semidecomandat Mobilat Lux 1 Balcon / Terasă / Logie Aer condiționat Calorifere Centrală proprie Renovat Bine întreținut (Bună) Zonă de litoral

Detalii apartament

ID anunț: X9H0100IP Copiat! 267508103 Copiat!
Actualizat în: 06 Aprilie 2026
Suprafață utilă totală: 57 mp
Nr. bucătării: 1
Nr. băi: 1
Structură rezistență: Cărămidă
Tip imobil: Bloc de apartamente
Regim înălțime: P+4E

Utilități

Destinație
Rezidențial De vacanță
Pereți
Faianță Vopsea lavabilă
Podele
Gresie Parchet
Ușă intrare
Metal
Uși interior
Panel
Izolații termice
Exterior
Ferestre cu geam termopan
PVC
Contorizare
Contor gaz Apometre
Bucătărie
Mobilată Utilată
Electrocasnice
Mașină de spălat Frigider Cuptor microunde Aragaz Hotă TV
Utilități
Curent Apă Canalizare Gaze CATV
Internet
Fibră optică Wireless
Amenajare străzi
Asfaltate
Comision
2%

Certificat energetic:

Clasa energetică: A

Vecinătăți:

Vis a vis de City Park Mall

Alte detalii despre preț:

Negociabil

Disponibilitate proprietate:

Imediat

Puncte de interes

Mijloace transport
bus-station
Statia Tomis 3; Linia 42
Stații autobuz aprox. 311 m
bus-station
Tomis 3 [100
Stații autobuz aprox. 311 m
bus-station
Metropolitan Bus 23 "Bulevard" Terminal (en)
Stații autobuz aprox. 316 m
bus-station
Statia Bulevard; Linia 100,100C,102
Stații autobuz aprox. 362 m
Școală
kindergarten
Grădinița cu Program Normal "Căsuța Poveștilor"
Gradinițe aprox. 314 m
school
Colegiul Național de Arte "Regina Maria"
Școli aprox. 314 m
kindergarten
Grădinița cu orar normal nr. 25 Căsuța Poveștilor
Gradinițe aprox. 324 m
university
Ovidius University, the Medicine Faculty (en)
Universități aprox. 1287 m
Recreere
supermarket
City Park
Supermarket aprox. 256 m
park
Centru inchirieri biciclete I velo. (en)
Parcuri aprox. 262 m
sports-ground
Teren fotbal
Terenuri sport aprox. 309 m
public-square
Piața Chiliei
Piețe publice aprox. 1261 m

Detalii despre preț și costuri

Prețul pe piață

Preț cerut: 118.000 €

Preț min. zonă
Preț max. zonă

51% dintre proprietățile similare ca zonă și nr. camere au prețul cerut mai mare. mai multe...

Bine de știut: prețul unei proprietăți este influențat și de alte caracteristici, cum ar fi: vechime, localizare, vecinătăți, suprafață, compartimentare, amenajări, dotări, etc. mai puțin...

Insight premium disponibil după login

Costuri cu achiziția

Fără credit
Credit ipotecar
Noua casă

i

Costuri adiționale mai puțin știute la achiziție: taxe notariale, comisioane etc.

Insight premium disponibil după login

Proprietăți recomandate

Detalii de contact

Abonează-te la newsletter să fii primul care primește cele mai noi recomandări de proprietăți și sfaturi de la experți.

CONTACT

Creează alertă

Salvează căutarea ca să primești pe email ultimele anunțuri publicate

Apartamente cu 3 camere de vânzare în zona City Park Mall, Constanța