►Dacia 3 Camere in VILA 94m² Constructie 2025 Etaj 2 cu POD Incalzire Pardoseala

179.900 €

Dacia, Constanța

Nr. cam.:
3
Sup. utilă:
94 mp
Etaj:
2 / 2
An constr.:
2025 (Finalizată)
  • • Locație aproximativă

Descriere apartament

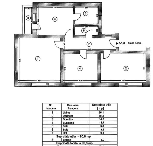
► Birou de Intermediere si Consultanta Imobiliara Va propunem spre Vanzare un apartament de 3 Camere Decomandate, confort maxim, avand o Suprafata Utila de 93,80m² cu Balcon, in zona Dacia, situat la Etajul 2 intr-un Vila P+2 cu POD necirculabil de Tigla, finalizata in anul 2025 Vila P+2, finalizata 2025, este construita din Caramida Porotherm de 30cm, izolata eXterior cu Vata Bazaltica de 10cm si Tencuiala decoarativa, finisata atat interior cat si exterior.. Contine DOAR 3 apartametente, cate unul pe nivel, cu Casa Scari amenajata, Finisata si intrari separate la fiecare Apartament in parte. Exista contorizare individuala pentru fiecare din cele trei apartamente: alimentare cu apa, si energie electrica precum si gaze. Apartamentul este foarte Luminos, pozitionat Sud-Est, cu tavane inalte de 2,80m, are 2 Grupuri Sanitare, fiecare cu aerisire Naturala, finisata la stadiul "de alb", cu toate Sapa si Tencuiala Mecanizata efectuata, instalatiile electrice, termice si sanitare realizate, precum si Incalzirea in Pardoseala racordata la Centrala pe Gaze. Tamplarie PVC tripan Salamander. Terenul pe care este amplasata casa este de 264m² cu deschiderea de 20m la strada principala, iar constructia este realizata pe aproximativ 50% din teren. Aferent constructie exista posibilitatea amenajarii unui Foisor . Totodata, viitorul proprietar va dobandi si o cota parte din terenul aferent constructie. Exista toate actele si documentatia constructie, nu sunt credite sau sarcini pe apartament, acesta avand Numar Cadastral si Carte Funciara individuala. Cadastru, Intabulare, Certificat Energetic, PAD, C: 80044
Citește mai mult Citește mai puțin
Confort lux Decomandat 1 Balcon / Terasă / Logie Curte Curte comună Centrală proprie Încălzire prin pardoseală 1 Parcare Zonă de litoral

Detalii apartament

ID anunț: X4DK000M2 Copiat! 272837314 Copiat!
Actualizat în: 02 Aprilie 2026
Suprafață utilă totală: 94 mp
Suprafață construită: 112 mp
Nr. bucătării: 1
Nr. băi: 2
Structură rezistență: Cărămidă
Tip imobil: Bloc de apartamente
Regim înălțime: P+2E

Utilități

Destinație
Rezidențial De vacanță
Izolații termice
Exterior
Ferestre cu geam termopan
PVC
Contorizare
Contor gaz Apometre
Alte spații utile
WC Serviciu
Utilități
CATV Gaze Curent Canalizare Apă
Internet
Cablu Fibră optică
Amenajare străzi
Asfaltate Iluminat stradal Mijloace de transport în comun

Vicii:

Inexistente

Vecinătăți:

► Scoala Generala nr. 12.

Disponibilitate proprietate:

Imediata

Puncte de interes

Mijloace transport
bus-station
Dacia [100
Stații autobuz aprox. 89 m
bus-station
Statia Dacia; Linia 42
Stații autobuz aprox. 318 m
bus-station
Dacia [100
Stații autobuz aprox. 352 m
bus-station
Statia Tomis 3; Linia 42
Stații autobuz aprox. 518 m
Școală
school
Scoala Nr.12
Școli aprox. 96 m
kindergarten
Gradinita nr. 58 romano-turca Constanta
Gradinițe aprox. 100 m
school
Școala cu Clasele I-VIII "B.P. Hașdeu" Nr. 12
Școli aprox. 109 m
university
Ovidius University, the Medicine Faculty (en)
Universități aprox. 1151 m
Recreere
supermarket
Carrefour Market
Supermarket aprox. 120 m
park
Dacia Fountain (en)
Parcuri aprox. 299 m
sports-ground
Stadionul de Rugby Farul Constanta
Terenuri sport aprox. 637 m
public-square
Piața Chiliei
Piețe publice aprox. 1133 m

Detalii despre preț și costuri

Prețul pe piață

Preț cerut: 179.900 €

Preț min. zonă
Preț max. zonă

55% dintre proprietățile similare ca zonă și nr. camere au prețul cerut mai mare. mai multe...

Bine de știut: prețul unei proprietăți este influențat și de alte caracteristici, cum ar fi: vechime, localizare, vecinătăți, suprafață, compartimentare, amenajări, dotări, etc. mai puțin...

Insight premium disponibil după login

Costuri cu achiziția

Fără credit
Credit ipotecar
Noua casă

i

Costuri adiționale mai puțin știute la achiziție: taxe notariale, comisioane etc.

Insight premium disponibil după login

Proprietăți recomandate

Detalii de contact

Abonează-te la newsletter să fii primul care primește cele mai noi recomandări de proprietăți și sfaturi de la experți.

CONTACT

Creează alertă

Salvează căutarea ca să primești pe email ultimele anunțuri publicate

Apartamente noi cu 3 camere de vânzare în zona Dacia, Constanța