Apartament 4 camere decomandate zona Faleza Nord

175.000 €

Faleza Nord, Constanța

Nr. cam.:
4
Sup. utilă:
85 mp
Etaj:
3 / 4
An constr.:
1978 (Finalizată)
  • • Locație exactă

Descriere apartament

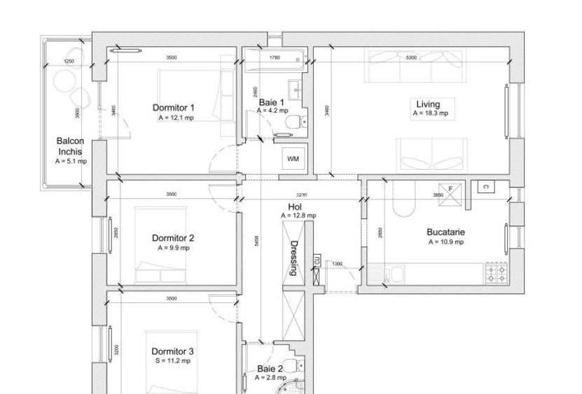
cod VA 41337 Va propunem spre achizitie Apartament 4 camere decomandate zona Faleza Nord avand o suprafata de 85mp situat la etajul 3/4,centrala pe gaz,imbunatatiri,cadastru,intabulare,se vinde la pretul de 175000 euro.Ptr mai multe detalii apelati la
Citește mai mult Citește mai puțin
Confort 1 Decomandat 1 Balcon / Terasă / Logie Zonă de litoral

Detalii apartament

ID anunț: X2M6003DC Copiat! 275236872 Copiat!
Actualizat în: 10 Martie 2026
Suprafață utilă totală: 85 mp
Nr. bucătării: 1
Nr. băi: 2
Structură rezistență: Beton
Tip imobil: Bloc de apartamente
Regim înălțime: S+P+4E

Utilități

Comision
2%

Puncte de interes

Mijloace transport
bus-station
Cap Linie 102N Urcare
Stații autobuz aprox. 211 m
bus-station
Fosta buclă de întoarcere a tramvaiului 102
Stații autobuz aprox. 218 m
bus-station
Cap Linie 102N Coborare
Stații autobuz aprox. 221 m
bus-station
Facultativa 102N
Stații autobuz aprox. 270 m
Școală
school
Spiru Haret - New building (en)
Școli aprox. 243 m
school
Liceul Energetic
Școli aprox. 302 m
kindergarten
Gradinita Nr. 45
Gradinițe aprox. 684 m
university
Universitatea Spiru Haret
Universități aprox. 1256 m
Recreere
park
Parc
Parcuri aprox. 221 m
supermarket
Mega Image
Supermarket aprox. 292 m
sports-ground
Teren sportiv
Terenuri sport aprox. 535 m
public-square
Piața Chiliei
Piețe publice aprox. 1541 m

Detalii despre preț și costuri

Prețul pe piață

Preț cerut: 175.000 €

Preț min. zonă 120.000 €
Preț max. zonă 365.000 €

70% dintre proprietățile similare ca zonă și nr. camere au prețul cerut mai mare. mai multe...

Bine de știut: prețul unei proprietăți este influențat și de alte caracteristici, cum ar fi: vechime, localizare, vecinătăți, suprafață, compartimentare, amenajări, dotări, etc. mai puțin...

Costuri cu achiziția

Fără credit
26.736 RON
Credit ipotecar
28.591 RON
Noua casă
1.031 RON+ taxe notariale

i

Costuri adiționale mai puțin știute la achiziție: taxe notariale, comisioane etc.

Proprietăți similare

Apartament cu 2 camere decomandat în Faleza Nord
187.000 €
Constanța, Faleza Nord
2 camere
84 mp
Etaj 8 / 19
Apartament cu 3 camere decomandat, mobilat în Faleza Nord
186.000 €
Constanța, Faleza Nord
3 camere
71,4 mp
Etaj 4
Apartament cu 4 camere decomandat în Faleza Nord
175.000 €
Constanța, Faleza Nord
4 camere
84 mp
Etaj 3

Detalii de contact

EUROEMPIRE IMOBILIARE INTERMED

Gabi Moise Agent Imobiliar

EUROEMPIRE IMOBILIARE INTERMED
PRO

Abonează-te la newsletter să fii primul care primește cele mai noi recomandări de proprietăți și sfaturi de la experți.

CONTACT

Creează alertă

Salvează căutarea ca să primești pe email ultimele anunțuri publicate

Apartamente cu 4+ camere de vânzare în zona Faleza Nord, Constanța