16

APARTAMENT 4 CAMERE DECOMANDAT CONFORT 0 ZONA FALEZA NORD

165.000 €

Faleza Nord, Constanța

Nr. cam.:
4
Sup. utilă:
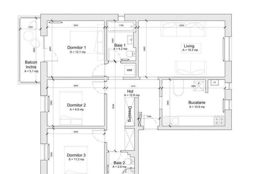
82,2 mp
Etaj:
3 / 4
An constr.:
1984 (Finalizată)
  • • Locație aproximativă

Descriere apartament

AGENTIA LACATUS CRISTIAN IMOBILIARE VA OFERA SPRE VANZARE UN APARTAMENT DE 4 CAMERE DECOMANDAT CONFORT 0 IN ZONA FALEZA NORD. APARTAMENTUL ESTE SITUAT LA ETAJUL 3 INTR-UN BLOC DE 4 ETAJE SI DISPUNE DE CENTRALA TERMICA PE GAZE, TAMPLARIE PVC, AER CONDITIONAT, USI DIN STEJAR MASIV, IZOLATIE INTERIOARA PE PARTEA DE NORD-VEST A APARTAMENTULUI SI SE VINDE PARTIAL MOBILAT. BLOCUL ESTE SITUAT INTR-O ZONA EXTREM DE LINISTITA, CU ACCES FACIL CATRE STATIUNE MAMAIA, SCOLI, GRADINITE, SPATII DE AGREMENT, MIJLOACE DE TRANSPORT IN COMUN. MERITA VAZUT. VIZIONAREA SE FACE IN BAZA CONTRACTULUI DE VIZIONARE. COD: 2659361
Citește mai mult Citește mai puțin
Decomandat Parțial mobilat 1 Balcon / Terasă / Logie Aer condiționat Calorifere Centrală proprie Zonă de litoral

Detalii apartament

ID anunț: XF5S100C2 Copiat! 268576257 Copiat!
Actualizat în: 15 Aprilie 2026
Suprafață construită: 87.3 mp
Nr. bucătării: 1
Nr. băi: 2
Structură rezistență: BCA
Tip imobil: Bloc de apartamente
Regim înălțime: P+4E

Utilități

Destinație
Rezidențial
Pereți
Faianță
Podele
Gresie Parchet
Ușă intrare
Metal
Uși interior
Lemn
Izolații termice
Interior
Ferestre cu geam termopan
PVC
Contorizare
Apometre Contor gaz
Bucătărie
Parțial mobilată
Alte spații utile
WC Serviciu
Utilități
Curent Apă Canalizare CATV Gaze Telefon
Internet
Cablu
Amenajare străzi
Iluminat stradal Mijloace de transport în comun Asfaltate
Comision
1.5%

Disponibilitate proprietate:

Imediat

Puncte de interes

Mijloace transport
bus-station
Hotel Turist [5-40
Stații autobuz aprox. 228 m
bus-station
Statie Complex ONT, Linia 40, 102
Stații autobuz aprox. 245 m
bus-station
Statie Delfinariu, Linia 40, 40C, 102
Stații autobuz aprox. 394 m
bus-station
Unirii [40
Stații autobuz aprox. 419 m
Școală
school
Liceul Energetic
Școli aprox. 78 m
school
Spiru Haret - New building (en)
Școli aprox. 86 m
kindergarten
Gradinita Nr. 45
Gradinițe aprox. 882 m
university
Universitatea Spiru Haret
Universități aprox. 1453 m
Recreere
park
Parc
Parcuri aprox. 227 m
supermarket
Mega Image
Supermarket aprox. 253 m
sports-ground
Teren sportiv
Terenuri sport aprox. 742 m
public-square
Piața Chiliei
Piețe publice aprox. 1680 m

Detalii despre preț și costuri

Prețul pe piață

Preț cerut: 165.000 €

Preț min. zonă
Preț max. zonă

73% dintre proprietățile similare ca zonă și nr. camere au prețul cerut mai mare. mai multe...

Bine de știut: prețul unei proprietăți este influențat și de alte caracteristici, cum ar fi: vechime, localizare, vecinătăți, suprafață, compartimentare, amenajări, dotări, etc. mai puțin...

Insight premium disponibil după login

Costuri cu achiziția

Fără credit
Credit ipotecar
Noua casă

i

Costuri adiționale mai puțin știute la achiziție: taxe notariale, comisioane etc.

Insight premium disponibil după login

Proprietăți recomandate

Detalii de contact

LACATUS CRISTIAN IMOBILIARE

Lacatus Cristian Manager

4.04(8 review-uri)

LACATUS CRISTIAN IMOBILIARE
PRO

Abonează-te la newsletter să fii primul care primește cele mai noi recomandări de proprietăți și sfaturi de la experți.

CONTACT

Creează alertă

Salvează căutarea ca să primești pe email ultimele anunțuri publicate

Apartamente cu 4+ camere de vânzare în zona Faleza Nord, Constanța