5

De vanzare, Bd. Ferdinand – 3 camere, 3 balcoane inchise, decomandat

130.000 €

Gara, Constanța

Nr. cam.:
3
Sup. utilă:
64,43 mp
Etaj:
1 / 8
An constr.:
1970 (Finalizată)
  • • Exclusivitate
  • • Locație aproximativă

Descriere apartament

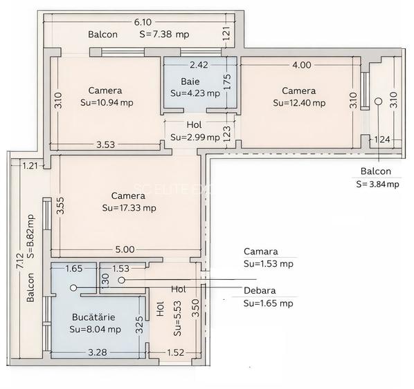
Un apartament care ofera spatiu, lumina naturala si o pozitionare greu de egalat – chiar in zona centrala a Constantei, pe Strada Traian/Bulevardul Ferdinand. Situat la etajul 1, intr-un bloc solid din beton, acest apartament de 65 mp se remarca printr-o compartimentare echilibrata si trei balcoane inchise, care extind considerabil zona utila si aduc lumina in fiecare parte a locuintei. Livingul generos, cele doua dormitoare bine proportionate si bucataria separata creeaza un spatiu potrivit pentru viata de zi cu zi a unei familii. Holurile sunt functionale, iar prezenta a 2 spatii de depozitare adauga un avantaj practic rar intalnit. Apartamentul necesita renovare completa, ceea ce il transforma intr-o baza excelenta pentru un proiect personal, fara compromisuri impuse de amenajari anterioare. Centrala proprie pe gaz, aerul conditionat si liftul nou completeaza aspectele functionale esentiale. O locuinta pentru cei care cauta echilibru, lumina si potential real, nu promisiuni goale. Daca sunteti in cautarea unei locuinte pe care sa o amenajati dupa propriul stil, SUNA ACUM pentru informatii suplimentare si pentru a stabili o vizionare.
Citește mai mult Citește mai puțin
Confort 1 Semidecomandat Nemobilat 3 Balcoane / Terase / Logii Calorifere Centrală proprie Necesită renovare Zonă de litoral

Detalii apartament

ID anunț: XC96100VP Copiat! 274775277 Copiat!
Actualizat în: 19 Mai 2026
Nr. bucătării: 1
Nr. băi: 1
Structură rezistență: Beton
Tip imobil: Bloc de apartamente
Tip tranzacție: De vânzare prin agent
Regim înălțime: P+8E
Modalitate de plată: Cash sau Credit

Utilități

Pereți
Faianță Vopsea lavabilă
Podele
Gresie Parchet
Ușă intrare
Metal
Uși interior
Lemn
Izolații termice
Exterior
Ferestre cu geam termopan
PVC
Contorizare
Apometre Contor căldură Contor gaz
Electrocasnice
Frigider
Facilități imobil
Interfon Lift
Utilități
Curent Apă Canalizare CATV Gaze Telefon
Internet
Cablu
Amenajare străzi
Iluminat stradal Mijloace de transport în comun Asfaltate
Comision
standard

Certificat energetic:

Clasa energetică: A

Disponibilitate proprietate:

Imediat

Puncte de interes

Mijloace transport
bus-station
Statie Politie; Linia 2,5, 40C,101C
Stații autobuz aprox. 456 m
bus-station
Politie[2-43
Stații autobuz aprox. 472 m
train-station
Gara CFR Constanta(1960)
Stații tren aprox. 1093 m
train-station
Gara Constanța(1960)
Stații tren aprox. 1173 m
Școală
school
Liceul Teoretic "Traian" Constanța
Școli aprox. 483 m
school
Liceul I.N. Roman
Școli aprox. 558 m
university
Anatomy Department, Faculty of General Medicine (en)
Universități aprox. 582 m
kindergarten
Grădinița cu Program Normal Nr.24
Gradinițe aprox. 649 m
Recreere
sports-ground
Teren sportiv
Terenuri sport aprox. 463 m
park
Fantana arteziana "Policlinica 2"
Parcuri aprox. 707 m
supermarket
Kaufland
Supermarket aprox. 872 m
public-square
Victory Square (en)
Piețe publice aprox. 969 m

Detalii despre preț și costuri

Prețul pe piață

Preț cerut: 130.000 €

Preț min. zonă
Preț max. zonă

77% dintre proprietățile similare ca zonă și nr. camere au prețul cerut mai mic. mai multe...

Bine de știut: prețul unei proprietăți este influențat și de alte caracteristici, cum ar fi: vechime, localizare, vecinătăți, suprafață, compartimentare, amenajări, dotări, etc. mai puțin...

Acces la informații premium după autentificare
Login Gratuit

Costuri cu achiziția

Fără credit
Credit ipotecar
Noua casă

i

Costuri adiționale mai puțin știute la achiziție: taxe notariale, comisioane etc.

Acces la informații premium după autentificare
Login Gratuit

Proprietăți similare

Apartament cu 2 camere decomandat în Gara
125.000 €
Constanța, Gara
2 camere
65 mp
Etaj 2
Apartament cu 2 camere decomandat în Gara
136.000 €
Constanța, Gara
2 camere
55 mp
Etaj 1 / 4
Apartament cu 2 camere semidecomandat, mobilat în Gara
126.000 €
Constanța, Gara
2 camere
61 mp
Etaj 3

Detalii de contact

SC ELITE EXCLUSIV SRL

George Sfrent Real Estate Agent

SC ELITE EXCLUSIV SRL
PRO

Abonează-te la newsletter să fii primul care primește cele mai noi recomandări de proprietăți și sfaturi de la experți.

CONTACT

Creează alertă

Salvează căutarea ca să primești pe email ultimele anunțuri publicate

Apartamente cu 3 camere de vânzare în zona Gara, Constanța