4

🙋Poarta 6 🔸 3 Camere Decomandate 65m² Incadrat SUD Centrala pe Gaze

109.900 €

Poarta 6, Constanța

Nr. cam.:
3
Sup. utilă:
65 mp
Etaj:
2 / 4
An constr.:
1983 (Finalizată)
  • • LocaÈ›ie aproximativă

Descriere apartament

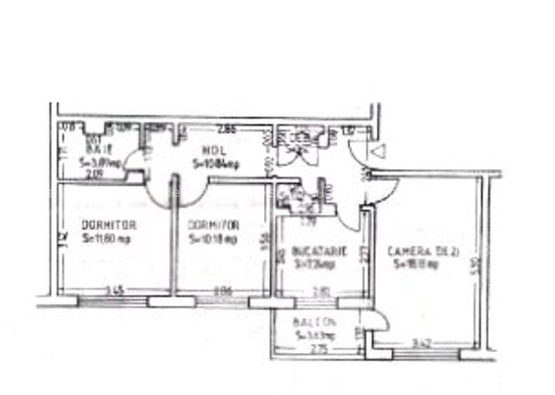
⏩ Birou de Intermediere si Consultanta Imobiliara 🔸 Va propunem spre Vanzare un apartament de 3 Camere Decomandate Confort 0, situat in zona Poarta 6, avand o suprafata utila de 65m² cu Balcon, situat la Etajul 2 intr-un bloc 4 Etaje, finalizat in anul 1983. 🔸 Apartamentul este foarte luminos, Incadrat pe SUD, are 2 grupuri sanitare, se vinde Mobilat si Utilat cu Centrala Termica pe Gaze si aer Conditionat, precum si rulouri la geamuri. Cadastru, Intabulare, Certificat Energetic, PAD C: 82945
Citește mai mult Citește mai puțin
Decomandat Mobilat 1 Balcon / Terasă / Logie Aer condiționat Calorifere Centrală proprie Zonă de litoral

Detalii apartament

ID anunÈ›: X4DK000P2 Copiat! 275395284 Copiat!
Actualizat în: 05 Mai 2026
Suprafață construită: 74.55 mp
Nr. bucătării: 1
Nr. băi: 2
Structură rezistență: BCA
Tip imobil: Bloc de apartamente
Tip tranzacție: De vânzare prin agent
Regim înălțime: P+4E
Modalitate de plată: Cash sau Credit

Utilități

Destinație
Rezidențial De vacanță
Pereți
Faianță Vopsea lavabilă
Podele
Parchet Gresie
Rulouri/Obloane
PVC
Ușă intrare
Lemn Metal
Uși interior
Lemn Sticlă
Izolații termice
Exterior
Ferestre cu geam termopan
PVC
Contorizare
Contor gaz Apometre
Bucătărie
Mobilată Utilată
Alte spații utile
WC Serviciu
Facilități imobil
Interfon
Utilități
Gaze Canalizare Apă CATV Curent
Internet
Cablu Fibră optică
Amenajare străzi
Asfaltate Iluminat stradal Mijloace de transport în comun

Vecinătăți:

🔸

Puncte de interes

Mijloace transport
bus-station
Statia Doraly Mall; Linia 5
Stații autobuz aprox. 557 m
bus-station
"Poarta 6" Bus 2 & 2b Terminal (en)
Stații autobuz aprox. 605 m
bus-station
Doraly Mall [101C
Stații autobuz aprox. 657 m
bus-station
Statia Pandurului; Linia 5
Stații autobuz aprox. 659 m
Școală
school
Liceul Teoretic "Lucian Blaga" Constanța
Școli aprox. 136 m
school
Colegiul Tehnic de Marina "Alexandru Ioan Cuza" Constanța
Școli aprox. 361 m
kindergarten
Gradinita nr. 38 Constanta
Gradinițe aprox. 519 m
kindergarten
Grădinița cu Program Normal "Micul Univers"
Gradinițe aprox. 874 m
Recreere
sports-ground
Teren sportiv
Terenuri sport aprox. 233 m
park
Parc Faleza Sud
Parcuri aprox. 378 m
supermarket
Dorally Mall
Supermarket aprox. 623 m
restaurant
Complex Rovas
Restaurant aprox. 1593 m

Detalii despre preț și costuri

Prețul pe piață

Preț cerut: 109.900 €

Preț min. zonă €
Preț max. zonă €

77% dintre proprietățile similare ca zonă și nr. camere au prețul cerut mai mic. mai multe...

Bine de știut: prețul unei proprietăți este influențat și de alte caracteristici, cum ar fi: vechime, localizare, vecinătăți, suprafață, compartimentare, amenajări, dotări, etc. mai puțin...

Acces la informații premium după autentificare
Login Gratuit

Costuri cu achiziția

Fără credit
€
Credit ipotecar
€
Noua casă
€

i

Costuri adiționale mai puțin știute la achiziție: taxe notariale, comisioane etc.

Acces la informații premium după autentificare
Login Gratuit

Proprietăți similare

Apartament cu 3 camere decomandat, mobilat în Poarta 6
110.000 €
Constanța, Poarta 6
3 camere
55 mp
Etaj 4
Apartament cu 3 camere decomandat în Poarta 6
112.000 €
Constanța, Poarta 6
3 camere
69 mp
Etaj 2
Apartament cu 3 camere decomandat în Poarta 6
111.500 €
Constanța, Poarta 6
3 camere
65 mp
Etaj 2

Detalii de contact

Birou de Intermediere si Consultanta Imobiliara

Ioana N Broker Imobiliar

4.71(6 review-uri)

Birou de Intermediere si Consultanta Imobiliara

Abonează-te la newsletter să fii primul care primește cele mai noi recomandări de proprietăți și sfaturi de la experți.

CONTACT

Creează alertă

Salvează căutarea ca să primești pe email ultimele anunțuri publicate

Apartamente cu 3 camere de vânzare în zona Poarta 6, Constanța