1

APARTAMENT 2 CAMERE DECOMANDAT CONFORT MAXIM ZONA COMPOZITORI

115.000 €

Primo, Constanța

Nr. cam.:
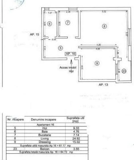
2
Sup. utilă:
61,17 mp
Etaj:
3 / 3
An constr.:
2015 (Finalizată)
  • • Locație aproximativă

Descriere apartament

AGENTIA LACATUS CRISTIAN IMOBILIARE VA OFERA SPRE VANZARE UN APARTAMENT DE 2 CAMERE ( TRANSFORMAT IN 3 CAMERE ) IN ZONA PRIMO- COMPOZITORI. APARTAMENTUL ESTE SITUAT LA ETAJUL 3 INTR-UN BLOC DE 4 ETAJE ( ULTIMUL ETAJ FIIND MANSARDA ) SI DISPUNE DE CENTRALA TERMICA PE GAZE, TAMPLARIE PVC 7 CAMERE CU STICLA TRIPAN, IZOLATIE EXTERIOARA, AER CONDITIONAT, INSTALATIE ELECTRICA GEWISS IGNIFUGA SI SE VINDE COMPLET MOBILAT SI UTILAT DUPA CUM APARE IN POZE. BLOCUL ESTE SITUAT INTR-O ZONA LINISTITA, CU ACCES FACIL CATRE TOATE PUNCTELE DE INTERES ALE ORASULUI. VA ASTEPTAM LA VIZIONARE. VIZIONAREA SE FACE IN BAZA CONTRACTULUI DE VIZIONARE. COD: 2950098
Citește mai mult Citește mai puțin
Decomandat Mobilat Lux 1 Balcon / Terasă / Logie Aer condiționat Calorifere Centrală proprie 1 Parcare Zonă de litoral

Detalii apartament

ID anunț: XF5S100FO Copiat! 275170483 Copiat!
Actualizat în: 02 Martie 2026
Suprafață construită: 64.72 mp
Nr. bucătării: 1
Nr. băi: 1
Structură rezistență: BCA
Tip imobil: Bloc de apartamente
Regim înălțime: P+3E+M

Utilități

Destinație
Rezidențial
Pereți
Faianță
Podele
Gresie Parchet
Ușă intrare
Metal
Uși interior
Lemn
Izolații termice
Exterior
Ferestre cu geam termopan
PVC
Contorizare
Apometre Contor gaz
Bucătărie
Mobilată Utilată
Electrocasnice
Aragaz Frigider Mașină de spălat TV
Utilități
Curent Apă Canalizare CATV Gaze Telefon
Internet
Cablu
Amenajare străzi
Iluminat stradal Mijloace de transport în comun Asfaltate
Comision
1.5%

Disponibilitate proprietate:

Imediat

Puncte de interes

Mijloace transport
train-station
Halta Traian Mărfuri
Stații tren aprox. 374 m
train-station
Stația CFR Constanța Mărfuri
Stații tren aprox. 389 m
bus-station
Statia Scoala 23; Linia 102
Stații autobuz aprox. 602 m
bus-station
Eliberarii [102
Stații autobuz aprox. 619 m
Școală
school
Colegiul Nautic Roma
Școli aprox. 564 m
kindergarten
Gradinita Calutul de Mare
Gradinițe aprox. 598 m
school
Școala nr.23
Școli aprox. 611 m
university
Academia Navală Mircea cel Bătrân
Universități aprox. 664 m
Recreere
sports-ground
Teren sportiv
Terenuri sport aprox. 409 m
supermarket
Perla
Supermarket aprox. 598 m
restaurant
Restaurant Allegria
Restaurant aprox. 621 m
park
Parc
Parcuri aprox. 920 m

Detalii despre preț și costuri

Prețul pe piață

Preț cerut: 115.000 €

Preț min. zonă
Preț max. zonă

53% dintre proprietățile similare ca zonă și nr. camere au prețul cerut mai mare. mai multe...

Bine de știut: prețul unei proprietăți este influențat și de alte caracteristici, cum ar fi: vechime, localizare, vecinătăți, suprafață, compartimentare, amenajări, dotări, etc. mai puțin...

Insight premium disponibil după login

Costuri cu achiziția

Fără credit
Credit ipotecar
Noua casă

i

Costuri adiționale mai puțin știute la achiziție: taxe notariale, comisioane etc.

Insight premium disponibil după login

Proprietăți recomandate

Detalii de contact

LACATUS CRISTIAN IMOBILIARE

Lacatus Cristian Manager

4.04(8 review-uri)

LACATUS CRISTIAN IMOBILIARE
PRO

Abonează-te la newsletter să fii primul care primește cele mai noi recomandări de proprietăți și sfaturi de la experți.

CONTACT

Creează alertă

Salvează căutarea ca să primești pe email ultimele anunțuri publicate

Apartamente cu 2 camere de vânzare în zona Primo, Constanța