3

Tomis Nord - Vanzare apartament decomandat cu 2 camere, bloc nou.

101.000 €

Tomis Nord, Constanța

Nr. cam.:
2
Sup. utilă:
71,5 mp
Etaj:
1 / 4
An constr.:
2025 (Finalizată)
  • • Comision 0%
  • • Exclusivitate
  • • Locație aproximativă

Descriere apartament

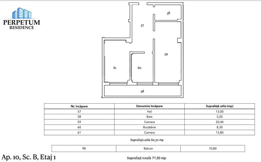
Apartamentul nr. 10 din Perpetum Residence III – Tomis Nord te așteaptă să-l numești „acasă”. Un apartament cu 2 camere, conceput pentru confort și funcționalitate, cu o suprafață utilă totală de 71,50 mp, din care 10,80 mp reprezintă balconul: ✔️ Dormitor liniștit și primitor ✔️ Living luminos, generos ✔️ Bucătărie închisă ✔️ Baie modernă ✔️ Balcon spațios, ideal pentru relaxare Complexul oferă finisaje premium și dotări moderne: – încălzire în pardoseală – tâmplărie de calitate superioară – lifturi moderne – supraveghere video – locuri de parcare incluse Totul este gândit pentru siguranță, confort și un stil de viață rafinat. Nu este doar un apartament. Este începutul unui nou capitol, într-un loc care inspiră eleganță și echilibru. Imaginile sunt cu titlu de prezentare. PRETUL AFISAT NU CONTINE TVA! Investește într-un cadru de viață ideal, la doar câțiva pași de centrul comercial Carrefour, a stațiunii Mamaia și a principalelor zone de agrement. Perpetum Residence III îți oferă accesul la un stil de viață premium, într-o zonă în plină dezvoltare. Amplasat strategic lângă centrul comercial Tom Carrefour, proiectul Perpetum Residence III îți oferă acces ușor la tot ce ai nevoie pentru un stil de viață modern și echilibrat. Investește în confortul și exclusivitatea la care ai visat, într-o zonă în plină efervescență, la doar câțiva pași de stațiunea Mamaia, Parcul Tabacărie și principalele centre comerciale. Perpetum Residence III - un complex rezidențial construit pentru a-ți oferi tot ce îți dorești pentru un trai select.
Citește mai mult Citește mai puțin
Confort 1 Decomandat Nemobilat 1 Balcon / Terasă / Logie Curte comună Aer condiționat Centrală proprie Încălzire prin pardoseală Zonă de litoral

Detalii apartament

ID anunț: XC96100SE Copiat! 271251030 Copiat!
Actualizat în: 15 Mai 2026
Suprafață construită: 83.45 mp
Nr. bucătării: 1
Nr. băi: 1
Structură rezistență: Beton
Tip imobil: Bloc de apartamente
Tip tranzacție: De vânzare prin agent
Regim înălțime: S+P+4E
Modalitate de plată: Cash sau Credit

Utilități

Destinație
Rezidențial
Pereți
Vopsea lavabilă
Ușă intrare
Metal
Izolații termice
Exterior Interior
Ferestre cu geam termopan
PVC
Contorizare
Apometre Contor gaz
Facilități imobil
Lift Videointerfon
Utilități
Curent Apă Canalizare Gaze
Servicii imobil
Supraveghere video
Amenajare străzi
Iluminat stradal Mijloace de transport în comun Pietruite
Comision
0%

Vecinătăți:

Farmacii, Transport, Zone comerciale, Cafenele, Banci

Disponibilitate proprietate:

Imediat

Puncte de interes

Mijloace transport
bus-station
Statia Obor; Linia 1, 3B, 3R
Stații autobuz aprox. 429 m
bus-station
Statia Peco; Linia 1,3B, 3R
Stații autobuz aprox. 467 m
bus-station
Statia Targ; Linia 1, 3B, 3R
Stații autobuz aprox. 514 m
bus-station
VIVO! [1
Stații autobuz aprox. 537 m
Școală
kindergarten
Gradinita cu program normal Nr.51
Gradinițe aprox. 1015 m
kindergarten
Gradinita nr. 43 Constanta
Gradinițe aprox. 1058 m
school
School No. 36 (en)
Școli aprox. 1186 m
university
Baza nautica UMC
Universități aprox. 1604 m
Recreere
sports-ground
Teren baschet Maritimo
Terenuri sport aprox. 625 m
park
Parc
Parcuri aprox. 709 m
supermarket
JYSK
Supermarket aprox. 733 m
restaurant
Restaurant Rustic
Restaurant aprox. 1161 m

Istoricul prețurilor

Acces la informații premium după autentificare
Login Gratuit

Detalii despre preț și costuri

Prețul pe piață

Preț cerut: 101.000 €

Preț min. zonă
Preț max. zonă

92% dintre proprietățile similare ca zonă și nr. camere au prețul cerut mai mare. mai multe...

Bine de știut: prețul unei proprietăți este influențat și de alte caracteristici, cum ar fi: vechime, localizare, vecinătăți, suprafață, compartimentare, amenajări, dotări, etc. mai puțin...

Acces la informații premium după autentificare
Login Gratuit

Costuri cu achiziția

Fără credit
Credit ipotecar
Noua casă

i

Costuri adiționale mai puțin știute la achiziție: taxe notariale, comisioane etc.

Acces la informații premium după autentificare
Login Gratuit

Proprietăți similare

Apartament cu 2 camere decomandat în Tomis Nord
107.569 €
Constanța, Tomis Nord
2 camere
58 mp
Etaj 1
Apartament cu 2 camere decomandat în Tomis Nord
108.500 €
Constanța, Tomis Nord
2 camere
75,8 mp
Etaj 1 / 4
Apartament cu 3 camere semidecomandat, mobilat în Tomis Nord
110.000 €
Constanța, Tomis Nord
3 camere
53 mp
Etaj 3

Detalii de contact

SC ELITE EXCLUSIV SRL

Gabriela Vinteanu Sales Manager

SC ELITE EXCLUSIV SRL
PRO

Abonează-te la newsletter să fii primul care primește cele mai noi recomandări de proprietăți și sfaturi de la experți.

CONTACT

Creează alertă

Salvează căutarea ca să primești pe email ultimele anunțuri publicate

Apartamente noi cu 2 camere de vânzare în zona Tomis Nord, Constanța