2

Tomis Nord - Vanzare apartament decomandat cu 2 camere, bloc nou.

107.000 €

Tomis Nord, Constanța

Nr. cam.:
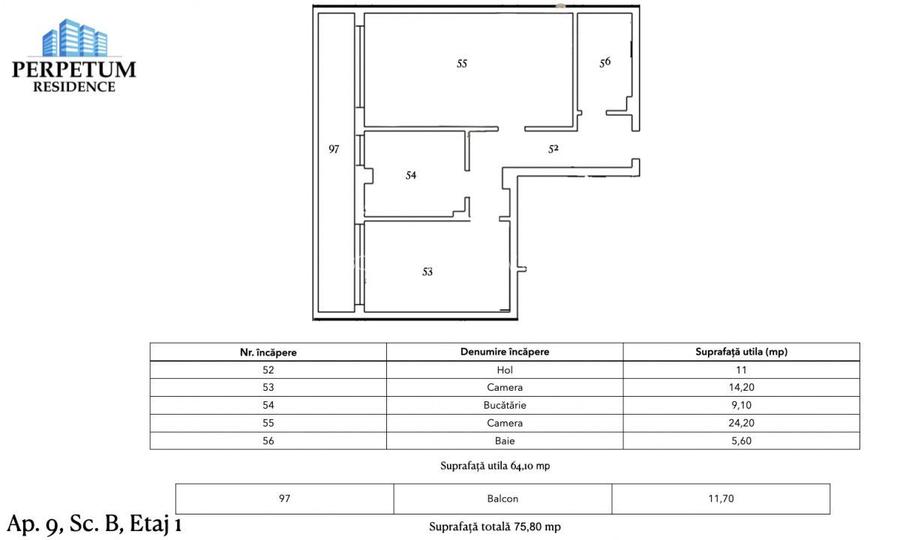
2
Sup. utilă:
75,8 mp
Etaj:
1 / 4
An constr.:
2024 (În construcție)
  • • Comision 0%
  • • Exclusivitate
  • • Locație aproximativă

Descriere apartament

Apartamentul nr. 9 din Perpetum Residence III – Tomis Nord te așteaptă cu brațele deschise! Un apartament cu 2 camere, gândit pentru confortul tău: ✔️ Dormitor, living luminos ✔️ Bucătărie închisă, baie modernă, balcon spațios ✔️ Disponibil la mai multe etaje Situat ideal, lângă Carrefour Tom, în una dintre cele mai bune zone din Constanța – aproape de tot ce ai nevoie. Finisaje premium, încălzire în pardoseală, tâmplărie de top, lifturi moderne, supraveghere video, locuri de parcare incluse – totul gândit pentru siguranța și confortul tău. Nu este doar un apartament. Este un nou început într-un loc care inspiră eleganță și rafinament. Contactează-ne acum și programează o vizionare! Imaginile sunt cu titlu de prezentare. PRETUL AFISAT NU CONTINE TVA!
Citește mai mult Citește mai puțin
Confort 1 Decomandat Nemobilat 1 Balcon / Terasă / Logie Curte comună Aer condiționat Centrală proprie Încălzire prin pardoseală Zonă de litoral

Detalii apartament

ID anunț: XC96100T0 Copiat! 271258261 Copiat!
Actualizat în: 15 Mai 2026
Suprafață construită: 81 mp
Nr. bucătării: 1
Nr. băi: 1
Structură rezistență: Beton
Tip imobil: Bloc de apartamente
Tip tranzacție: De vânzare prin agent
Regim înălțime: S+P+4E
Modalitate de plată: Cash sau Credit

Utilități

Destinație
Rezidențial
Pereți
Vopsea lavabilă
Ușă intrare
Metal
Izolații termice
Exterior Interior
Ferestre cu geam termopan
PVC
Contorizare
Apometre Contor gaz
Facilități imobil
Lift Videointerfon
Utilități
Curent Apă Canalizare Gaze
Servicii imobil
Supraveghere video
Amenajare străzi
Iluminat stradal Mijloace de transport în comun Pietruite
Comision
0%

Vecinătăți:

Farmacii, Transport, Zone comerciale, Cafenele, Banci

Disponibilitate proprietate:

Imediat

Puncte de interes

Mijloace transport
bus-station
Dobrila Eugeniu [3
Stații autobuz aprox. 138 m
bus-station
Statia Scapino; Linia 43C
Stații autobuz aprox. 230 m
bus-station
Statia Scoala 29; Linia 3,3R,3C,42,43
Stații autobuz aprox. 247 m
bus-station
Scoala 29 [42
Stații autobuz aprox. 248 m
Școală
school
Liceul George Călinescu
Școli aprox. 127 m
school
Școala Gimnazială n. 38 "Dimitrie Cantemir"
Școli aprox. 229 m
kindergarten
Grădiniță cu orar prelungit
Gradinițe aprox. 316 m
university
Baza nautica UMC
Universități aprox. 881 m
Recreere
restaurant
Rallye & Hot
Restaurant aprox. 137 m
supermarket
Penny Market
Supermarket aprox. 224 m
park
Parc
Parcuri aprox. 529 m
sports-ground
Teren sportiv
Terenuri sport aprox. 697 m

Istoricul prețurilor

Acces la informații premium după autentificare
Login Gratuit

Detalii despre preț și costuri

Prețul pe piață

Preț cerut: 107.000 €

Preț min. zonă
Preț max. zonă

92% dintre proprietățile similare ca zonă și nr. camere au prețul cerut mai mare. mai multe...

Bine de știut: prețul unei proprietăți este influențat și de alte caracteristici, cum ar fi: vechime, localizare, vecinătăți, suprafață, compartimentare, amenajări, dotări, etc. mai puțin...

Acces la informații premium după autentificare
Login Gratuit

Costuri cu achiziția

Fără credit
Credit ipotecar
Noua casă

i

Costuri adiționale mai puțin știute la achiziție: taxe notariale, comisioane etc.

Acces la informații premium după autentificare
Login Gratuit

Proprietăți similare

Apartament cu 2 camere decomandat în Tomis Nord
106.359 €
Constanța, Tomis Nord
2 camere
57 mp
Etaj 1
Apartament cu 2 camere decomandat în Tomis Nord
108.500 €
Constanța, Tomis Nord
2 camere
75,8 mp
Etaj 1 / 4
Apartament cu 2 camere decomandat în Tomis Nord
107.569 €
Constanța, Tomis Nord
2 camere
58 mp
Etaj 1

Detalii de contact

SC ELITE EXCLUSIV SRL

Gabriela Vinteanu Sales Manager

SC ELITE EXCLUSIV SRL
PRO

Abonează-te la newsletter să fii primul care primește cele mai noi recomandări de proprietăți și sfaturi de la experți.

CONTACT

Creează alertă

Salvează căutarea ca să primești pe email ultimele anunțuri publicate

Apartamente cu 2 camere de vânzare în zona Tomis Nord, Constanța