1

Tomis Nord/Carrefour-Apartament 3 camere decomandate, bloc nou.

147.700 €

Tomis Nord, Constanța

Nr. cam.:
3
Sup. utilă:
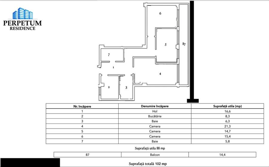
102,5 mp
Etaj:
Parter
An constr.:
2024
  • • Comision 0%
  • • Exclusivitate
  • • Locație aproximativă

Descriere apartament

Apartamentul nr. 1 – spațiul care crește odată cu tine Viața se schimbă, prioritățile se transformă, dar un singur lucru rămâne esențial: să te simți acasă. Iar apartamentul nr. 1 din Perpetum Residence III este locul care se adaptează perfect stilului tău de viață, oricare ar fi el. 3 camere atent gândite, într-un spațiu de 102,80 mp: ✔️ Două dormitoare confortabile pentru odihnă și intimitate ✔️ Living primitor – pentru clipe împărtășite cu cei dragi ✔️ Bucătărie închisă – funcțională și bine organizată ✔️ Două băi elegante ✔️ Balcon unde îți poți bea cafeaua în liniște sau respira după o zi plină Totul este construit în jurul ideii de echilibru: între spațiu și intimitate, lumină și căldură, funcționalitate și estetică. Disponibil la mai multe etaje – alege exact perspectiva care ți se potrivește cel mai bine. Fie că ești la început de drum sau îți dorești un loc unde să te simți în siguranță și confort, acest apartament este pregătit să-ți fie acasă. Hai să-l vezi! S-ar putea să fie exact ceea ce cauți de mult. Imaginile sunt cu titlu de prezentare. PRETUL AFISAT NU CONTINE TVA!
Citește mai mult Citește mai puțin
Confort lux Decomandat Nemobilat 1 Balcon / Terasă / Logie Centrală proprie Încălzire prin pardoseală Zonă de litoral

Detalii apartament

ID anunț: XC96100SG Copiat! 271255730 Copiat!
Actualizat în: 19 Mai 2026
Suprafață construită: 121.45 mp
Nr. bucătării: 1
Nr. băi: 2
Structură rezistență: BCA
Tip imobil: Bloc de apartamente
Tip tranzacție: De vânzare prin agent
Regim înălțime: S+P+4E
Modalitate de plată: Cash sau Credit

Utilități

Destinație
Rezidențial
Pereți
Vopsea lavabilă
Ușă intrare
Metal
Izolații termice
Exterior Interior
Ferestre cu geam termopan
PVC
Contorizare
Apometre Contor gaz
Diverse
Telecomandă poartă acces auto
Alte spații utile
WC Serviciu
Facilități imobil
Interfon Lift Videointerfon
Utilități
Curent Apă Canalizare Gaze
Servicii imobil
Supraveghere video
Amenajare străzi
Iluminat stradal Mijloace de transport în comun Pietruite
Comision
0%

Vecinătăți:

Zone verzi, Farmacii, Restaurante, Transport, Zone comerciale, Cafenele

Disponibilitate proprietate:

Imediat

Puncte de interes

Mijloace transport
bus-station
Statia Penny Market, linia autobuz 100C
Stații autobuz aprox. 93 m
bus-station
Dobrila Eugeniu [3
Stații autobuz aprox. 165 m
bus-station
Scoala 29 [42
Stații autobuz aprox. 405 m
bus-station
Statia Scapino; Linia 43C
Stații autobuz aprox. 407 m
Școală
school
Școala Gimnazială n. 38 "Dimitrie Cantemir"
Școli aprox. 248 m
kindergarten
Grădiniță cu orar prelungit
Gradinițe aprox. 297 m
school
Liceul George Călinescu
Școli aprox. 354 m
university
Baza nautica UMC
Universități aprox. 644 m
Recreere
supermarket
Penny Market
Supermarket aprox. 101 m
restaurant
Rallye & Hot
Restaurant aprox. 159 m
park
Parc
Parcuri aprox. 465 m
sports-ground
Teren sportiv
Terenuri sport aprox. 712 m

Istoricul prețurilor

Acces la informații premium după autentificare
Login Gratuit

Detalii despre preț și costuri

Prețul pe piață

Preț cerut: 147.700 €

Preț min. zonă
Preț max. zonă

84% dintre proprietățile similare ca zonă și nr. camere au prețul cerut mai mare. mai multe...

Bine de știut: prețul unei proprietăți este influențat și de alte caracteristici, cum ar fi: vechime, localizare, vecinătăți, suprafață, compartimentare, amenajări, dotări, etc. mai puțin...

Acces la informații premium după autentificare
Login Gratuit

Costuri cu achiziția

Fără credit
Credit ipotecar
Noua casă

i

Costuri adiționale mai puțin știute la achiziție: taxe notariale, comisioane etc.

Acces la informații premium după autentificare
Login Gratuit

Proprietăți similare

Apartament cu 2 camere semidecomandat, mobilat în Tomis Nord
135.000 €
Constanța, Tomis Nord
2 camere
59 mp
Etaj 9 / 11
Apartament cu 2 camere semidecomandat în Tomis Nord
145.000 €
Constanța, Tomis Nord
2 camere
43 mp
Etaj 8
Apartament cu 3 camere decomandat în Tomis Nord
148.800 €
Constanța, Tomis Nord
3 camere
103,2 mp
Etaj 1 / 4

Detalii de contact

SC ELITE EXCLUSIV SRL

Gabriela Vinteanu Sales Manager

SC ELITE EXCLUSIV SRL
PRO

Abonează-te la newsletter să fii primul care primește cele mai noi recomandări de proprietăți și sfaturi de la experți.

CONTACT

Creează alertă

Salvează căutarea ca să primești pe email ultimele anunțuri publicate

Apartamente cu 3 camere de vânzare în zona Tomis Nord, Constanța