4

Tomis Nord/Carrefour-Vanzare apartament cu 3 camere, bloc nou.

147.500 €

Tomis Nord, Constanța

Nr. cam.:
3
Sup. utilă:
102,8 mp
Etaj:
2 / 4
An constr.:
2025 (Finalizată)
  • • Comision 0%
  • • Exclusivitate
  • • Locație aproximativă

Descriere apartament

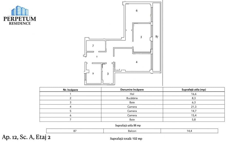
Apartamentul nr. 12 – spațiul care crește odată cu tine Viața se schimbă, prioritățile se transformă, dar un singur lucru rămâne esențial: să te simți acasă. Iar apartamentul nr. 12 din Perpetum Residence III este locul care se adaptează perfect stilului tău de viață, oricare ar fi el. 3 camere atent gândite, într-un spațiu de 102,80 mp: ✔️ Două dormitoare confortabile pentru odihnă și intimitate ✔️ Living primitor – pentru clipe împărtășite cu cei dragi ✔️ Bucătărie închisă – funcțională și bine organizată ✔️ Două băi elegante ✔️ Balcon unde îți poți bea cafeaua în liniște sau respira după o zi plină Totul este construit în jurul ideii de echilibru: între spațiu și intimitate, lumină și căldură, funcționalitate și estetică. Disponibil la mai multe etaje – alege exact perspectiva care ți se potrivește cel mai bine. Imaginile sunt cu titlu de prezentare. PRETUL AFISAT NU CONTINE TVA! Fie că ești la început de drum sau îți dorești un loc unde să te simți în siguranță și confort, acest apartament este pregătit să-ți fie acasă. Hai să-l vezi! S-ar putea să fie exact ceea ce cauți de mult. Imaginile sunt cu titlu de prezentare. Perpetum Residence III este noul complex rezidențial premium din Constanța, Zona Tomis Nord, care reunește luxul, confortul și funcționalitatea într-un loc select și în plină dezvoltare. Descoperi o oază de liniște și exclusivitate în Perpetum Residence III, noul complex rezidențial premium din Constanța ce insumeaza un numar de 47 de unitati locative. Amplasat în zona Tomis Nord, aproape de centrul comercial Carrefour, acest proiect îți oferă acces facil la tot ce ai nevoie pentru un stil de viață select. Apartamentele spațioase, cu finisaje de înaltă calitate și dotări de ultimă generație, îți vor oferi tot confortul de care ai nevoie. Fie că alegi un apartament cu 2 sau 3 camere, vei beneficia de detalii tehnice excepționale - de la ferestrele termoizolante până la încălzirea centrală prin pardoseală. Investește într-un cadru de viață ideal, la doar câțiva pași de centrul comercial Carrefour, a stațiunii Mamaia și a principalelor zone de agrement. Perpetum Residence III îți oferă accesul la un stil de viață premium, într-o zonă în plină dezvoltare. Amplasat strategic lângă centrul comercial Tom Carrefour, proiectul Perpetum Residence III îți oferă acces ușor la tot ce ai nevoie pentru un stil de viață modern și echilibrat. Fie că optezi pentru un apartament cu 2 sau 3 camere, vei descoperi spații generoase și dotări de ultimă oră - de la ferestrele termoizolante, până la încălzirea centrală prin pardoseală și pre-instalația de aer condiționat. Investește în confortul și exclusivitatea la care ai visat, într-o zonă în plină efervescență, la doar câțiva pași de stațiunea Mamaia, Parcul Tabacărie și principalele centre comerciale. Perpetum Residence III - un complex rezidențial construit pentru a-ți oferi tot ce îți dorești pentru un trai select.
Citește mai mult Citește mai puțin
Confort lux Decomandat Nemobilat 2 Balcoane / Terase / Logii Curte comună Centrală proprie Încălzire prin pardoseală Zonă de litoral

Detalii apartament

ID anunț: XC9610125 Copiat! 274935506 Copiat!
Actualizat în: 15 Mai 2026
Suprafață construită: 121.5 mp
Nr. bucătării: 1
Nr. băi: 2
Structură rezistență: Beton
Tip imobil: Bloc de apartamente
Tip tranzacție: De vânzare prin agent
Regim înălțime: S+P+4E
Modalitate de plată: Cash sau Credit

Utilități

Pereți
Vopsea lavabilă
Ușă intrare
Metal
Izolații termice
Exterior Interior
Ferestre cu geam termopan
PVC
Contorizare
Apometre Contor gaz
Alte spații utile
WC Serviciu
Facilități imobil
Lift Videointerfon
Utilități
Curent Apă Canalizare Gaze
Servicii imobil
Supraveghere video
Amenajare străzi
Iluminat stradal Mijloace de transport în comun Pietruite
Comision
0%

Vecinătăți:

Zone verzi, Restaurante, Transport, Zone comerciale, Cafenele

Disponibilitate proprietate:

Imediat

Puncte de interes

Mijloace transport
bus-station
Carrefour [43C 100C]
Stații autobuz aprox. 373 m
bus-station
Statia Carrefour, autobuzele 100C, 43C
Stații autobuz aprox. 408 m
bus-station
Sere[3 43C 100C]
Stații autobuz aprox. 589 m
bus-station
Sere[3 43C 100C]
Stații autobuz aprox. 635 m
Școală
kindergarten
Gradinita cu program normal Nr.51
Gradinițe aprox. 1195 m
kindergarten
Gradinita nr. 51 Constanta
Gradinițe aprox. 1265 m
school
Liceul George Călinescu
Școli aprox. 1304 m
university
Baza nautica UMC
Universități aprox. 1398 m
Recreere
supermarket
JYSK
Supermarket aprox. 378 m
park
Parc
Parcuri aprox. 655 m
sports-ground
Teren baschet Maritimo
Terenuri sport aprox. 960 m
restaurant
Rallye & Hot
Restaurant aprox. 1208 m

Istoricul prețurilor

Acces la informații premium după autentificare
Login Gratuit

Detalii despre preț și costuri

Prețul pe piață

Preț cerut: 147.500 €

Preț min. zonă
Preț max. zonă

85% dintre proprietățile similare ca zonă și nr. camere au prețul cerut mai mare. mai multe...

Bine de știut: prețul unei proprietăți este influențat și de alte caracteristici, cum ar fi: vechime, localizare, vecinătăți, suprafață, compartimentare, amenajări, dotări, etc. mai puțin...

Acces la informații premium după autentificare
Login Gratuit

Costuri cu achiziția

Fără credit
Credit ipotecar
Noua casă

i

Costuri adiționale mai puțin știute la achiziție: taxe notariale, comisioane etc.

Acces la informații premium după autentificare
Login Gratuit

Proprietăți similare

Apartament cu 2 camere decomandat în Tomis Nord
157.300 €
Constanța, Tomis Nord
2 camere
54 mp
Etaj 1
Apartament cu 4 camere semidecomandat în Tomis Nord
159.999 €
Constanța, Tomis Nord
4 camere
85 mp
Parter
Apartament cu 2 camere semidecomandat, mobilat în Tomis Nord
135.000 €
Constanța, Tomis Nord
2 camere
59 mp
Etaj 9 / 11

Detalii de contact

SC ELITE EXCLUSIV SRL

Gabriela Vinteanu Sales Manager

SC ELITE EXCLUSIV SRL
PRO

Abonează-te la newsletter să fii primul care primește cele mai noi recomandări de proprietăți și sfaturi de la experți.

CONTACT

Creează alertă

Salvează căutarea ca să primești pe email ultimele anunțuri publicate

Apartamente noi cu 3 camere de vânzare în zona Tomis Nord, Constanța