1

Tomis Nord/Carrefour - Vanzare apartament cu 3 camere, bloc nou.

144.000 €

Tomis Nord, Constanța

Nr. cam.:
3
Sup. utilă:
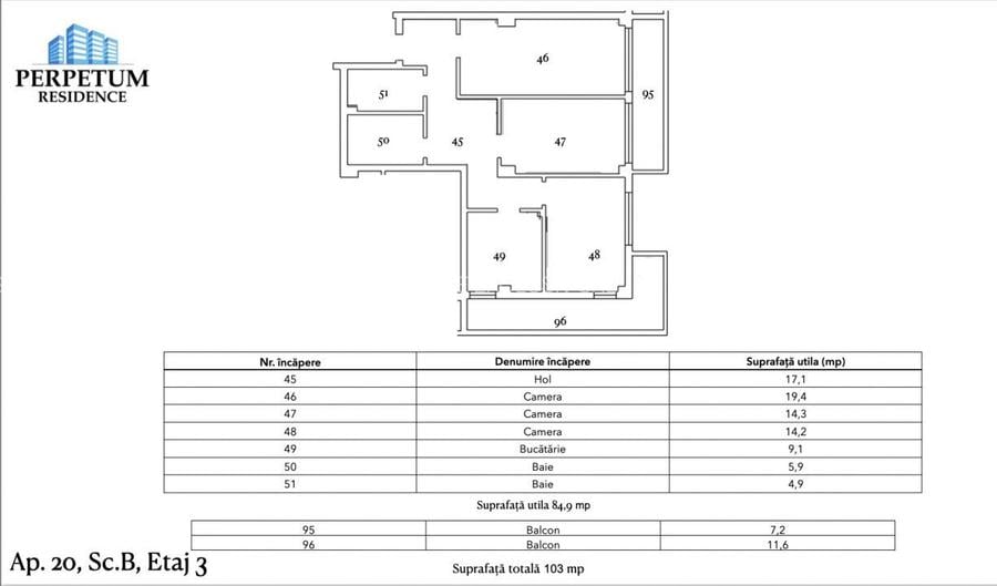
103,7 mp
Etaj:
3
An constr.:
2024
  • • Comision 0%
  • • Exclusivitate
  • • Locație aproximativă

Descriere apartament

Apartamentul nr. 20 – spațiul în care familia ta va înflori Unele locuințe sunt mai mult decât niște camere – sunt locuri unde se creează amintiri, unde râsetele copiilor se împletesc cu liniștea serilor, unde te simți în siguranță, iubit și „acasă”. Apartament cu 3 camere pline de lumină și căldură: ✔️ 2 dormitoare pentru vise liniștite ✔️ Living spațios – locul unde familia se adună ✔️ Bucătărie închisă – perfectă pentru mese cu suflet ✔️ 2 băi ✔️ 2 balcoane – colțuri de relaxare și inspirație Totul este gândit cu grijă, de la spațiile aerisite și luminoase până la intimitatea perfect echilibrată. Este genul de apartament în care te vezi crescând alături de cei dragi. Disponibil la mai multe etaje, în cadrul Perpetum Residence III – Tomis Nord, într-o zonă ideală pentru familii: aproape de centru comercial Carrefour Tom, magazine, parcuri și tot ce contează. Finisaje premium, confort termic prin încălzire în pardoseală, locuri de parcare și un mediu sigur și elegant – pentru liniștea întregii familii. Nu e doar o casă. Este noul vostru cămin. Programează acum o vizionare și profită de oferta lunii! Imaginile sunt cu titlu de prezentare. PRETUL AFISAT NU CONTINE TVA!
Citește mai mult Citește mai puțin
Confort lux Decomandat Nemobilat 2 Balcoane / Terase / Logii Curte comună Centrală proprie Încălzire prin pardoseală Zonă de litoral

Detalii apartament

ID anunț: XC9610126 Copiat! 274935750 Copiat!
Actualizat în: 15 Mai 2026
Suprafață construită: 122.25 mp
Nr. bucătării: 1
Nr. băi: 2
Structură rezistență: BCA
Tip imobil: Bloc de apartamente
Tip tranzacție: De vânzare prin agent
Regim înălțime: S+P+4E
Modalitate de plată: Cash sau Credit

Utilități

Pereți
Vopsea lavabilă
Ușă intrare
Metal
Izolații termice
Exterior Interior
Ferestre cu geam termopan
PVC
Contorizare
Apometre Contor gaz
Diverse
Telecomandă poartă acces auto
Alte spații utile
WC Serviciu
Facilități imobil
Lift Videointerfon
Utilități
Curent Apă Canalizare Gaze
Servicii imobil
Supraveghere video
Amenajare străzi
Iluminat stradal Mijloace de transport în comun Pietruite
Comision
0%

Vecinătăți:

Zone verzi, Restaurante, Transport, Zone comerciale, Cafenele

Disponibilitate proprietate:

Imediat

Puncte de interes

Mijloace transport
bus-station
Statia Penny Market, linia autobuz 100C
Stații autobuz aprox. 56 m
bus-station
Dobrila Eugeniu [3
Stații autobuz aprox. 281 m
bus-station
Sere[3 43C 100C]
Stații autobuz aprox. 371 m
bus-station
Statia Scapino; Linia 43C
Stații autobuz aprox. 380 m
Școală
school
Școala Gimnazială n. 38 "Dimitrie Cantemir"
Școli aprox. 384 m
school
Liceul George Călinescu
Școli aprox. 437 m
kindergarten
Grădiniță cu orar prelungit
Gradinițe aprox. 441 m
university
Baza nautica UMC
Universități aprox. 698 m
Recreere
supermarket
Penny Market
Supermarket aprox. 94 m
restaurant
Rallye & Hot
Restaurant aprox. 273 m
park
Parc
Parcuri aprox. 323 m
sports-ground
Teren sportiv
Terenuri sport aprox. 857 m

Istoricul prețurilor

Acces la informații premium după autentificare
Login Gratuit

Detalii despre preț și costuri

Prețul pe piață

Preț cerut: 144.000 €

Preț min. zonă
Preț max. zonă

88% dintre proprietățile similare ca zonă și nr. camere au prețul cerut mai mare. mai multe...

Bine de știut: prețul unei proprietăți este influențat și de alte caracteristici, cum ar fi: vechime, localizare, vecinătăți, suprafață, compartimentare, amenajări, dotări, etc. mai puțin...

Acces la informații premium după autentificare
Login Gratuit

Costuri cu achiziția

Fără credit
Credit ipotecar
Noua casă

i

Costuri adiționale mai puțin știute la achiziție: taxe notariale, comisioane etc.

Acces la informații premium după autentificare
Login Gratuit

Proprietăți similare

Apartament cu 2 camere semidecomandat, mobilat în Tomis Nord
135.000 €
Constanța, Tomis Nord
2 camere
59 mp
Etaj 9 / 11
Apartament cu 2 camere semidecomandat în Tomis Nord
145.000 €
Constanța, Tomis Nord
2 camere
43 mp
Etaj 8
Apartament cu 3 camere în Tomis Nord
139.150 €
Constanța, Tomis Nord
3 camere
76,85 mp
Etaj 2 / 3

Detalii de contact

SC ELITE EXCLUSIV SRL

Gabriela Vinteanu Sales Manager

SC ELITE EXCLUSIV SRL
PRO

Abonează-te la newsletter să fii primul care primește cele mai noi recomandări de proprietăți și sfaturi de la experți.

CONTACT

Creează alertă

Salvează căutarea ca să primești pe email ultimele anunțuri publicate

Apartamente cu 3 camere de vânzare în zona Tomis Nord, Constanța