25

Apartament 4 camere, decomandat – Zonă Tomis Nord (Cireșica/pretabspațiu

134.000 €

Tomis Nord, Constanța

Nr. cam.:
4
Sup. utilă:
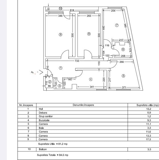
84 mp
Etaj:
Parter / 4
An constr.:
1979 (Finalizată)
  • • Exclusivitate
  • • Locație exactă

Descriere apartament

Exclusiv Vă propunem spre vânzare un apartament cu 4 camere situat într-una dintre cele mai căutate zone ale Constanței: Tomis Nord – zona Piața Cireșica. Poziționat strategic într-un bloc stradal, imobilul beneficiază de o vizibilitate excelentă, fiind pretabil atât pentru locuit, cât și pentru transformarea în spațiu comercial (cabinet medical, birouri, salon sau punct de lucru). Locuința este ideală pentru o familie numeroasă sau ca investiție pentru închiriere (fiind foarte aproape de Universitatea Ovidius), oferind posibilitatea de a fi amenajată de la zero conform propriului gust. Specificații principale: Compartimentare: Decomandat (asigură intimitate totală pentru fiecare cameră); Suprafață: 4 camere spațioase, 2 băi, debara (spațiu depozitare) și balcon; Orientare: Vedere bilaterală (luminos pe tot parcursul zilei și ușor de ventilat); Structură: Bloc din cărămidă, recunoscut pentru izolația termică și fonică superioară (apartament foarte călduros); Utilități: Gaze la ușa apartamentului (posibilitate instalare centrală proprie imediată). Starea imobilului: Apartamentul nu dispune de îmbunătățiri recente și necesită renovare completă. Acest lucru reprezintă un avantaj pentru viitorul proprietar, care nu va plăti pentru finisaje vechi și își poate personaliza finisajele, instalațiile și designul de la zero. Localizare și puncte de interes: Piața Cireșica: la doar câțiva pași (acces rapid la produse proaspete și magazine); Educație: În imediata apropiere de Universitatea Ovidius; Recreere: Distanță de mers pe jos până în Parcul Tăbăcăriei și City Park Mall; Transport: Acces facil la mijloacele de transport în comun, școli și grănițe. Un apartament solid, într-o zonă verde și aerisită, care așteaptă să fie transformat în „acasă” sau să devină sediul noii tale afaceri.
Citește mai mult Citește mai puțin
Confort lux Decomandat 1 Balcon / Terasă / Logie Termoficare Necesită renovare Zonă de litoral

Detalii apartament

ID anunț: XB3N000RJ Copiat! 272803181 Copiat!
Actualizat în: 04 Martie 2026
Suprafață utilă totală: 87 mp
Suprafață construită: 120 mp
Nr. bucătării: 1
Nr. băi: 2
Structură rezistență: Cărămidă
Tip imobil: Bloc de apartamente
Regim înălțime: P+4E

Utilități

Utilități
Gaze Curent Canalizare Apă
Amenajare străzi
Asfaltate Mijloace de transport în comun Iluminat stradal

Puncte de interes

Mijloace transport
bus-station
Cap Linie Ciresica [3
Stații autobuz aprox. 28 m
bus-station
Scoala 29 [42
Stații autobuz aprox. 372 m
bus-station
Statia Scoala 29; Linia 3,3R,3C,42,43
Stații autobuz aprox. 393 m
bus-station
Dobrila Eugeniu [3
Stații autobuz aprox. 404 m
Școală
kindergarten
Grădiniță cu orar prelungit
Gradinițe aprox. 204 m
school
Scoala 35
Școli aprox. 282 m
kindergarten
Gradinita cu program prelungit nr.14
Gradinițe aprox. 414 m
university
Campus Universitatea Ovidius
Universități aprox. 522 m
Recreere
restaurant
Restaurant Millenium
Restaurant aprox. 24 m
supermarket
Supermarket Ciresica
Supermarket aprox. 44 m
sports-ground
Teren sportiv
Terenuri sport aprox. 255 m
park
Parc
Parcuri aprox. 479 m

Detalii despre preț și costuri

Prețul pe piață

Preț cerut: 134.000 €

Preț min. zonă 98.000 €
Preț max. zonă 237.000 €

68% dintre proprietățile similare ca zonă și nr. camere au prețul cerut mai mare. mai multe...

Bine de știut: prețul unei proprietăți este influențat și de alte caracteristici, cum ar fi: vechime, localizare, vecinătăți, suprafață, compartimentare, amenajări, dotări, etc. mai puțin...

Costuri cu achiziția

Fără credit
7.501 RON
Credit ipotecar
9.182 RON
Noua casă
823 RON+ taxe notariale

i

Costuri adiționale mai puțin știute la achiziție: taxe notariale, comisioane etc.

Proprietăți recomandate

Detalii de contact

Abonează-te la newsletter să fii primul care primește cele mai noi recomandări de proprietăți și sfaturi de la experți.

CONTACT

Creează alertă

Salvează căutarea ca să primești pe email ultimele anunțuri publicate

Apartamente cu 4+ camere de vânzare în zona Tomis Nord, Constanța