Apartament 2 camere zona Tomis Plus

132.000 €

Tomis Plus, Constanța

Nr. cam.:
2
Sup. utilă:
58 mp
Etaj:
6 / 9
An constr.:
2020 (Finalizată)
  • • Locație aproximativă

Descriere apartament

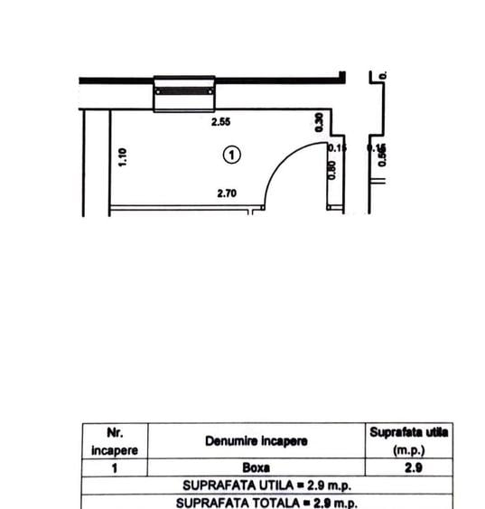
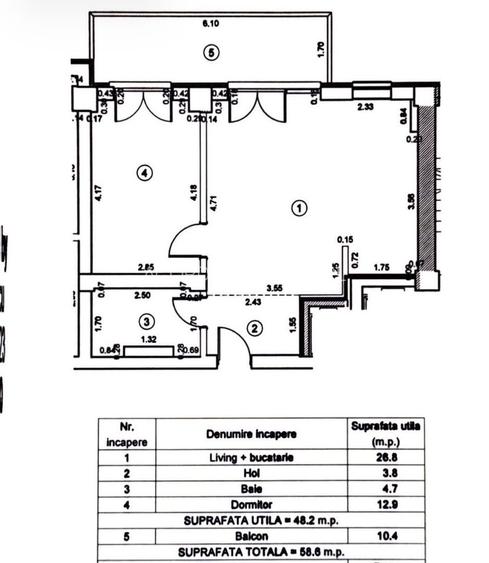
Agentia Acord Imobiliar, va propune spre vanzare, un apartament cu 2 camere semidecomandat, situat la etajul 6/9 cu o suprafata utila de 58 mp cu balcon.Dispune de boxa,loc de parcare,centrala proprie si este izolat exterior. Se vinde cum se vede in poze. Pentru mai multe detalii, nu ezitati sa ne contactati!
Citește mai mult Citește mai puțin
Confort 1 Semidecomandat Mobilat Centrală proprie 1 Parcare Zonă de litoral

Detalii apartament

ID anunț: X41D104P9 Copiat! 275446388 Copiat!
Actualizat în: 17 Aprilie 2026
Nr. bucătării: 1
Nr. băi: 1
Tip imobil: Bloc de apartamente
Regim înălțime: P+9E

Utilități

Utilități
Curent Apă Canalizare CATV Gaze Telefon
Internet
Cablu
Amenajare străzi
Iluminat stradal Mijloace de transport în comun Asfaltate
Comision
standard

Disponibilitate proprietate:

Imediat

Puncte de interes

Mijloace transport
bus-station
Statia Carrefour, autobuzele 100C, 43C
Stații autobuz aprox. 934 m
bus-station
Carrefour [43C 100C]
Stații autobuz aprox. 992 m
bus-station
Sere[3 43C 100C]
Stații autobuz aprox. 1235 m
bus-station
Sere[3 43C 100C]
Stații autobuz aprox. 1342 m
Școală
school
Scoala Nr. 14
Școli aprox. 1318 m
school
Școala cu Clasele I-VIII Nr.14
Școli aprox. 1320 m
kindergarten
Gradinita Nr.39
Gradinițe aprox. 1321 m
university
Baza nautica UMC
Universități aprox. 1468 m
Recreere
supermarket
Carrefour
Supermarket aprox. 784 m
supermarket
Centrul Comercial Tom
Supermarket aprox. 836 m
park
Parc
Parcuri aprox. 1580 m
restaurant
Taverna Sarbului
Restaurant aprox. 1676 m

Detalii despre preț și costuri

Prețul pe piață

Preț cerut: 132.000 €

Preț min. zonă
Preț max. zonă

80% dintre proprietățile similare ca zonă și nr. camere au prețul cerut mai mic. mai multe...

Bine de știut: prețul unei proprietăți este influențat și de alte caracteristici, cum ar fi: vechime, localizare, vecinătăți, suprafață, compartimentare, amenajări, dotări, etc. mai puțin...

Insight premium disponibil după login

Costuri cu achiziția

Fără credit
Credit ipotecar
Noua casă

i

Costuri adiționale mai puțin știute la achiziție: taxe notariale, comisioane etc.

Insight premium disponibil după login

Proprietăți similare

Apartament cu 2 camere decomandat, mobilat în Tomis Plus
119.000 €
Constanța, Tomis Plus
2 camere
60 mp
Etaj 3
Apartament cu 3 camere decomandat, mobilat în Tomis Plus
128.000 €
Constanța, Tomis Plus
3 camere
66 mp
Etaj 3
Apartament cu 3 camere decomandat în Tomis Plus
137.710 € + TVA
Constanța, Tomis Plus
3 camere
71,19 mp
Etaj 4 / 10

Detalii de contact

ACORD IMOBILIAR SRL

VLAD JUKOVSCHI Consultant Imobiliar

ACORD IMOBILIAR SRL
PRO

Abonează-te la newsletter să fii primul care primește cele mai noi recomandări de proprietăți și sfaturi de la experți.

CONTACT

Creează alertă

Salvează căutarea ca să primești pe email ultimele anunțuri publicate

Apartamente cu 2 camere de vânzare în zona Tomis Plus, Constanța