Ap. 3 camere cu vedere la mare și boxă 30 mp, ultracentral

225.000 €

Ultracentral, Constanța

Nr. cam.:
3
Sup. utilă:
60,05 mp
Etaj:
1 / 2
An constr.:
1930 (Finalizată)
  • • Comision 0%
  • • Locație aproximativă
  • • Vizionare prin apel video

Descriere apartament

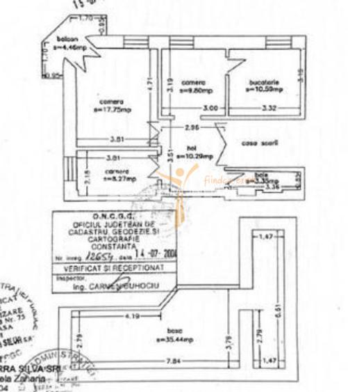
Vă prezentăm spre vânzare un apartament deosebit cu 3 camere, situat în Constanța la doar 2 minute de mare. Proprietatea beneficiază de o locație premium, fiind ideală atât pentru locuit, cât și pentru investiție în regim hotelier sau închiriere pe termen lung. Apartamentul are o suprafață utilă de aproximativ 60 mp și este amplasat într-un imobil cu regim redus de înălțime (P+2), care oferă un grad ridicat de intimitate. Clădirea cuprinde doar două apartamente, existând un singur vecin, ceea ce asigură liniște și confort. Locuința este bine compartimentată, având living, două dormitoare, bucătărie și baie, iar balconul oferă o vedere plăcută către mare. Un avantaj important îl reprezintă boxa proprie de la subsol, cu o suprafață generoasă de aproximativ 30 mp, ideală pentru depozitare sau utilizări multiple. Zona este una dintre cele mai căutate din Constanța, cu acces rapid către plajă, faleză, restaurante, cafenele și puncte de interes ale orașului, ceea ce crește considerabil valoarea investițională a proprietății. Actele sunt în regulă, iar apartamentul este disponibil imediat pentru vânzare. Se acceptă achiziția prin credit. Cei interesați beneficiază de consultanță financiară gratuită, incluzând identificarea celei mai avantajoase soluții de finanțare, simulări personalizate și realizarea unui plan eficient pentru închiderea anticipată a creditului. Această proprietate reprezintă o oportunitate, combinând poziționarea excelentă cu un grad ridicat de intimitate și un potențial investițional foarte bun.
Citește mai mult Citește mai puțin
Confort 1 Decomandat Mobilat 1 Balcon / Terasă / Logie Aer condiționat Centrală proprie Beci Bine întreținut (Bună) Zonă de litoral

Detalii apartament

ID anunț: XBCG103VO Copiat! 275414296 Copiat!
Actualizat în: 19 Mai 2026
Nr. bucătării: 1
Nr. băi: 1
Structură rezistență: Cărămidă
Tip imobil: Bloc de apartamente
Tip tranzacție: De vânzare prin agent
Regim înălțime: P+2E
Modalitate de plată: Cash sau Credit

Utilități

Pereți
Vopsea lavabilă
Podele
Parchet Gresie
Ușă intrare
Metal
Uși interior
Panel
Izolații termice
Exterior Interior
Ferestre cu geam termopan
PVC
Contorizare
Apometre Contor căldură Contor gaz
Bucătărie
Mobilată
Electrocasnice
Mașină de spălat Frigider Aragaz Mașină spălat vase TV Cuptor microunde Hotă
Facilități imobil
Videointerfon
Utilități
Curent Apă Canalizare Gaze
Internet
Fibră optică
Comision
0%

Certificat energetic:

Clasa energetică: A

Puncte de interes

Mijloace transport
bus-station
Poarta 2 Port [44
Stații autobuz aprox. 251 m
bus-station
Statia Poarta 2, Linia 5,42,48
Stații autobuz aprox. 277 m
bus-station
Cap linie Poarta 2 [42
Stații autobuz aprox. 278 m
bus-station
Statia Centru, Linia 40, 40C, 43
Stații autobuz aprox. 400 m
Școală
school
Școala generală nr. 2
Școli aprox. 88 m
school
Colegiul Național Mihail Eminescu
Școli aprox. 221 m
kindergarten
Gradinita nr.16
Gradinițe aprox. 249 m
university
Universitatea Populara (ru)
Universități aprox. 407 m
Recreere
park
Parc
Parcuri aprox. 128 m
sports-ground
Teren sportiv
Terenuri sport aprox. 219 m
supermarket
Magazinul Grand
Supermarket aprox. 300 m
public-square
Piața Ovidiu
Piețe publice aprox. 410 m

Istoricul prețurilor

Acces la informații premium după autentificare
Login Gratuit

Detalii despre preț și costuri

Prețul pe piață

Preț cerut: 225.000 €

Preț min. zonă
Preț max. zonă

100% dintre proprietățile similare ca zonă și nr. camere au prețul cerut mai mic. mai multe...

Bine de știut: prețul unei proprietăți este influențat și de alte caracteristici, cum ar fi: vechime, localizare, vecinătăți, suprafață, compartimentare, amenajări, dotări, etc. mai puțin...

Acces la informații premium după autentificare
Login Gratuit

Costuri cu achiziția

Fără credit
Credit ipotecar
Noua casă

i

Costuri adiționale mai puțin știute la achiziție: taxe notariale, comisioane etc.

Acces la informații premium după autentificare
Login Gratuit

Proprietăți similare

Apartament cu 3 camere decomandat în Ultracentral
205.000 €
Constanța, Ultracentral
3 camere
167 mp
Etaj 1
Apartament cu 3 camere semidecomandat, mobilat în Ultracentral
230.000 €
Constanța, Ultracentral
3 camere
84 mp
Etaj 1
Apartament cu 3 camere decomandat în Tomis Nord
227.000 €
Constanța, Tomis Nord
3 camere
89 mp
Etaj 6

Detalii de contact

DESTINE IMOBILIARE

Andreea Manache Agent Imobiliar

DESTINE IMOBILIARE

Abonează-te la newsletter să fii primul care primește cele mai noi recomandări de proprietăți și sfaturi de la experți.

CONTACT

Creează alertă

Salvează căutarea ca să primești pe email ultimele anunțuri publicate

Apartamente cu 3 camere de vânzare în zona Ultracentral, Constanța