3

CRAIOVA Apartament 4 camere 120.000 euro Proprietar Comision 0

120.000 €

Craiovița Nouă, Craiova

Nr. cam.:
4
Sup. utilă:
60 mp
Etaj:
2 / 4
An constr.:
1974
  • • Comision 0%
  • • Locație exactă

Descriere apartament

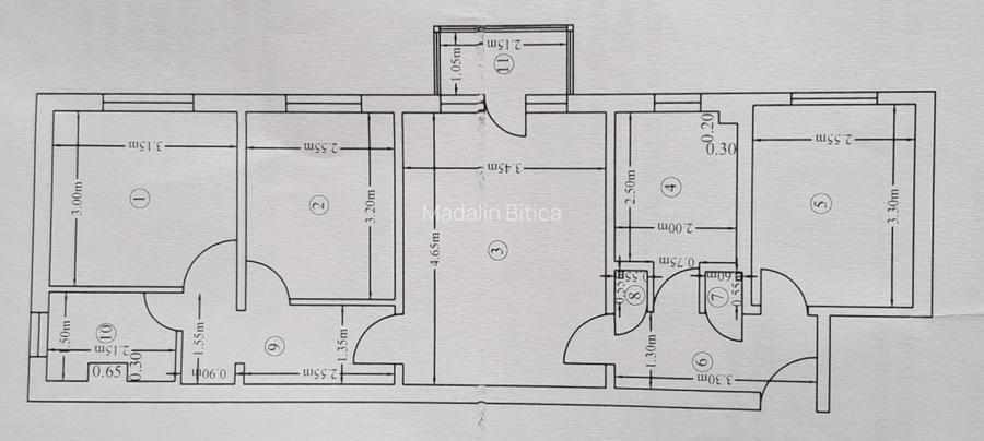
Apartament 4 camere, semidecomandat, cu balcon închis – Craiovița Nouă, etaj 2/4, confort 1. An constructie 1974 Vă propunem spre vânzare un apartament cu 4 camere, semidecomandat, situat la etajul 2 din 4 într-un bloc din Craiovița Nouă, zonă apreciată pentru acces rapid la facilități și liniște. Suprafață utilă: 60 mp; 63 contruita 🔧 Centrala termică proprie – confort și costuri reduse 🪟 Balcon închis cu tâmplărie PVC 🗄️ 2 debarale – perfect pentru depozitare 🚪 Ușă metalică 👨‍👩‍👧‍👦 Vecini liniștiți si de ajutor – atmosferă plăcută în bloc Apartamentul este nerenovat, oferind ocazia perfectă pentru a-l amenaja după gustul propriu. 📍 Locație excelentă – în apropiere de: • Școală și grădiniță • Supermarketuri • Locuri de joacă pentru copii • Stații de autobuz Ideal pentru o familie care își dorește o locuință bine compartimentată, cu potențial de personalizare, într-o zonă accesibilă și liniștită. 💼 Se acceptă credit ipotecar 📞 Pentru mai multe detalii sau programarea unei vizionări, nu ezitați să mă contactați! sau
Citește mai mult Citește mai puțin
Confort 1 Semidecomandat 1 Balcon / Terasă / Logie Centrală proprie Necesită renovare

Detalii apartament

ID anunț: XVBB00TNC Copiat! 265989236 Copiat!
Actualizat în: 23 Martie 2026
Nr. băi: 1
Tip imobil: Bloc de apartamente
Regim înălțime: P+4E

Utilități

Sistem încălzire
Centrală proprie pe Gaz cu Calorifere
Comision
0%

Puncte de interes

Mijloace transport
bus-station
Bloc 83
Stații autobuz aprox. 84 m
bus-station
Big Vechi
Stații autobuz aprox. 93 m
tram-station
ANL Craiova
Stații tramvai aprox. 1121 m
tram-station
ANL Craiova
Stații tramvai aprox. 1121 m
Școală
kindergarten
Gradinita Piticot
Gradinițe aprox. 398 m
kindergarten
Gradinita Floarea Soarelui
Gradinițe aprox. 412 m
school
Scoala Gimnaziala Elena Farago
Școli aprox. 478 m
school
Scoala Gimnaziala Alexandru Macedonski
Școli aprox. 535 m
Recreere
park
Parc
Parcuri aprox. 406 m
sports-ground
Teren sportiv
Terenuri sport aprox. 545 m
restaurant
Saormaria King House
Restaurant aprox. 571 m
supermarket
Kaufland
Supermarket aprox. 701 m

Detalii despre preț și costuri

Prețul pe piață

Preț cerut: 120.000 €

Preț min. zonă
Preț max. zonă

56% dintre proprietățile similare ca zonă și nr. camere au prețul cerut mai mic. mai multe...

Bine de știut: prețul unei proprietăți este influențat și de alte caracteristici, cum ar fi: vechime, localizare, vecinătăți, suprafață, compartimentare, amenajări, dotări, etc. mai puțin...

Insight premium disponibil după login

Costuri cu achiziția

Fără credit
Credit ipotecar
Noua casă

i

Costuri adiționale mai puțin știute la achiziție: taxe notariale, comisioane etc.

Insight premium disponibil după login

Proprietăți recomandate

Detalii de contact

Madalin Bitica

Madalin Bitica

Proprietar

Abonează-te la newsletter să fii primul care primește cele mai noi recomandări de proprietăți și sfaturi de la experți.

CONTACT

Creează alertă

Salvează căutarea ca să primești pe email ultimele anunțuri publicate

Apartamente cu 4+ camere de vânzare în zona Craiovița Nouă, Craiova