Apartament 2 camere-54 mp- intabulat- la cheie- DaVinci Homes

112.000 €

Cristian, Județul Sibiu

Nr. cam.:
2
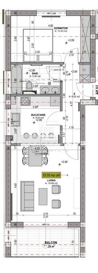
Sup. utilă:
53,55 mp
Etaj:
1 / 2
An constr.:
2025 (Finalizată)
  • • Comision 0%
  • • Locație aproximativă

Descriere apartament

Apartament 2 Camere | 54 mp | Terasă 7.29 mp | Aer condiționat | DaVinci Homes – Sibiu Îți dorești mai mult decât un simplu apartament? Descoperă o locuință modernă, luminoasă și eficient compartimentată, situată în cel mai verde ansamblu rezidențial din zona de Vest a Sibiului. Un spațiu gândit pentru confort, liniște și un stil de viață echilibrat. De ce să alegi această proprietate? ✅ Finisaje Premium: Te bucuri de încălzire în pardoseală, aer condiționat și jaluzele electrice pentru un control total al confortului tău. ✅ Terasa ta cu vedere: Un balcon de 7.29 mp, finisat cu granit, orientat spre Sud – locul perfect pentru cafeaua de dimineață cu vedere la munți. ✅ Natură la ușa ta: Trăiești într-un cartier aerisit, unde 45% din spațiu este verde, cu parcuri și locuri de joacă deja amenajate. ✅ Fără griji: Locul de parcare este inclus, iar accesul în cartier se face rapid prin cele 4 căi de intrare/ieșire. Detalii cheie: 54 mp utili, compartimentare decomandată. Etaj 1, baie cu geam. -Compartimentare decomandata: hol acces, living, bucatarie inchisa, 1 dormitor, 1 baie cu geam de aerisire, balcon 7 mp. Construcție sustenabilă (vată bazaltică, fațadă din piatră și larice). 📍 Locație strategică: Ești la doar 4 minute de zona de business a orașului și la 15 minute de farmecul centrului istoric al Sibiului. Opțiuni de plată flexibile: Credit bancar sau surse proprii – prețul rămâne același indiferent de varianta aleasă. Programează o vizionare astăzi și fă parte dintr-o comunitate tânără și activă!
Citește mai mult Citește mai puțin
Confort 1 Decomandat 1 Balcon / Terasă / Logie Aer condiționat Centrală proprie Încălzire prin pardoseală 1 Parcare

Detalii apartament

ID anunț: XEP4100CK Copiat! 275018984 Copiat!
Actualizat în: 08 Aprilie 2026
Suprafață construită: 63 mp
Nr. bucătării: 1
Nr. băi: 1
Structură rezistență: Cărămidă
Tip imobil: Bloc de apartamente
Tip tranzacție: De vânzare prin agent
Regim înălțime: P+2E
Modalitate de plată: Cash sau Credit

Utilități

Rulouri/Obloane
Aluminiu
Izolații termice
Exterior
Utilități
Curent Apă Canalizare CATV Gaze Telefon
Internet
Cablu
Amenajare străzi
Iluminat stradal Mijloace de transport în comun Asfaltate
Comision
0%

Disponibilitate proprietate:

Imediat

Puncte de interes

Mijloace transport
bus-station
Cristian Sibiu
Stații autobuz aprox. 711 m

Detalii despre preț și costuri

Costuri cu achiziția

Fără credit
Credit ipotecar
Noua casă

i

Costuri adiționale mai puțin știute la achiziție: taxe notariale, comisioane etc.

Acces la informații premium după autentificare
Login Gratuit

Proprietăți similare

Apartament cu 2 camere decomandat în Cristian
112.000 €
Județul Sibiu, Cristian
2 camere
53,55 mp
Etaj 1 / 4
Apartament cu 3 camere decomandat în Cristian
121.000 €
Județul Sibiu, Cristian
3 camere
61,4 mp
Etaj 1 / 2
Apartament cu 2 camere decomandat în Cristian
112.000 €
Județul Sibiu, Cristian
2 camere
51 mp
Etaj 1 / 3

Detalii de contact

Era Property

Anamaria Vulcu Broker imobiliar

Era Property
PRO

Abonează-te la newsletter să fii primul care primește cele mai noi recomandări de proprietăți și sfaturi de la experți.

CONTACT

Creează alertă

Salvează căutarea ca să primești pe email ultimele anunțuri publicate

Apartamente noi cu 2 camere de vânzare în Cristian, Județul Sibiu