Apartament 3 camere 77,39 mp in Zona Industriala Vest, Cristian, Sibiu
-Comision 0%-
Descoperă un apartament spațios cu 3 camere, situat într-un proiect modern format din peste 50 de vile, amplasat într-o zonă deosebită, la doar 4 minute de Zona Industrială Vest și Aeroportul Internațional Sibiu.
Complexul DaVinci Homes oferă accesibilitate excelentă și trafic lejer, având 4 intrări-ieșiri și acces facil către Sibiu prin trei rute diferite: Centura Sud, Centura Nord, DN Sibiu – Cristian.
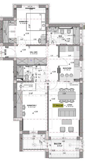
-Suprafață utilă: 77,39 mp
-Logie: 9,11 mp
-Compartimentare: hol de acces, living, bucătărie închisă, 2 dormitoare, 2 băi, balcon generos.
-Predare la CHEIE:
Apartamentul se predă complet finisat: pereți finisați cu lavabilă albă, centrală termică proprie,încălzire în pardoseală, instalații termice și sanitare pe poziție,gresie, faianță, parchet și uși de interior montate,obiecte sanitare în băi, aparat aer condiționat montat.
-Exterior și facilități
Predare la cheie și la exterior
Jaluzele electrice la ferestre
Izolație cu vată bazaltică și finisaje din piatră naturală
Balcoane finisate cu granit și sticlă securizată
Locuri de joacă pentru copii, terenuri de sport, trotuare pavate, străzi asfaltate, spații verzi
-1 loc de parcare inclus în preț
-Se acceptă plata cash sau prin credit ipotecar.
Zonă liniștită, aer curat și priveliște superbă către munți
***Imaginile sunt cu titlu de prezentare și aparțin unui apartament similar.
Predare la cheie : 161 000 euro tva inclus
Predare mobilat/utilat: 179 500 euro
𝐃𝐚𝐕𝐢𝐧𝐜𝐢 𝐇𝐨𝐦𝐞𝐬 – 𝐂𝐚𝐫𝐭𝐢𝐞𝐫 𝐫𝐞𝐳𝐢𝐝𝐞𝐧𝐭𝐢𝐚𝐥 𝐩𝐫𝐞𝐦𝐢𝐮𝐦 𝐢𝐧 𝐳𝐨𝐧𝐚 𝐝𝐞 𝐕𝐞𝐬𝐭, 𝐒𝐢𝐛𝐢𝐮
Ansamblu modern situat în Cristian, la doar 4 minute de Zona Industrială Vest și 15 minute de centrul orașului.
Apartamente de lux cu încălzire în pardoseală, jaluzele electrice, aer condiționat, finisaje la cheie, balcoane cu granit și sticlă securizată.
✔️ 45% spații verzi
✔️ Vile cu regim redus (6–12 apartamente)
✔️ Arhitectură unitară și vedere panoramică spre munți
✔️ Drumuri pavate, 4 căi de acces, 4 locuri de joacă
✔️ Predare la cheie sau mobilat și utilat
📍 Cristian – zonă aerisită, acces rapid, intimitate și confort ridicat.
Sediul central - Timișoara
Bulevardul Victor Babeș nr. 2, 300230, Timișoara, România
Tel: +40.374.40.44.98 / Fax: +40.256.401.179
Email: suport@imobiliare.ro
Luni - Vineri 08:00 - 20:00
Punct de lucru - București: Iride Business Park, Bld. Dimitrie
Pompeiu 9-9A, Clădirea B2B,
020335, Sector 2, București, România
CONTACT
Sediul central - Timișoara
Bulevardul Victor Babeș nr. 2, 300230, Timișoara, România
Tel: +40.374.40.44.98 / Fax: +40.256.401.179
Email: suport@imobiliare.ro
Luni - Vineri 08:00 - 20:00
Punct de lucru - București: Iride Business Park, Bld. Dimitrie
Pompeiu 9-9A, Clădirea B2B,
020335, Sector 2, București, România
Sună acum și cere detalii sau programează o vizionare.
Nu rata ocazia să afli mai multe!
Sună acum și cere detalii sau programează o vizionare.
Cere detalii prin email
*
*
*
*
Stații autobuz
Cristian Sibiu
aprox.
600 m
Înainte să pleci...
Ești sigur că ai văzut și aceste proprietăți?
126.881 €
Județul Sibiu, Cristian
3 camere
66,4 mp
Parter
125.000 €
Județul Sibiu, Cristian
2 camere
51,44 mp
Parter / 3
71.900 €
Județul Sibiu, Avrig
3 camere
64,19 mp
Etaj 4
110.000 € + TVA
Județul Sibiu, Șelimbăr
3 camere
68,7 mp
Parter
114.500 €
Sibiu, Exterior Vest
2 camere
52,24 mp
Etaj 1
108.900 €
Județul Sibiu, Cristian
3 camere
59,27 mp
Parter / 2
Creează alertă
Salvează căutarea ca să primești pe email ultimele anunțuri publicate
Apartamente noi cu 3 camere de vânzare în Cristian, Județul Sibiu
Cere detalii prin email
*
*
*
*
Detaliile tale de contact vor fi partajate cu Era Property
Preț total828.610 RON (162.654 €)
Costuri cu achiziția8.428 RON
Preț de achiziție820.182 RON
Costuri cu achiziția8.428 RON
Comision agenție Întreabă agenţia
Onorariu notarial7.198 RON
Taxă înscriere OCPI1.230 RON
Preț de achiziție820.182 RON
Preț locuință820.182 RON
TVA 0%Inclus în prețul cerut
Cost total135.528 RON (26.603 €)
Avans (15%)123.027 RON
Cost achitat în prima lună2.277 RON
Costuri cu achiziția10.224 RON
Cost achitat în prima lună2.277 RON
Comision analiză dosar
400 RON - 900 RON
Taxă evaluare imobil(până la)
575 RON
Rata lunară (variabilă)3.654 RON
Asigurare anuală imobil820 RON
Arhivă electronică102 RON
Poliță PAD130 RON
Asigurare de viață/lună Costul este variabil. În funcție de banca aleasă, procentul variază între 0.0259% și 0.035% din soldul creditului.
Costuri cu achiziția10.224 RON
Comision agenție Întreabă agenţia
Onorariu notarial7.198 RON
Taxă întabulare OCPI1.230 RON
Autentificare contract credit1.796 RON
Preț de achiziție820.182 RON
Preț locuință820.182 RON
TVA 0%Inclus în prețul cerut
Preț de achiziție820.182 RON
Preț locuință820.182 RON
TVA 0%
Inclus în prețul cerut
Avans minim213.961 RON
Credit pe 30 de ani606.222 RON
Cost achitat în prima lună
Taxa evaluare imobil(până la)
575 RON
Rata lunară (variabilă)4.260 RON
Depozit colateral12.780 RON
Comision de garantare FNGCIMM68 RON
Asigurare anuală imobil820 RON
Poliță PAD130 RON
Tarif arhivă electronică102 RON
Costuri adiționale960 RON + taxe notariale
Asigurare viață și complexă (opțională)Costul este variabil. În funcție de banca aleasă, procentul variază între 0.0259% și 0.035% din soldul creditului
Onorariu notarialconform tarif notarial
Taxă întabulare OCPI960 RON
i
Toate valorile de mai sus sunt estimative și nu reprezintă în mod obligatoriu costurile exacte pe care le veți primi de la companiile/instituțiile prin care veți încheia tranzacția.