Apartament 3 camere, două băi, curte 50 mp -Natura la tine acasă! Cristian-SiBiU

120.890 €

Cristian, Județul Sibiu

Nr. cam.:
3
Sup. utilă:
61,4 mp
Sup. teren:
50 mp
Etaj:
Parter / 3
  • • Comision 0%
  • • Locație aproximativă

Descriere apartament

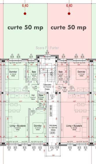
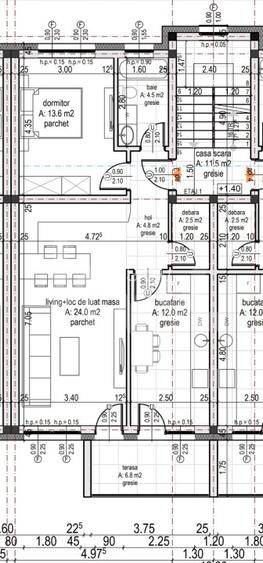
Apartament 3 camere + curte 50 mp, de vânzare în Cartierul DaVinci – Cristian, Sibiu Locație Premium, Priveliște Panoramică, Natură la Tine Acasă Vă prezentăm un apartament bine împărțit cu curte de , aflat intr-un imobil deosebit, situat într-o zonă înaltă, retrasă și liniștită a cartierului DaVinci din Cristian – Sibiu. Compartimentare: Living + bucătărie = 24 mp Dormitor = 12 mp Dormitor = 13,6 mp Baie = 4,5 mp WC sericiu = 2,5 mp hol = 4,8 mp Curte = 110 mp Complexul în care se află apartamentul este format din blocuri tip vilă înșiruite, fiecare cu 7 case de scară și câte 7 apartamente – doar două pe etaj și unul la mansardă, asigurând intimitate și confort. Poziționare excelentă – panoramă unică asupra Mărginimii Sibiului, Munților Făgăraș și localității Cristian. Mediu natural bogat – vegetație abundentă și aer curat. Alte tipuri de apartamente disponibile: 2 camere (SU 49,7 mp) + curte 50 mp 3 camere (SU 61,4 mp) spațiu generos, 2 băi + terasă de 7 mp Toate apartamentele sunt decomandate, cu living open-space și bucătărie fiind ideale pentru cupluri sau investiții; Loc de parcare inclus (amenajat cu pavaj); Ofertă!!!! In luna aprilie 2026 pentru orice apartament se oferă două locuri de parcare incluse in pret. Pentru acest apartament de 3 camere si curte - Sistem de plată; avans 15% =99 900 euro La acest preț se adugă TVA-ul Spații exterioare: Parter – curți private de 50 mp; Etaj – terase generoase de 7 mp. Stadiu de predare – La alb: Bugetul pentru ducere de la alb la cheie este de 10 000 euro + TVA Stadiu finisaj la cheie: Pereți și tavane finisate cu vopsea lavabilă albă; Gresie și faianță – buget 60 lei/mp; Tâmplărie PVC Salamander – 7 camere, 3 foi de sticlă; Ușă metalică de intrare și uși interioare – buget 1.250 lei/ușă; Încălzire în pardoseală cu pompa de căldură aer-apă; Obiecte sanitare incluse – buget 2.500 lei/baie; Instalație electrică completă – buget 15 lei/priză; Termoizolație exterioară cu polistiren de 20 cm și tencuială decorativă; Izolație pod cu vată minerală 20 cm + gips-carton; Termen de predare august 2026! Contactează-ne pentru mai multe detalii sau o vizionare! Hai să locuiești într-un cadru natural, liniștit, dar aproape de Sibiu.
Citește mai mult Citește mai puțin
Confort 1 Decomandat Curte Alte metode electrice 1 Parcare Bine întreținut (Bună)

Detalii apartament

ID anunț: XE70100TS Copiat! 275424639 Copiat!
Actualizat în: 18 Aprilie 2026
Suprafață construită: 73 mp
Nr. bucătării: 1
Nr. băi: 2
An construcție: 2026 (În construcție)
Structură rezistență: Cărămidă
Tip imobil: Bloc de apartamente
Regim înălțime: P+3E

Utilități

Ușă intrare
Metal
Izolații termice
Exterior
Ferestre cu geam termopan
PVC
Contorizare
Apometre
Facilități imobil
Interfon
Utilități
Curent Apă Canalizare
Amenajare străzi
Asfaltate
Comision
0%

Certificat energetic:

Clasa energetică: A

Puncte de interes

Mijloace transport
bus-station
Cristian Sibiu
Stații autobuz aprox. 1242 m

Detalii despre preț și costuri

Costuri cu achiziția

Fără credit
Credit ipotecar
Noua casă

i

Costuri adiționale mai puțin știute la achiziție: taxe notariale, comisioane etc.

Insight premium disponibil după login

Proprietăți similare

Apartament cu 3 camere semidecomandat în Cristian
126.881 €
Județul Sibiu, Cristian
3 camere
66,4 mp
Parter
Apartament cu 3 camere decomandat în Cristian
121.000 €
Județul Sibiu, Cristian
3 camere
61,4 mp
Etaj 1
Apartament cu 2 camere decomandat în Cristian
112.000 €
Județul Sibiu, Cristian
2 camere
54 mp
Etaj 1

Detalii de contact

KW Sibiu

Caius Giurgiu Consultant ImobiliarREALTOR

KW Sibiu
PRO

Abonează-te la newsletter să fii primul care primește cele mai noi recomandări de proprietăți și sfaturi de la experți.

CONTACT

Creează alertă

Salvează căutarea ca să primești pe email ultimele anunțuri publicate

Apartamente cu 3 camere de vânzare în Cristian, Județul Sibiu