1

Vanzare apartament 4 camere Dobroesti

169.000 €

Dobroești, Județul Ilfov

Nr. cam.:
4
Sup. utilă:
97 mp
Etaj:
4
An constr.:
2023
  • • Exclusivitate
  • • Locație exactă

Descriere apartament

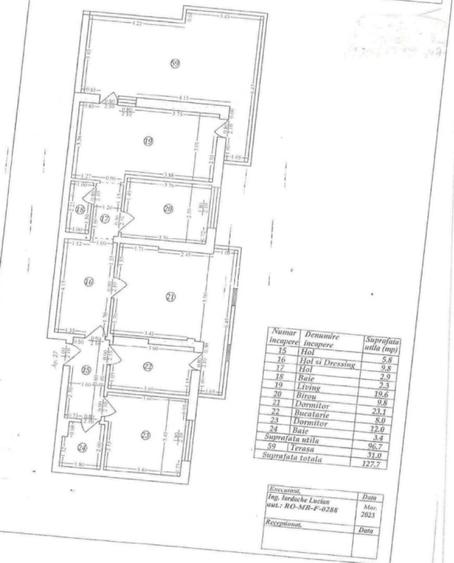
Vă propun spre vânzare un apartament cu 4 camere, situat în Dobroești, într-un imobil modern construit în 2023 (D+P+4), la etajul 4 din 4 cu lift. Proprietatea are o suprafață utilă de 96,7 mp și o suprafață totală de 127,7 mp, oferind un spațiu generos și bine compartimentat. Dispune de 3 dormitoare luminoase, un living primitor, 2 băi, bucătărie separată și o terasa generoasa cu vedere panoramica. Compartimentarea decomandată asigură confort și intimitate, fiind ideală pentru o familie numeroasa. Apartamentul se vinde nemobilat, oferind libertatea de a fi amenajat exact după propriul stil. Beneficiază de centrală termică proprie, instalații sanitare noi, ușă metalică și loc de parcare. Imobilul este racordat la toate utilitățile și se află într-o zonă in plina dezvoltare, cu acces rapid către București.
Citește mai mult Citește mai puțin
Centrală proprie Bine întreținut (Bună)

Detalii apartament

ID anunț: XB3E100B6 Copiat! 275199939 Copiat!
Actualizat în: 05 Martie 2026
Suprafață construită: 128 mp
Nr. băi: 3
Tip imobil: Bloc de apartamente
Regim înălțime: D+P+4E

Utilități

Podele
Gresie
Rulouri/Obloane
PVC
Ușă intrare
Metal
Contorizare
Apometre
Alte spații utile
WC Serviciu
Facilități imobil
Interfon
Utilități
Curent Apă Canalizare
Amenajare străzi
Iluminat stradal Asfaltate

Vicii:

fara geam la baie

Vecinătăți:

parc, magazine, mall, scoala, gradinita, transport in comun

Disponibilitate proprietate:

imediat

Puncte de interes

Mijloace transport
bus-station
Complex Comercial Niro statie 254
Stații autobuz aprox. 1040 m
train-station
p.o. Pantelimon Sud
Stații tren aprox. 1193 m
bus-station
Pantelimon Sud
Stații autobuz aprox. 1207 m
tram-station
Capat Pasaj Colentina linia:21
Stații tramvai aprox. 1221 m
Școală
school
Scoala Nr. 41
Școli aprox. 1074 m
school
Colegiul national Victor Babes
Școli aprox. 1155 m
school
Scoala
Școli aprox. 1167 m
school
"Victor Babes" Highschool (en)
Școli aprox. 1186 m
Recreere
park
Parc
Parcuri aprox. 279 m
supermarket
Alege
Supermarket aprox. 303 m
hypermarket
Carrefour
Hipermarket aprox. 1062 m
mall
Dragonul Rosu 2
Mall aprox. 1266 m

Detalii despre preț și costuri

Prețul pe piață

Preț cerut: 169.000 €

Preț min. zonă 113.500 €
Preț max. zonă 185.619 €

93% dintre proprietățile similare ca zonă și nr. camere au prețul cerut mai mic. mai multe...

Bine de știut: prețul unei proprietăți este influențat și de alte caracteristici, cum ar fi: vechime, localizare, vecinătăți, suprafață, compartimentare, amenajări, dotări, etc. mai puțin...

Costuri cu achiziția

Fără credit
8.702 RON
Credit ipotecar
10.532 RON
Noua casă
1.001 RON+ taxe notariale

i

Costuri adiționale mai puțin știute la achiziție: taxe notariale, comisioane etc.

Proprietăți similare

Apartament cu 3 camere decomandat în Dobroești
155.727 €
Județul Ilfov, Dobroești
3 camere
117,84 mp
Etaj 4 / 4
Apartament cu 3 camere decomandat în Dobroești
155.727 €
Județul Ilfov, Dobroești
3 camere
117,84 mp
Etaj 3 / 4
Apartament cu 4 camere decomandat în Dobroești
161.000 € + TVA
Județul Ilfov, Dobroești
4 camere
128,2 mp
Etaj 4

Detalii de contact

NORD CITY CONSULTING

Mihaela Muha Broker imobiliar

5.00(3 review-uri)

NORD CITY CONSULTING
PRO

Abonează-te la newsletter să fii primul care primește cele mai noi recomandări de proprietăți și sfaturi de la experți.

CONTACT

Creează alertă

Salvează căutarea ca să primești pe email ultimele anunțuri publicate

Apartamente noi cu 4+ camere de vânzare în Dobroești, Județul Ilfov