2

DUMBRAVITA - IKEA - 3 CAM - CURTE - NOU - 2XPARCARE - 80MP UTILI - INCALZIRE PAR

150.000 € + TVA

Dumbrăvița, Județul Timiș

Nr. cam.:
3
Sup. utilă:
80 mp
Etaj:
Parter / 2
An constr.:
2025 (Finalizată)
  • • Locație aproximativă
  • • Vizionare prin apel video

Descriere apartament

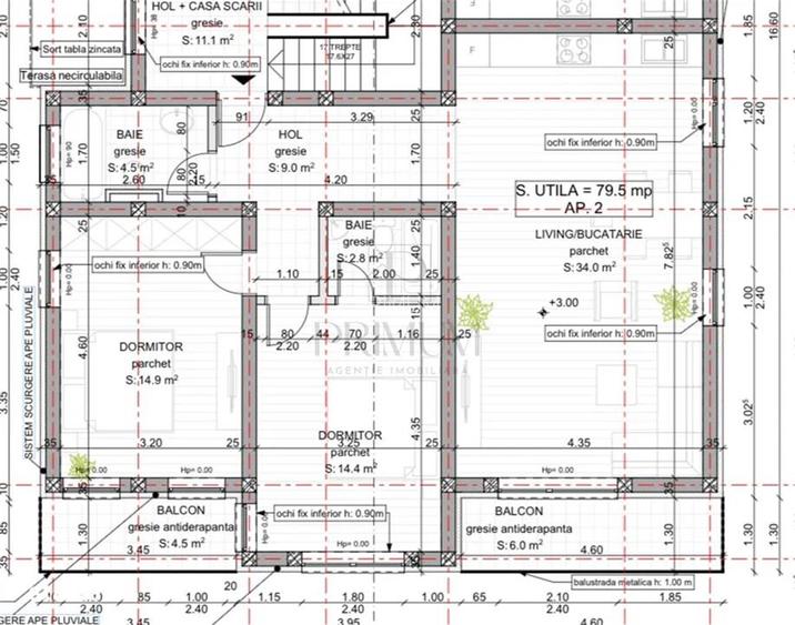
Agentia Imobiliara PRIMUM - Timisoara are placerea de a va prezenta spre vanzare apartament cu 3 camere, OPENSPACE, FINALIZAT, situat în DUMBRAVITA, Zona IKEA, zona linistita, usor accesibila, aproape de principalele puncte de interes: multiple mijloace de transport în comun; acces rapid către supermarketuri, magazine, farmacii; în proximitatea școlilor, grădinițelor și parcurilor. Acesta se afla la PARTER , intr-un imobil cu 2 nivele si cu 5 apartamente. Apartamentul este decomandat cu suprafață utilă 80 mp, si prezinta urmatoarea compartimentare: • Open space de 34 mp: bucătărie, loc de luat masa, living • Baie: 4,5 mp • Dormitor matrimonial: 14,5 mp cu baie proprie de 3 mp • Dormitor secundar: 15 mp • Hol intrare: 9 mp, cu spațiu pentru depozitare • 2 terase balcon: balcon sufragerie 6 mp, balcon dormitoare 5 mp • Dormitoarele au formă pătrată, 4x4 metri, foarte spațioase. Fiecare include 2 locuri de parcare. PRET: PARTER - 190 000 EURO CU TVA INCLUS - Apartamentele de la parter beneficiază de grădină proprie de aproximativ 100 mp, împrejmuită cu gazon. ETAJUL 1 - 165.000 EURO CU TVA INCLUS Apartament nefinit – alegi tu finisajele! Apartamentul se livreaza nefinit, iar finisajele sunt incluse in pret. Alegeti culori, modele si stilul dorit pentru un spatiu personalizat si modern. Utilități: • Branșate la apă, curent, gaz și canalizare Confortul termic se realizeaza prin centrală proprie cu incălzire în pardoseală cu termostate separate pe fiecare zonă si A C. Apartamentul oferă un ambient modern ideal pentru familie sau investitie (inchiriere). Se accepta credit bancar! Ne angajam sa va oferim consultanta imobiliara si financiara pe toata durata procesului de tranzactie. Termen finalizare sfarsit anului 2025. Detaliile cu caracter tehnic ne sunt furnizate de catre proprietar. Pentru informatii suplimentare si o vizionare, nu ezitati sa ma contactati.
Citește mai mult Citește mai puțin
Confort 1 Decomandat 2 Balcoane / Terase / Logii Încălzire prin pardoseală 2 Parcări

Detalii apartament

ID anunț: XCPS10AK9 Copiat! 273794313 Copiat!
Actualizat în: 08 Mai 2026
Suprafață utilă totală: 80 mp
Suprafață construită: 89 mp
Nr. băi: 1
Structură rezistență: Altele
Tip imobil: Bloc de apartamente
Regim înălțime: P+2E

Utilități

Destinație
Rezidențial
Podele
Parchet Gresie
Ușă intrare
Metal
Izolații termice
Exterior
Ferestre cu geam termopan
PVC
Bucătărie
Utilată Mobilată
Amenajare străzi
Asfaltate

Puncte de interes

Mijloace transport
bus-station
Statie Giratie Selgros E1
Stații autobuz aprox. 1952 m
Recreere
park
Sunflower Field
Parcuri aprox. 172 m
park
Parcul Dvorjak
Parcuri aprox. 609 m
hypermarket
Decathlon
Hipermarket aprox. 1803 m
supermarket
Selgros
Supermarket aprox. 1863 m

Detalii despre preț și costuri

Prețul pe piață

Preț cerut: 150.000 €

Preț min. zonă
Preț max. zonă

62% dintre proprietățile similare ca zonă și nr. camere au prețul cerut mai mare. mai multe...

Bine de știut: prețul unei proprietăți este influențat și de alte caracteristici, cum ar fi: vechime, localizare, vecinătăți, suprafață, compartimentare, amenajări, dotări, etc. mai puțin...

Insight premium disponibil după login

Costuri cu achiziția

Fără credit
Credit ipotecar
Noua casă

i

Costuri adiționale mai puțin știute la achiziție: taxe notariale, comisioane etc.

Insight premium disponibil după login

Proprietăți similare

Apartament cu 2 camere, mobilat în Dumbrăvița
135.000 €
Județul Timiș, Dumbrăvița
2 camere
58 mp
Etaj 2 / 2
Apartament cu 2 camere, mobilat în Dumbrăvița
135.000 €
Județul Timiș, Dumbrăvița
2 camere
54 mp
Etaj 2
Apartament cu 3 camere decomandat, mobilat în Dumbrăvița
160.000 €
Județul Timiș, Dumbrăvița
3 camere
70 mp
Etaj 1 / 3

Detalii de contact

PRIMUM

Madalin Cucu Consultant Imobiliar

PRIMUM
PRO

Abonează-te la newsletter să fii primul care primește cele mai noi recomandări de proprietăți și sfaturi de la experți.

Feedback apel

CONTACT

Creează alertă

Salvează căutarea ca să primești pe email ultimele anunțuri publicate

Apartamente noi cu 3 camere de vânzare în Dumbrăvița, Județul Timiș