Apartament, 2 camere, 49 mp utili, mobilat/utilat - Dumbravita

113.490 €

Dumbrăvița, Județul Timiș

Nr. cam.:
2
Sup. utilă:
49 mp
Etaj:
1 / 2
An constr.:
2020 (Finalizată)
  • • Locație aproximativă

Descriere apartament

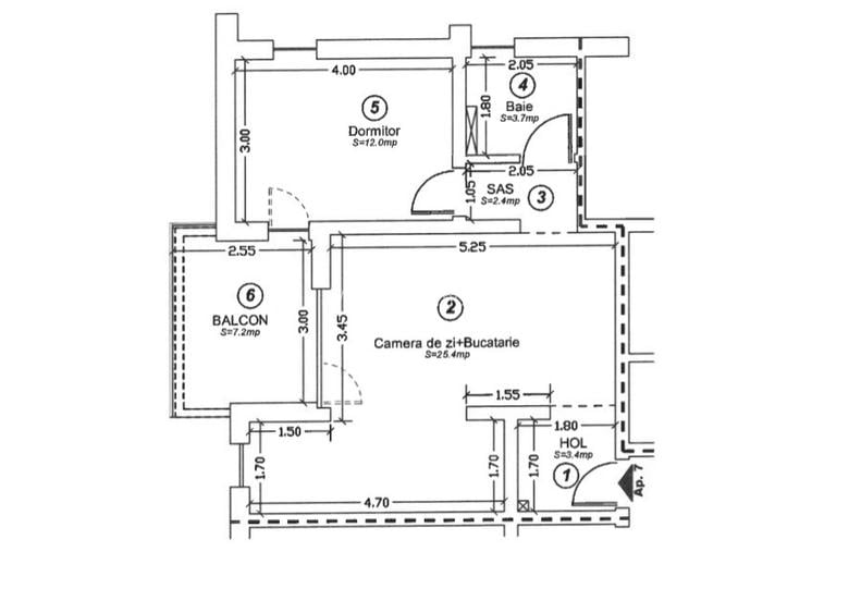
ID:P2287 WestHub Imobiliare va propune spre vanzare un apartament cu 2 camere, 49 mp utili, situat la etajul 1/2 si are un balcon de 7 mp. Blocul a fost construit in anul 2020. Confortul termic este asigurat de centrala proprie,, incalzire prin pardoseala. Blocul este situat intr-o zona linistita, inconjurat de verdeata si cu acces rapid catre orice punct de interes. Puncte forte : • Pozitionat excelent, atat pentru locuit cat si pentru investitie. • Aproape de mijloacele de transport in comun. • Zona linistita. Detalii tehnice: • Suprafata utila: 49 mp • Etaj: 1/2 • Confort: 1 • Numar holuri: 2 • Numar camere: 2 • Numar bai: 1 • Compartimentare: semidecomandat • Sistem incalzire: centrala proprie, incalzire prin pardoseala • Stare interior: buna • Usa intrare: metal • Ferestre: PVC • Usi interior: MDF PRET: 113.490 Euro negociabil. Pentru mai multe detalii si programarea unei vizionari ne puteti contacta la numarul de telefon WestHub Imobiliare Va asteptam cu drag la o vizionare!
Citește mai mult Citește mai puțin
Confort 1 Semidecomandat Mobilat Mobilat 1 Balcon / Terasă / Logie Centrală proprie Încălzire prin pardoseală Bine întreținut (Bună)

Detalii apartament

ID anunț: XF58101BE Copiat! 275025859 Copiat!
Actualizat în: 19 Februarie 2026
Suprafață construită: 58 mp
Nr. bucătării: 1
Nr. băi: 1
Structură rezistență: Cărămidă
Tip imobil: Bloc de apartamente
Regim înălțime: P+2E

Utilități

Destinație
Rezidențial
Pereți
Vopsea lavabilă Faianță
Podele
Parchet Gresie
Ușă intrare
Metal
Uși interior
Celulare Panel
Izolații termice
Exterior
Ferestre cu geam termopan
PVC
Contorizare
Apometre Contor gaz
Bucătărie
Mobilată Utilată
Electrocasnice
Mașină de spălat Frigider Aragaz TV Cuptor microunde Hotă
Facilități imobil
Interfon
Utilități
Curent Apă Canalizare Gaze CATV Telefon
Amenajare străzi
Asfaltate Iluminat stradal Mijloace de transport în comun
Comision
standard

Disponibilitate proprietate:

imediat

Puncte de interes

Școală
school
Scoala Gimnaziala Dumbravita
Școli aprox. 433 m
kindergarten
Gradinita Scooby
Gradinițe aprox. 1561 m
Recreere
park
Parcul Dumbravita
Parcuri aprox. 283 m
park
Dumbrăvița Park (en)
Parcuri aprox. 283 m
sports-ground
Teren sportiv
Terenuri sport aprox. 453 m
supermarket
Lidl
Supermarket aprox. 1438 m

Detalii despre preț și costuri

Prețul pe piață

Preț cerut: 0 €

Preț min. zonă 84.000 €
Preț max. zonă 163.000 €

Costuri cu achiziția

Fără credit
150 RON
Credit ipotecar
250 RON
Noua casă
140 RON+ taxe notariale

i

Costuri adiționale mai puțin știute la achiziție: taxe notariale, comisioane etc.

Proprietăți similare

Apartament cu 2 camere semidecomandat în Dumbrăvița
113.500 €
Județul Timiș, Dumbrăvița
2 camere
47 mp
Etaj 1
Apartament cu 2 camere decomandat, mobilat în Dumbrăvița
104.990 €
Județul Timiș, Dumbrăvița
2 camere
50 mp
Etaj 1
Apartament cu 2 camere, mobilat în Dumbrăvița
114.900 €
Județul Timiș, Dumbrăvița
2 camere
49,5 mp
Etaj 2

Detalii de contact

WestHub Imobiliare

Nicoleta Maria Agent

WestHub Imobiliare
PRO

Abonează-te la newsletter să fii primul care primește cele mai noi recomandări de proprietăți și sfaturi de la experți.

CONTACT

Creează alertă

Salvează căutarea ca să primești pe email ultimele anunțuri publicate

Apartamente cu 2 camere de vânzare în Dumbrăvița, Județul Timiș