Apartament cu curte de 60mp - Dumbravita/Selgros

124.900 €

Dumbrăvița, Județul Timiș

Nr. cam.:
2
Sup. utilă:
51 mp
Etaj:
Parter / 1
An constr.:
2015 (Finalizată)
  • • Locație aproximativă

Descriere apartament

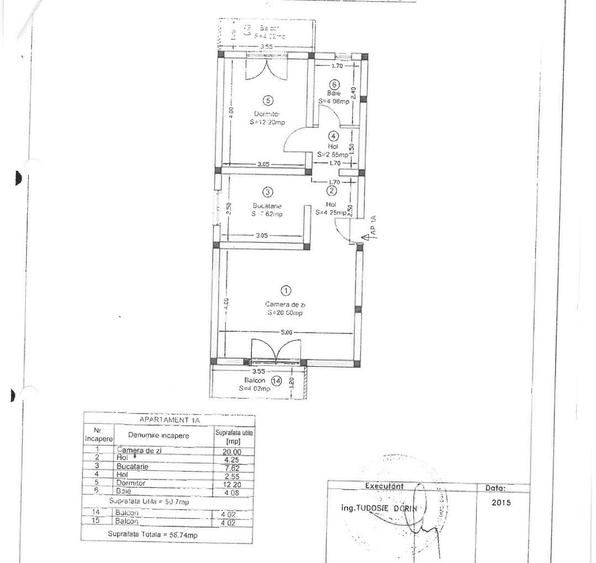
Apartament cu 2 camere, decomandat, curte de 60mp, boxa si 2 locuri de parcare, situat la intrarea in Dumbravita, in apropierea magazinelor Mega Image/Decathlon/Profi si statiei de expres. Apartamentul este mobilat si utilat, curtea este amenajata cu gazon, zona de foisor cu mobilier de exterior, un foraj si chiuveta exterioara. Imobilul in care se afla apartamentul are regim de inaltime P+1E si pod, in care apartamentul are amenajata o boxa.
Citește mai mult Citește mai puțin
Confort 1 Decomandat Mobilat 1 Balcon / Terasă / Logie Grădină Curte Aer condiționat Calorifere Centrală proprie 2 Parcări

Detalii apartament

ID anunț: X47N102E8 Copiat! 275425323 Copiat!
Actualizat în: 09 Aprilie 2026
Suprafață construită: 62 mp
Nr. bucătării: 1
Nr. băi: 1
Structură rezistență: Cărămidă
Tip imobil: Bloc de apartamente
Regim înălțime: P+1E

Utilități

Destinație
Rezidențial
Pereți
Faianță Vopsea lavabilă
Podele
Gresie Parchet
Ușă intrare
Metal
Uși interior
Celulare
Izolații termice
Exterior
Ferestre cu geam termopan
PVC
Contorizare
Apometre Contor gaz
Bucătărie
Mobilată Utilată
Electrocasnice
Aragaz Frigider Hotă Mașină de spălat Mașină spălat vase
Utilități
Curent Apă Canalizare CATV Gaze Telefon
Internet
Cablu
Amenajare străzi
Iluminat stradal Mijloace de transport în comun Asfaltate
Comision
standard

Disponibilitate proprietate:

Imediat

Puncte de interes

Mijloace transport
bus-station
Selgros
Stații autobuz aprox. 222 m
bus-station
Statie Giratie Selgros E1
Stații autobuz aprox. 242 m
trolleybus-station
Statie Piata Verde/Liege T17
Stații troleibuz aprox. 1495 m
trolleybus-station
Statie Ion Ionescu de la Brad T14
Stații troleibuz aprox. 1603 m
Școală
university
Universitatea de Stiinte Agricole si Medicina Veterinara a Banatului, Timisoara
Universități aprox. 452 m
school
Facultatea de Agronomie
Școli aprox. 463 m
university
Universitatea de Stiinte Agricole si Medicina Veterinara a Banatului
Universități aprox. 492 m
kindergarten
Gradinita Scooby
Gradinițe aprox. 1429 m
Recreere
hypermarket
Decathlon
Hipermarket aprox. 129 m
supermarket
Selgros
Supermarket aprox. 302 m
park
Parc
Parcuri aprox. 390 m
sports-ground
Teren sportiv
Terenuri sport aprox. 486 m

Detalii despre preț și costuri

Prețul pe piață

Preț cerut: 124.900 €

Preț min. zonă
Preț max. zonă

64% dintre proprietățile similare ca zonă și nr. camere au prețul cerut mai mic. mai multe...

Bine de știut: prețul unei proprietăți este influențat și de alte caracteristici, cum ar fi: vechime, localizare, vecinătăți, suprafață, compartimentare, amenajări, dotări, etc. mai puțin...

Insight premium disponibil după login

Costuri cu achiziția

Fără credit
Credit ipotecar
Noua casă

i

Costuri adiționale mai puțin știute la achiziție: taxe notariale, comisioane etc.

Insight premium disponibil după login

Proprietăți similare

Apartament cu 2 camere decomandat, mobilat în Dumbrăvița
119.990 €
Județul Timiș, Dumbrăvița
2 camere
51,2 mp
Etaj 2
Apartament cu 2 camere semidecomandat, mobilat în Dumbrăvița
134.900 €
Județul Timiș, Dumbrăvița
2 camere
65 mp
Etaj 2 / 3
Apartament cu 3 camere decomandat, mobilat în Dumbrăvița
124.990 €
Județul Timiș, Dumbrăvița
3 camere
67 mp
Etaj 1 / 1

Detalii de contact

Sodolescu Imobiliare si Constructii Srl

Miriana Ionescu Consultant Imobiliar

Sodolescu Imobiliare si Constructii Srl
PRO

Abonează-te la newsletter să fii primul care primește cele mai noi recomandări de proprietăți și sfaturi de la experți.

Feedback apel

CONTACT

Creează alertă

Salvează căutarea ca să primești pe email ultimele anunțuri publicate

Apartamente cu 2 camere de vânzare în Dumbrăvița, Județul Timiș