Apartament de 2 camere, 55.47 mp, semifinisat,terasa,Zona Eroilor

115.800 €

Florești, Județul Cluj

Nr. cam.:
2
Sup. utilă:
55,47 mp
Etaj:
5 / 8
An constr.:
2025 (Finalizată)
  • • Locație aproximativă

Descriere apartament

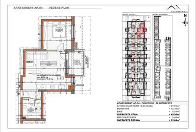
Va propunem spre vanzare apartament de doua camere situat intr-un ansamblu rezidential nou construit in zona Eroilor, Floresti. Apartamentul este pozitionat la etajul 5 al unui bloc nou construit cu regim de inaltime S+P+7E+ER dispune de o suprafata utila de 55.47 mp plus o terasa de 19.8 mp, compartimentarea este semidecomandata si se prezinta astfel: hol, living plus bucatarie, dormitor, baie si terasa. Se va preda la stadiul de semifinisat si include: usa la intrare, centrala termica proprie, incalzire in pardoseala, geamuri cu 3 sticle, tamplarie PVC. Termenul de predare este Aprilie 2026. Separat se poate achizitiona un loc de parcare subteran la pretul de 9000 euro. Pretul afisat include tva de 21%. Zona este una foarte accesibila, cu mult spatiu verde, aproape de magazine, farmacii, mijloace de transport in comun, etc Recomandam atat pentru investitie cat si pentru locuinta! Pentru mai multe detalii sau stabilirea unei vizionari nu ezitati sa ne contactati! ID Extern: P8012
Citește mai mult Citește mai puțin
Semidecomandat Nemobilat Centrală proprie Încălzire prin pardoseală 1 Parcare Bine întreținut (Bună)

Detalii apartament

ID anunț: XE7D10535 Copiat! 252251128 Copiat!
Actualizat în: 16 Aprilie 2026
Suprafață construită: 65 mp
Nr. bucătării: 1
Nr. băi: 1
Structură rezistență: Beton
Tip imobil: Bloc de apartamente
Regim înălțime: P+8E
Nr. terase: 1

Utilități

Destinație
Rezidențial
Ușă intrare
Metal
Ferestre cu geam termopan
PVC PVC
Contorizare
Contor căldură Contor gaz
Facilități imobil
Interfon Lift
Utilități
Curent Apă Canalizare Gaze CATV
Internet
Fibră optică
Amenajare străzi
Asfaltate Iluminat stradal Mijloace de transport în comun

Puncte de interes

Mijloace transport
bus-station
Eroilor E
Stații autobuz aprox. 49 m
bus-station
Eroilor V
Stații autobuz aprox. 127 m
bus-station
Stejarului
Stații autobuz aprox. 163 m
bus-station
Teilor
Stații autobuz aprox. 232 m
Recreere
cafe
Adveture of Henry
Cafenea aprox. 274 m
sports-ground
Teren Fotbal Sintetic
Terenuri sport aprox. 282 m
supermarket
Profi Floresti
Supermarket aprox. 450 m
park
Parc
Parcuri aprox. 506 m

Detalii despre preț și costuri

Prețul pe piață

Preț cerut: 115.800 €

Preț min. zonă
Preț max. zonă

55% dintre proprietățile similare ca zonă și nr. camere au prețul cerut mai mic. mai multe...

Bine de știut: prețul unei proprietăți este influențat și de alte caracteristici, cum ar fi: vechime, localizare, vecinătăți, suprafață, compartimentare, amenajări, dotări, etc. mai puțin...

Insight premium disponibil după login

Costuri cu achiziția

Fără credit
Credit ipotecar
Noua casă

i

Costuri adiționale mai puțin știute la achiziție: taxe notariale, comisioane etc.

Insight premium disponibil după login

Proprietăți recomandate

Detalii de contact

Bling Imobiliare

Simona Miron Master Broker acreditat

Bling Imobiliare

Abonează-te la newsletter să fii primul care primește cele mai noi recomandări de proprietăți și sfaturi de la experți.

CONTACT

Creează alertă

Salvează căutarea ca să primești pe email ultimele anunțuri publicate

Apartamente noi cu 2 camere de vânzare în Florești, Județul Cluj