Apartament 2 Camere, 52mp, Etaj Intermediar, Zona Eroilor

90.200 €

Florești, Județul Cluj

Nr. cam.:
2
Sup. utilă:
52,38 mp
Etaj:
3 / 6
An constr.:
2025 (În construcție)
  • • Locație aproximativă

Descriere apartament

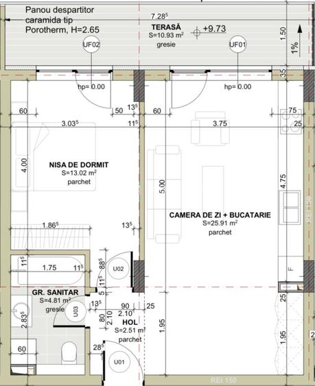
Va oferim spre vanzare apartamente cu 2 camere in zona Eroilor.Blocul are regim de inaltime P+6, cu termen de finalizare in anul 2026.pretul este 1650 euro/mp,400 euro/mp de balcon. Compartimentarea este semidecomandata, suprafata utila este de 52.38 mp si 67,65m. si se prezinta astfel: hol, baie, bucatarie open space cu livingul, dormitor si balcon de 11.26mp. Este situat in zona foarte buna, aproape de statii de mijloc de transport in comun si magazine. Apartamentul se vinde finisat Un loc de parcare subteran este disponibil la pretul de 7000€. Avans minim 50%. Pentru mai multe detalii si pentru a programa o vizionare nu ezitati sa ne contactati. ID Extern:P10454
Citește mai mult Citește mai puțin
Semidecomandat Nemobilat Centrală proprie Încălzire prin pardoseală

Detalii apartament

ID anunț: XE7D10604 Copiat! 268295659 Copiat!
Actualizat în: 09 Martie 2026
Suprafață construită: 58 mp
Nr. bucătării: 1
Nr. băi: 1
Structură rezistență: Cărămidă
Tip imobil: Bloc de apartamente
Regim înălțime: P+6E

Utilități

Destinație
Rezidențial
Pereți
Vopsea lavabilă Var Faianță
Podele
Parchet Gresie
Uși interior
Celulare
Izolații termice
Exterior Interior
Contorizare
Apometre Contor gaz
Facilități imobil
Interfon Lift Spații agrement
Utilități
Curent Apă Canalizare Gaze
Amenajare străzi
Asfaltate
Comision
2%+TVA

Disponibilitate proprietate:

imediat

Puncte de interes

Mijloace transport
bus-station
Eroilor V
Stații autobuz aprox. 143 m
bus-station
Eroilor E
Stații autobuz aprox. 156 m
bus-station
Stejarului
Stații autobuz aprox. 293 m
bus-station
Teilor
Stații autobuz aprox. 344 m
Recreere
cafe
Adveture of Henry
Cafenea aprox. 248 m
sports-ground
Teren Fotbal Sintetic
Terenuri sport aprox. 333 m
park
Parc
Parcuri aprox. 350 m
supermarket
Profi Floresti
Supermarket aprox. 369 m

Detalii despre preț și costuri

Prețul pe piață

Preț cerut: 90.200 €

Preț min. zonă
Preț max. zonă

79% dintre proprietățile similare ca zonă și nr. camere au prețul cerut mai mare. mai multe...

Bine de știut: prețul unei proprietăți este influențat și de alte caracteristici, cum ar fi: vechime, localizare, vecinătăți, suprafață, compartimentare, amenajări, dotări, etc. mai puțin...

Insight premium disponibil după login

Costuri cu achiziția

Fără credit
Credit ipotecar
Noua casă

i

Costuri adiționale mai puțin știute la achiziție: taxe notariale, comisioane etc.

Insight premium disponibil după login

Proprietăți recomandate

Detalii de contact

Bling Imobiliare

Nica Vlad Master Broker

Bling Imobiliare

Abonează-te la newsletter să fii primul care primește cele mai noi recomandări de proprietăți și sfaturi de la experți.

CONTACT

Creează alertă

Salvează căutarea ca să primești pe email ultimele anunțuri publicate

Apartamente cu 2 camere de vânzare în Florești, Județul Cluj