VANZARE APARTAMENT 2 CAMERE ZONA BMW

145.000 €

Florești, Județul Cluj

Nr. cam.:
2
Sup. utilă:
49 mp
Etaj:
2 / 12
An constr.:
2024 (Finalizată)
  • • Locație aproximativă

Descriere apartament

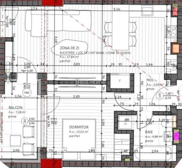
Iti doresti sa locuiesti in cel mai modern ansamblu rezidential cu 12 etaje din zona VIVO? BEST HOME IMOBILIARE va propune spre vanzare un apartament cu 2 camere in suprafata de 49mp compartimentat astfel: living cu bucatarie open space,dormitor,baie si un balcon de 7mp. Orientarea sud-vestica a apartamentului ofera un plus de luminozitate si caldura spatiului de locuit. Separat puteti achizitiona un loc de parcare subteran la pretul de 11.000 euro si de asemenea aveti posibilitatea de a opta pentru predarea apartamentului finisat.Preturile includ TVA Pentru mai multe detalii si vizionari nu ezitati sa ne contactati!
Citește mai mult Citește mai puțin
Semidecomandat 1 Balcon / Terasă / Logie Centrală proprie Încălzire prin pardoseală 1 Garaj

Detalii apartament

ID anunț: XFHC10014 Copiat! 270001600 Copiat!
Actualizat în: 26 Ianuarie 2026
Nr. bucătării: 1
Nr. băi: 1
Tip imobil: Bloc de apartamente
Regim înălțime: P+12E

Utilități

Izolații termice
Exterior
Contorizare
Apometre Contor gaz
Utilități
Curent Apă Canalizare CATV Gaze Telefon
Internet
Cablu
Amenajare străzi
Iluminat stradal Mijloace de transport în comun Asfaltate
Comision
standard

Disponibilitate proprietate:

Imediat

Puncte de interes

Mijloace transport
bus-station
Oncos S
Stații autobuz aprox. 604 m
bus-station
Oncos N
Stații autobuz aprox. 611 m
bus-station
Metro Nord S
Stații autobuz aprox. 901 m
bus-station
Metro Nord N
Stații autobuz aprox. 904 m
Recreere
park
Zonă de protectie - Compania de Apa Somes S.A.
Parcuri aprox. 996 m
supermarket
Metro
Supermarket aprox. 1050 m
mall
Complex comercial Polus
Mall aprox. 1479 m
sports-ground
Teren Decathlon
Terenuri sport aprox. 1619 m

Detalii despre preț și costuri

Prețul pe piață

Preț cerut: 145.000 €

Preț min. zonă
Preț max. zonă

99% dintre proprietățile similare ca zonă și nr. camere au prețul cerut mai mic. mai multe...

Bine de știut: prețul unei proprietăți este influențat și de alte caracteristici, cum ar fi: vechime, localizare, vecinătăți, suprafață, compartimentare, amenajări, dotări, etc. mai puțin...

Insight premium disponibil după login

Costuri cu achiziția

Fără credit
Credit ipotecar
Noua casă

i

Costuri adiționale mai puțin știute la achiziție: taxe notariale, comisioane etc.

Insight premium disponibil după login

Proprietăți recomandate

Detalii de contact

Best Home

Gheorghies Astrid Ramona Manager

Best Home
PRO

Abonează-te la newsletter să fii primul care primește cele mai noi recomandări de proprietăți și sfaturi de la experți.

CONTACT

Creează alertă

Salvează căutarea ca să primești pe email ultimele anunțuri publicate

Apartamente noi cu 2 camere de vânzare în Florești, Județul Cluj