Apartament de vanzare 2 camere, 58mp + balcon, an 2025, central, strada Eroilor!

110.500 €

Florești, Județul Cluj

Nr. cam.:
2
Sup. utilă:
58 mp
Etaj:
2 / 3
An constr.:
2025 (Finalizată)
  • • Locație aproximativă

Descriere apartament

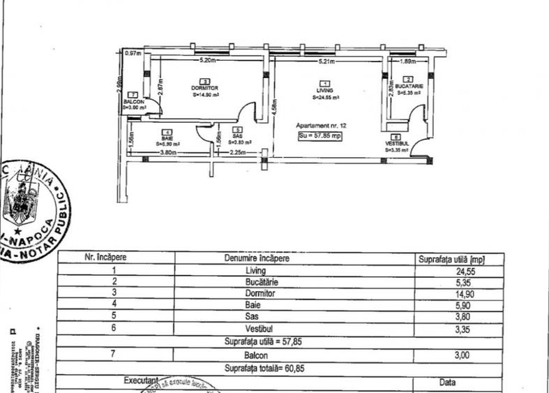
Praxa Imobiliare va propune spre vanzare un apartament cu 2 camere, in zona strazii Eroilor, Floresti, judetul Cluj, intr-o zona linistita si aerisita, aflat in proximitatea mijloacelor de transport in comun, al principalelor puncte de interes si a facilitatilor locale. -Statia de autobuz: M26- la 150 m -Scoala Floresti (scoala noua) la 750 m -Centru medical Synevo si IQ-Med la 200-300 m Apartamentul se afla la nivelul 2 intr-un imobil cu 3 niveluri, suprafata utila fiind de 50 mp + balcon 3 mp, aflat intr-un complex nou finalizat in 2025. Compartimentarea este decomandata si gandita astfel: Living, bucataria, dormitoar, hol, baie, balcon. Apartamentul se vinde finisat! Apartamentul beneficiaza si de 1 loc de parcare. Se accepta plata cash si prin credit. Este de vanzare in acelasi complex si un apartament de 3 camere (2 dormitoare) la pretul de 130.000 euro. ID proprietate: P141536
Citește mai mult Citește mai puțin
Confort 1 Decomandat 1 Balcon / Terasă / Logie Calorifere Centrală proprie Termoficare 1 Parcare

Detalii apartament

ID anunț: XE1E101JK Copiat! 270556455 Copiat!
Actualizat în: 24 Octombrie 2025
Nr. bucătării: 1
Nr. băi: 1
Tip imobil: Bloc de apartamente
Regim înălțime: P+3E

Utilități

Destinație
Rezidențial
Pereți
Vopsea lavabilă Var
Podele
Gresie Parchet
Ușă intrare
Metal
Izolații termice
Bloc izolat termic
Ferestre cu geam termopan
PVC
Utilități
Curent Apă Canalizare
Comision
2%+TVA

Disponibilitate proprietate:

imediat

Puncte de interes

Mijloace transport
bus-station
Profi V
Stații autobuz aprox. 341 m
bus-station
Luxor V
Stații autobuz aprox. 459 m
bus-station
Primaria Floresti S
Stații autobuz aprox. 465 m
bus-station
Primaria Floresti N
Stații autobuz aprox. 477 m
Recreere
park
Parc
Parcuri aprox. 340 m
supermarket
Profi Floresti
Supermarket aprox. 352 m
sports-ground
Teren Fotbal Sintetic
Terenuri sport aprox. 424 m
cafe
Adveture of Henry
Cafenea aprox. 436 m

Detalii despre preț și costuri

Prețul pe piață

Preț cerut: 110.500 €

Preț min. zonă 75.000 €
Preț max. zonă 147.500 €

65% dintre proprietățile similare ca zonă și nr. camere au prețul cerut mai mare. mai multe...

Bine de știut: prețul unei proprietăți este influențat și de alte caracteristici, cum ar fi: vechime, localizare, vecinătăți, suprafață, compartimentare, amenajări, dotări, etc. mai puțin...

Costuri cu achiziția

Fără credit
6.604 RON
Credit ipotecar
8.186 RON
Noua casă
703 RON+ taxe notariale

i

Costuri adiționale mai puțin știute la achiziție: taxe notariale, comisioane etc.

Proprietăți recomandate

Detalii de contact

PRAXA IMOBILIARE

Ionut Hangan Sales Associate

PRAXA IMOBILIARE
PRO

Abonează-te la newsletter să fii primul care primește cele mai noi recomandări de proprietăți și sfaturi de la experți.

CONTACT

Creează alertă

Salvează căutarea ca să primești pe email ultimele anunțuri publicate

Apartamente noi cu 2 camere de vânzare în Florești, Județul Cluj