Proiect nou Florești, 2 camere, 43 mp – 2019 €/mp

90.705 €

Florești, Județul Cluj

Nr. cam.:
2
Sup. utilă:
43 mp
Etaj:
1 / 4
An constr.:
2025
  • • Locație exactă

Descriere apartament

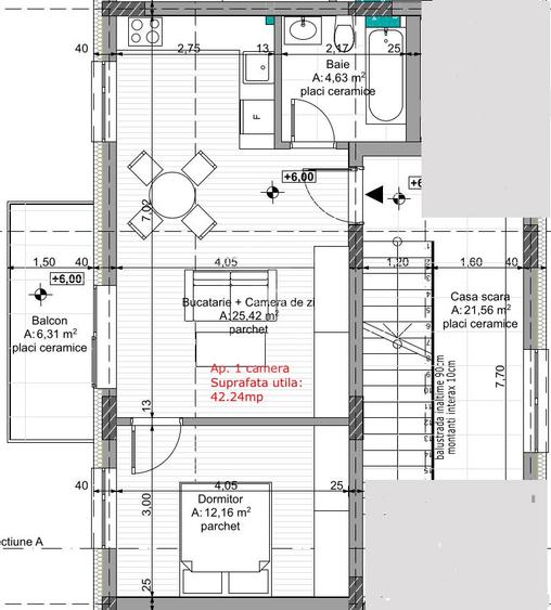
EDIL Florești vă propune un apartament de 2 camere situat la etajul 1 din 4 într-un ansamblu rezidențial nou, pe strada Cetății, cu finalizare în 2026. Locuința are o suprafață utilă de 43 mp, compartimentată eficient prin hol de intrare, living cu bucătărie open space, dormitor, baie și balcon. Apartamentul se predă complet finisat cu materiale premium, având centrală proprie cu pompă de căldură, încălzire în pardoseală și funcție de răcire, asigurând confort pe tot parcursul anului. Blocul va fi dotat cu lift, interfon și beneficiază de zone verzi amenajate, locuri de joacă și spații comerciale la parter. Preț: 2019 €/mp Pentru detalii și rezervări, contactați-ne la 📞 sau la sediul nostru EDIL Florești, Str. Eroilor nr. 25, ap. 15, et. 1. Cod ofertă: APCJ246779.
Citește mai mult Citește mai puțin
Semidecomandat Nemobilat 1 Balcon / Terasă / Logie Curte comună Centrală proprie Încălzire prin pardoseală

Detalii apartament

ID anunț: XEJQ000NQ Copiat! 270677730 Copiat!
Actualizat în: 07 Octombrie 2025
Nr. bucătării: 1
Nr. băi: 1
Tip imobil: Bloc de apartamente
Regim înălțime: P+4E

Utilități

Destinație
Rezidențial
Pereți
Faianță Vopsea lavabilă
Podele
Gresie Parchet
Ușă intrare
Metal
Uși interior
Celulare
Izolații termice
Exterior
Contorizare
Contor gaz
Facilități imobil
Spații agrement Lift
Utilități
Gaze Curent Canalizare
Amenajare străzi
Asfaltate Iluminat stradal Mijloace de transport în comun

Puncte de interes

Mijloace transport
bus-station
Tautiului N
Stații autobuz aprox. 215 m
bus-station
Tautiului S
Stații autobuz aprox. 220 m
bus-station
M-Complex Floresti
Stații autobuz aprox. 310 m
bus-station
Sub Cetate V
Stații autobuz aprox. 332 m
Recreere
park
Parc
Parcuri aprox. 219 m
bar
City Cafe
Bar aprox. 580 m
supermarket
Diana
Supermarket aprox. 775 m
sports-ground
Teren Fotbal Sintetic
Terenuri sport aprox. 1067 m

Detalii despre preț și costuri

Prețul pe piață

Preț cerut: 90.705 €

Preț min. zonă
Preț max. zonă

55% dintre proprietățile similare ca zonă și nr. camere au prețul cerut mai mic. mai multe...

Bine de știut: prețul unei proprietăți este influențat și de alte caracteristici, cum ar fi: vechime, localizare, vecinătăți, suprafață, compartimentare, amenajări, dotări, etc. mai puțin...

Insight premium disponibil după login

Costuri cu achiziția

Fără credit
Credit ipotecar
Noua casă

i

Costuri adiționale mai puțin știute la achiziție: taxe notariale, comisioane etc.

Insight premium disponibil după login

Proprietăți recomandate

Detalii de contact

EDIL

Teodora Nemes AGENT

EDIL
PRO

Abonează-te la newsletter să fii primul care primește cele mai noi recomandări de proprietăți și sfaturi de la experți.

CONTACT

Creează alertă

Salvează căutarea ca să primești pe email ultimele anunțuri publicate

Apartamente noi cu 2 camere de vânzare în Florești, Județul Cluj