Apartament 2 camere, 50.51 mp, finisat nou, garaj, zona Cetatii

104.933 €

Florești, Județul Cluj

Nr. cam.:
2
Sup. utilă:
50,51 mp
Etaj:
1 / 4
An constr.:
2026 (Proiect)
  • • Locație aproximativă

Descriere apartament

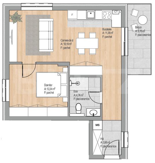
Blitz propune spre vanzare un ansamblu rezidențial nou, format din 9 clădiri cu regim redus de înălțime, proiectat pentru a oferi confort, siguranță și un stil de viață echilibrat. Cu o arhitectură modernă și apartamente luminoase, fiecare clădire este dotată cu lift și cuprinde 14 apartamente dispuse pe parter, etajele 1-3 și etaj retras. Ansamblul ofera apartamente de 2 și 3 camere cu suprafațe între 44 și 70 mp. Orientare Est-Nord-Vest (ENV), Vest (V) și Est-Sud-Vest (ESV) – pentru mai multă lumină naturală și o atmosferă plăcută în locuință.. Apartamentele dispun de balcoane sau logie cu suprafete intre 6.31mp si 21.36mp. Pe langa ansamblu ofera lift modern în fiecare clădire, parcări supraterane dedicate, spații verzi și loc de joacă pentru copii. Apartamentele se predau la stadiul de finisat, astfel încât să te poți muta imediat: Încălzire în pardoseală pentru confort maxim Parchet SPC de înaltă calitate Plinte MDF elegante Uși de interior albe Centrală proprie și aparat de aer condiționat inclus Pereți zugrăviți în alb – un fundal neutru, ușor de personalizat Prize și întrerupătoare montate Baie complet utilată: cadă sau duș, vas WC cu rezervor încastrat, lavoar cu baterie, oglindă. Pretul include TVA de 21% si avansul minim este 25% din pretul apartamentului, iar preturile variaza intre 85594 euro si 111.095 euro in functie de avans, suprafata sau etaj. Optional se poate achizitiona o parcare subterana la pretul de 7000 de euro. Ansamblu este in stadiu de proiect, cu preconizare de finalizare final de 2026. Nu mai sta pe ganduri si programeaza o vizionare! Cod ofertă / ID BLITZ: P155325
Citește mai mult Citește mai puțin
Semidecomandat Nemobilat 1 Balcon / Terasă / Logie 1 Parcare Bine întreținut (Bună)

Detalii apartament

ID anunț: XFTI10A28 Copiat! 270983636 Copiat!
Actualizat în: 31 Martie 2026
Nr. bucătării: 1
Nr. băi: 1
Structură rezistență: Cărămidă
Tip imobil: Bloc de apartamente
Regim înălțime: P+4E

Utilități

Destinație
Rezidențial
Comision
2%

Certificat energetic:

Clasa energetică: B

Puncte de interes

Mijloace transport
bus-station
Luxor V
Stații autobuz aprox. 30 m
bus-station
Luxor N
Stații autobuz aprox. 39 m
bus-station
Eroilor V
Stații autobuz aprox. 496 m
bus-station
Eroilor E
Stații autobuz aprox. 509 m
Recreere
restaurant
Atelierul de Pizza
Restaurant aprox. 82 m
sports-ground
Teren Fotbal Sintetic
Terenuri sport aprox. 319 m
supermarket
Profi Floresti
Supermarket aprox. 558 m
park
Parc
Parcuri aprox. 723 m

Detalii despre preț și costuri

Prețul pe piață

Preț cerut: 104.933 €

Preț min. zonă 75.000 €
Preț max. zonă 147.500 €

54% dintre proprietățile similare ca zonă și nr. camere au prețul cerut mai mic. mai multe...

Bine de știut: prețul unei proprietăți este influențat și de alte caracteristici, cum ar fi: vechime, localizare, vecinătăți, suprafață, compartimentare, amenajări, dotări, etc. mai puțin...

Costuri cu achiziția

Fără credit
17.047 RON
Credit ipotecar
18.605 RON
Noua casă
675 RON+ taxe notariale

i

Costuri adiționale mai puțin știute la achiziție: taxe notariale, comisioane etc.

Proprietăți recomandate

Detalii de contact

BLITZ

BLITZ ROMANIA

4.70(108 review-uri)

BLITZ
PRO

Abonează-te la newsletter să fii primul care primește cele mai noi recomandări de proprietăți și sfaturi de la experți.

CONTACT

Creează alertă

Salvează căutarea ca să primești pe email ultimele anunțuri publicate

Apartamente cu 2 camere de vânzare în Florești, Județul Cluj