Apartament de 2 camere - Semifinisat I Logie I Parcare - Tineretului

71.000 €

Florești, Județul Cluj

Nr. cam.:
2
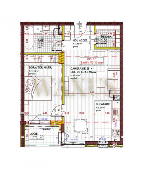
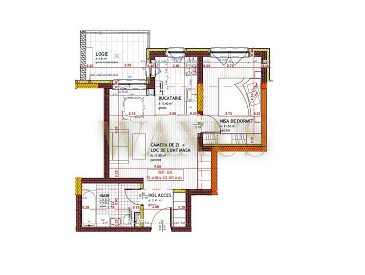
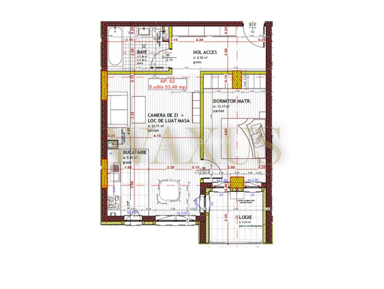
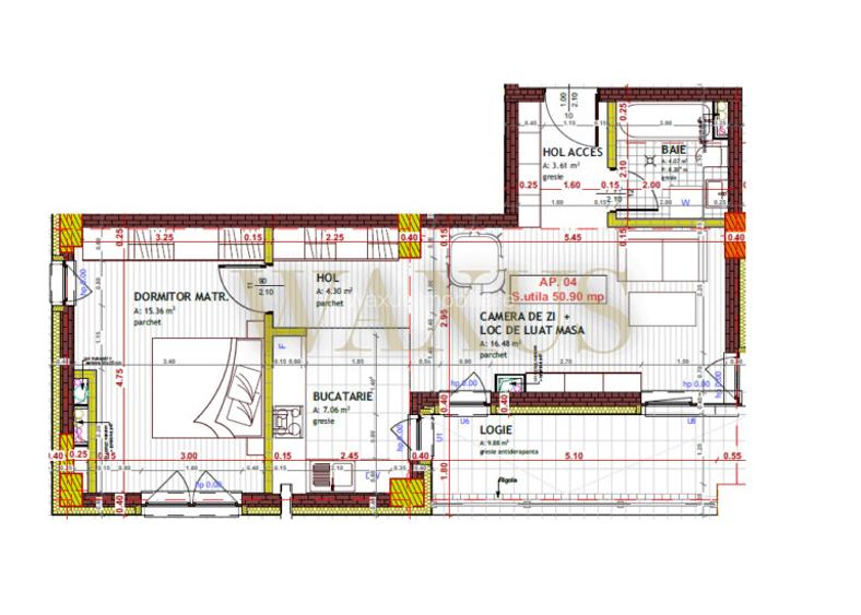
Sup. utilă:
54,6 mp
Etaj:
1 / 6
An constr.:
2026 (În construcție)
  • • Locație aproximativă

Descriere apartament

WAXUSIMOBILIARE va propune spre vanzare apartamente cu 1, 2 si 3 camere, situate intr-un imobil nou cu regim de inaltime S+P+6E, aflat in constructie, cu termen de finalizare la sfarsitul anului 2025. CF-urile sunt estimate pentru luna februarie 2026. Proiectul este localizat in comuna Floresti, pe strada Tineretului, intr-o zona bine conectata la facilitati esentiale. Detalii oferta – Apartamente disponibile la etaje intermediare – Suprafate cuprinse intre 37,5 mp si 78 mp – Compartimentari eficiente, potrivite pentru diferite nevoi locative Avantaje zona – La 5 minute de Profi – La 5 minute de sala de fitness – Statie de mijloace de transport in comun in apropiere Predare – Apartamentele se predau la stadiul de semifinisat Parcari disponibile contra cost – Loc de parcare exterior: 4.000 EUR (TVA inclus) – Loc de parcare subteran: 7.000 EUR (TVA inclus) Pozele din anunt sunt doar randari, pentru ilustrare. Pentru mai multe detalii sau programarea unei vizionari, nu ezitati sa ne contactati. ID extern: P122088
Citește mai mult Citește mai puțin
Semidecomandat Nemobilat 1 Balcon Centrală imobil Încălzire prin pardoseală 1 Parcare

Detalii apartament

ID anunț: XDKC100E9 Copiat! 271732078 Copiat!
Actualizat în: 12 Februarie 2026
Suprafață construită: 65 mp
Nr. bucătării: 1
Nr. băi: 1
Structură rezistență: Cărămidă
Tip imobil: Bloc de apartamente
Regim înălțime: S+P+6E

Utilități

Destinație
Rezidențial
Pereți
Vopsea lavabilă
Podele
Parchet Gresie
Ușă intrare
Metal
Uși interior
Lemn
Izolații termice
Exterior
Ferestre cu geam termopan
PVC
Contorizare
Apometre Contor căldură Contor gaz
Dotări imobil
Interfon Lift
Utilități
Curent Apă Canalizare Gaze CATV
Amenajare străzi
Asfaltate
Comision
2.38%+TVA

Disponibilitate proprietate:

imediat

Puncte de interes

Mijloace transport
bus-station
Primaria Floresti N
Stații autobuz aprox. 466 m
bus-station
Primaria Floresti S
Stații autobuz aprox. 479 m
bus-station
M-Prof. Dumitru Mocanu V
Stații autobuz aprox. 848 m
bus-station
M-Prof. Dumitru Mocanu E
Stații autobuz aprox. 849 m
Recreere
restaurant
Da Cristiano
Restaurant aprox. 289 m
supermarket
Lidl
Supermarket aprox. 515 m
park
Parc
Parcuri aprox. 776 m
sports-ground
Teren Fotbal Sintetic
Terenuri sport aprox. 1279 m

Detalii despre preț și costuri

Prețul pe piață

Preț cerut: 71.000 €

Preț min. zonă 75.000 €
Preț max. zonă 147.500 €

i

Proprietate cu prețul cerut în afara intervalului mai multe...

Posibile explicații pentru faptul că prețul proprietății este sub cel minim: imobil cu risc seismic, imobil cu probleme structurale, imobil demolabil, poziționare în altă zonă
Bine de știut: prețul unei proprietăți este influențat și de alte caracteristici, cum ar fi: vechime, localizare, vecinătăți, suprafață, compartimentare, amenajări, dotări, etc.

Costuri cu achiziția

Fără credit
4.745 RON
Credit ipotecar
6.060 RON
Noua casă
502 RON+ taxe notariale

i

Costuri adiționale mai puțin știute la achiziție: taxe notariale, comisioane etc.

Proprietăți recomandate

Detalii de contact

Waxus Imobiliare

Walter Condello Manager Agentie

Waxus Imobiliare
PRO

Abonează-te la newsletter să fii primul care primește cele mai noi recomandări de proprietăți și sfaturi de la experți.

CONTACT

Creează alertă

Salvează căutarea ca să primești pe email ultimele anunțuri publicate

Apartamente cu 2 camere de vânzare în Florești, Județul Cluj