Apartament 2 camere 57mp! Finisat! CF! Eroilor zona Profi!

104.000 €

Florești, Județul Cluj

Nr. cam.:
2
Sup. utilă:
57,85 mp
Etaj:
2 / 3
An constr.:
2023 (Finalizată)
  • • Locație aproximativă

Descriere apartament

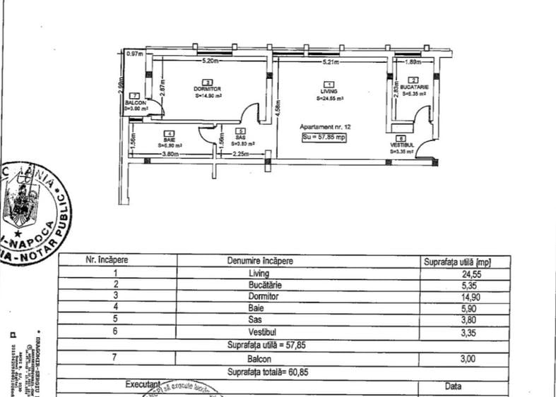
Apartament modern cu 2 camere 57mp, situat intr-un ansamblu rezidential nou, construit in anul 2023, cu acces privat securizat prin bariera. Apartamentul are o suprafata utila de 57,85 mp, la care se adauga un balcon de 3 mp, fiind compartimentat eficient astfel: -dormitor -living -bucatarie decomandata -baie cu geam -balcon Imobilul este complet finisat si dispune de incalzire prin calorifere, centrala termica proprie pe gaz, geamuri termopan tripan si finisaje de calitate. Bucataria este placata cu gresie, iar livingul si dormitorul beneficiaza de parchet si plinte. Baia este finisata cu gresie si faianta, este hidroizolata si dotata cu dus si vas de toaleta incastrat. Apartamentul este prevazut cu prize si intrerupatoare montate, usi interioare albe, usa de intrare antiefractie si pereti finisati cu lavabil alb. Imobilul face parte dintr-un bloc cu regim de inaltime P+2 etaje + etaj retras, intr-un ansamblu rezidential aerisit. Parcarile exterioare sunt disponibile optional, contra cost. Apartamentul este situat in zona centrala, pe Str. Eroilor – zona Profi, avand in imediata apropiere statii de transport in comun, magazine Profi si Penny, Piata Floresti, complexul comercial Roka, precum si alte facilitati de interes. Pentru mai multe detalii sau pentru programarea unei vizionari, va rugam sa ne contactati. ID EXTERN: 12875
Citește mai mult Citește mai puțin
Semidecomandat Nemobilat 1 Balcon / Terasă / Logie Calorifere Centrală proprie

Detalii apartament

ID anunț: XE7D107GS Copiat! 274382660 Copiat!
Actualizat în: 09 Martie 2026
Suprafață construită: 69.42 mp
Nr. bucătării: 1
Nr. băi: 1
Structură rezistență: Cărămidă
Tip imobil: Bloc de apartamente
Regim înălțime: P+3E

Utilități

Destinație
Rezidențial
Pereți
Vopsea lavabilă Faianță
Podele
Parchet Gresie
Ușă intrare
Metal
Uși interior
Celulare
Izolații termice
Bloc izolat termic
Ferestre cu geam termopan
PVC
Contorizare
Apometre Contor gaz
Diverse
Telecomandă poartă acces auto
Facilități imobil
Interfon
Utilități
Curent Apă Canalizare Gaze CATV Telefon
Amenajare străzi
Asfaltate Mijloace de transport în comun
Comision
2%+TVA

Certificat energetic:

Clasa energetică: B

Disponibilitate proprietate:

imediat

Puncte de interes

Mijloace transport
bus-station
M-Cartier Terra
Stații autobuz aprox. 667 m
bus-station
M-Prof. Dumitru Mocanu
Stații autobuz aprox. 817 m
bus-station
M-Prof. Dumitru Mocanu E
Stații autobuz aprox. 818 m
bus-station
Eroilor V
Stații autobuz aprox. 825 m
Recreere
park
Parc
Parcuri aprox. 118 m
restaurant
Pizza Pizza
Restaurant aprox. 236 m
supermarket
Profi Floresti
Supermarket aprox. 875 m
sports-ground
Teren Fotbal Sintetic
Terenuri sport aprox. 1000 m

Detalii despre preț și costuri

Prețul pe piață

Preț cerut: 104.000 €

Preț min. zonă
Preț max. zonă

72% dintre proprietățile similare ca zonă și nr. camere au prețul cerut mai mare. mai multe...

Bine de știut: prețul unei proprietăți este influențat și de alte caracteristici, cum ar fi: vechime, localizare, vecinătăți, suprafață, compartimentare, amenajări, dotări, etc. mai puțin...

Insight premium disponibil după login

Costuri cu achiziția

Fără credit
Credit ipotecar
Noua casă

i

Costuri adiționale mai puțin știute la achiziție: taxe notariale, comisioane etc.

Insight premium disponibil după login

Proprietăți recomandate

Detalii de contact

Bling Imobiliare

Andrei G Broker

Bling Imobiliare

Abonează-te la newsletter să fii primul care primește cele mai noi recomandări de proprietăți și sfaturi de la experți.

CONTACT

Creează alertă

Salvează căutarea ca să primești pe email ultimele anunțuri publicate

Apartamente noi cu 2 camere de vânzare în Florești, Județul Cluj