Apartament 2 camere semifinisat, 53mp terasa amenajata, zona Eroilor

120.000 €

Florești, Județul Cluj

Nr. cam.:
2
Sup. utilă:
46,8 mp
Etaj:
3 / 3
An constr.:
2023 (Finalizată)
  • • Locație aproximativă

Descriere apartament

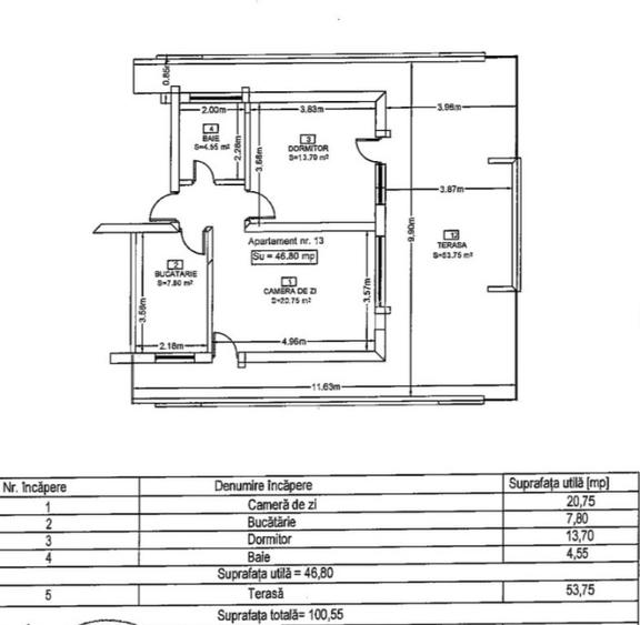
Apartament tip penthouse cu 2 camere decomandate, situat pe Strada Eroilor, intr-o zona bine conectata si apreciata din Floresti. Apartamentul are o suprafata utila de 46,8 mp, la care se adauga o terasa spectaculoasa de aproximativ 100 mp, amenajata cu pardoseala flotanta. Este situat la etajul 3 din 3 si beneficiaza de o orientare avantajoasa Sud / Est / Nord, oferind lumina naturala pe tot parcursul zilei. Compartimentarea este practica si functionala, dupa cum urmeaza: -2 camere decomandate -bucatarie decomandata -baie cu geam -terasa, cu acces din ambele camere Apartamentul se preda la stadiul semifinisat, avand peretii finisati cu lavabil alb, geamuri termopan tripan, centrala termica proprie pe gaz si incalzire prin calorifere. Imobilul este liber de sarcini, fiind disponibil imediat pentru achizitie chiar si prin credit. Parcari exterioare disponibile contra cost. Zona este un real avantaj, avand in imediata apropiere multiple facilitati: magazine Profi, Penny si Oncos, Piata Floresti, frizerii, cafenele, bancomate, centrul comercial Roka, sala de fitness 18 Gym, precum si alte puncte de interes. Pentru mai multe detalii sau pentru programarea unei vizionari, va rugam sa ne contactati. ID EXTERN: P12888
Citește mai mult Citește mai puțin
Decomandat Calorifere Centrală proprie

Detalii apartament

ID anunț: XE7D107H6 Copiat! 274414877 Copiat!
Actualizat în: 09 Martie 2026
Suprafață construită: 56 mp
Nr. bucătării: 1
Nr. băi: 1
Structură rezistență: Cărămidă
Tip imobil: Bloc de apartamente
Regim înălțime: P+3E

Utilități

Destinație
Rezidențial
Pereți
Vopsea lavabilă
Ușă intrare
Metal
Izolații termice
Bloc izolat termic
Contorizare
Apometre Contor gaz
Alte spații utile
Terasă
Facilități imobil
Interfon
Utilități
Apă Canalizare Gaze CATV Telefon
Amenajare străzi
Asfaltate Iluminat stradal Mijloace de transport în comun
Comision
2%+TVA

Disponibilitate proprietate:

imediat

Puncte de interes

Mijloace transport
bus-station
M-Cartier Terra
Stații autobuz aprox. 667 m
bus-station
M-Prof. Dumitru Mocanu
Stații autobuz aprox. 817 m
bus-station
M-Prof. Dumitru Mocanu E
Stații autobuz aprox. 818 m
bus-station
Eroilor V
Stații autobuz aprox. 825 m
Recreere
park
Parc
Parcuri aprox. 118 m
restaurant
Pizza Pizza
Restaurant aprox. 236 m
supermarket
Profi Floresti
Supermarket aprox. 875 m
sports-ground
Teren Fotbal Sintetic
Terenuri sport aprox. 1000 m

Detalii despre preț și costuri

Prețul pe piață

Preț cerut: 120.000 €

Preț min. zonă
Preț max. zonă

92% dintre proprietățile similare ca zonă și nr. camere au prețul cerut mai mic. mai multe...

Bine de știut: prețul unei proprietăți este influențat și de alte caracteristici, cum ar fi: vechime, localizare, vecinătăți, suprafață, compartimentare, amenajări, dotări, etc. mai puțin...

Insight premium disponibil după login

Costuri cu achiziția

Fără credit
Credit ipotecar
Noua casă

i

Costuri adiționale mai puțin știute la achiziție: taxe notariale, comisioane etc.

Insight premium disponibil după login

Proprietăți recomandate

Detalii de contact

Bling Imobiliare

Andrei G Broker

Bling Imobiliare

Abonează-te la newsletter să fii primul care primește cele mai noi recomandări de proprietăți și sfaturi de la experți.

CONTACT

Creează alertă

Salvează căutarea ca să primești pe email ultimele anunțuri publicate

Apartamente noi cu 2 camere de vânzare în Florești, Județul Cluj